1 Church Road, Alphington, Exeter

- PROPERTY TYPE
Detached
- BEDROOMS
12
- BATHROOMS
6
- SIZE
Ask agent
- TENUREDescribes how you own a property. There are different types of tenure - freehold, leasehold, and commonhold.Read more about tenure in our glossary page.
Freehold
Description
Property Reference number : 236403
A Prime, Dual-Strategy Investment Asset with Substantial Long-Term Potential in Alphington, ExeterA rare and exceptional opportunity to acquire a fully refurbished and compliant, income-generating property, situated in a highly sought-after location on the edge of the fantastic village of Alphington, Exeter. This is not just a building; it is a strategically configured, high-yield asset offering two distinct and powerful investment paths.
Location & Access
Located in the desirable Exeter postcode of EX2, this property boasts quick and easy access to the A30 and M5 motorways, making it an ideal base for tenants and a highly attractive location for professional and student renters. The property is also conveniently located close to the vibrant Marsh Barton trading estate, a major employment hub, and is on the doorstep of the quaint and picturesque village of Alphington. The area benefits from excellent local amenities while being surrounded by beautiful Devon countryside.
The Main Building: A Turnkey, Licensed HMO with a Secure Income Stream
The main building has been meticulously refurbished and is configured specifically for multi-unit occupancy, offering a turnkey solution for an investor. It is ready to be furnished and tenanted immediately.
The property is fully compliant with modern safety and legal standards, providing a secure and immediate income stream:
Configuration: The building is expertly configured as 4 self-contained units and 8 large rooms with kitchenettes, which share 2 main W/C areas.
Safety & Compliance: A new EICR certificate, a Grade A fire system, and completed works from the Fire Risk Assessment (FRA) ensure the highest level of tenant safety and regulatory compliance. The property holds a current HMO Licence.
Operational Ready: Keyless entry to all rooms and a new roof with a refinished exterior mean this property is primed for a new owner.
Dual-Investment Strategy: Two Routes to Success
This property is a truly unique offering as it provides a buyer with a choice between two powerful investment strategies, based on their risk tolerance and long-term goals.
Option 1: The Passive Investor (Secure and Predictable Income)
For the investor seeking a stable, hands-off income, a pre-agreed 11-year repairing lease is available.
Guaranteed Income: The lease provides a secure annual rent of £97,000, with a 2% increase built in each year.
Zero Management: The tenant will be responsible for all bills, insurance, and maintenance as per the terms of a repairing lease, ensuring a truly passive income stream for the landlord.
Delayed Development: Under the terms of this lease, the main building and the barn would be included, and development of the barn would be undertaken by the purchaser only after the lease has concluded. This provides a long-term, high-value project that can be planned for and executed in the future while the property generates a strong, predictable return.
Option 2: The Active Investor (High-Yield & Accelerated Development)
The purchaser can choose not to take on the lease and instead implement their own investment strategy, with the following advantages:
Immediate Management: Begin operating the main building's existing 12 units (4 self-contained and 8 with kitchenettes) from day one.
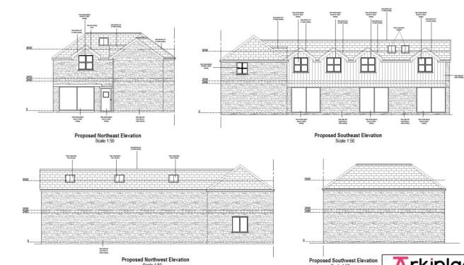
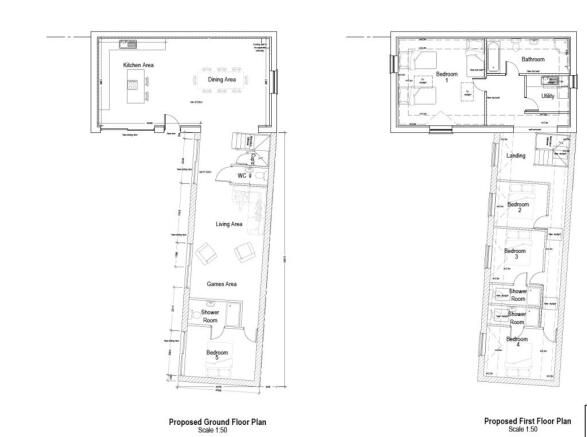
Immediate Development: Commence the development of the barn into a magnificent 5-bedroom dwelling immediately (subject to planning conditions), adding significant value and a new revenue stream.
Maximized Returns: By managing the entire site, you have the potential to generate a strong six-figure income from multiple revenue streams, offering a more hands-on but potentially higher-reward strategy.
Income Forecast and Investment Potential
This site presents a compelling investment opportunity, with the potential to be developed into a large-scale rental portfolio of up to 17 bedrooms across the entire site once the barn is converted. Whether through the long-term passive lease or an active management strategy, this property offers a clear path to exceptional returns in the thriving Exeter market.
Vacant Possession & Ownership
The property is being sold with vacant possession, providing a clean slate for the new owner to either take on the pre-agreed lease or manage the property independently. There is also the option to purchase the existing Ltd company ownership, which may offer significant tax and legal benefits.
Summary:
Location: Alphington, Exeter EX2, with excellent transport links.
Main Building: Fully refurbished, configured as 4 self-contained units and 8 rooms with kitchenettes.
Barn: STPP for a 5-bedroom conversion/extension.
Key Option: Pre-agreed 11-year commercial repairing lease at £97,000 p.a. with 2% annual increase.
Strategic Choice: Option to either accept the lease (passive, secure income) or manage independently (active, higher potential returns).
Compliance: HMO Licence, EICR, FRA, Grade A fire system, and Grade 2 EPC exemption all in place.
Ownership: Option to purchase the Ltd company.
This is a rare and unmissable chance to acquire a unique property that offers both a secure, high-yield passive income stream and a clear pathway for significant capital appreciation through future development. All interested parties are encouraged to contact us for further details and to arrange a viewing.
Council Tax: E
WARNING: Never transfer funds to a property owner before viewing the property in person. If in doubt contact the marketing agent or the Citizens Advice Bureau.
GDPR: Submitting a viewing request for the above property means you are giving us permission to pass your contact details to the vendor or landlord for further communication related to viewing arrangement, or more information related to the above property. If you disagree, please write to us within the message field so we do not forward your details to the vendor or landlord or their managing company.
VIEWING DISCLAIMER: Quicklister endeavour to ensure the sales particulars of properties advertised are fair, accurate and reliable, however they are not exhaustive and viewing in person is highly recommended. If there is any point which is of particular importance to you, please contact Quicklister and we will be pleased to check the position for you, especially if you are contemplating traveling some distance to view the property.
Property Reference number : 236403
- COUNCIL TAXA payment made to your local authority in order to pay for local services like schools, libraries, and refuse collection. The amount you pay depends on the value of the property.Read more about council Tax in our glossary page.
- Band: E
- PARKINGDetails of how and where vehicles can be parked, and any associated costs.Read more about parking in our glossary page.
- Ask agent
- GARDENA property has access to an outdoor space, which could be private or shared.
- Ask agent
- ACCESSIBILITYHow a property has been adapted to meet the needs of vulnerable or disabled individuals.Read more about accessibility in our glossary page.
- Ask agent
1 Church Road, Alphington, Exeter
Add an important place to see how long it'd take to get there from our property listings.
__mins driving to your place
Get an instant, personalised result:
- Show sellers you’re serious
- Secure viewings faster with agents
- No impact on your credit score
Your mortgage
Notes
Staying secure when looking for property
Ensure you're up to date with our latest advice on how to avoid fraud or scams when looking for property online.
Visit our security centre to find out moreDisclaimer - Property reference 1157. The information displayed about this property comprises a property advertisement. Rightmove.co.uk makes no warranty as to the accuracy or completeness of the advertisement or any linked or associated information, and Rightmove has no control over the content. This property advertisement does not constitute property particulars. The information is provided and maintained by Quicklister, Nationwide. Please contact the selling agent or developer directly to obtain any information which may be available under the terms of The Energy Performance of Buildings (Certificates and Inspections) (England and Wales) Regulations 2007 or the Home Report if in relation to a residential property in Scotland.
*This is the average speed from the provider with the fastest broadband package available at this postcode. The average speed displayed is based on the download speeds of at least 50% of customers at peak time (8pm to 10pm). Fibre/cable services at the postcode are subject to availability and may differ between properties within a postcode. Speeds can be affected by a range of technical and environmental factors. The speed at the property may be lower than that listed above. You can check the estimated speed and confirm availability to a property prior to purchasing on the broadband provider's website. Providers may increase charges. The information is provided and maintained by Decision Technologies Limited. **This is indicative only and based on a 2-person household with multiple devices and simultaneous usage. Broadband performance is affected by multiple factors including number of occupants and devices, simultaneous usage, router range etc. For more information speak to your broadband provider.
Map data ©OpenStreetMap contributors.



