
Billington Lane, Derrington, ST18

- PROPERTY TYPE
Terraced
- BEDROOMS
3
- BATHROOMS
1
- SIZE
1,385 sq ft
129 sq m
- TENUREDescribes how you own a property. There are different types of tenure - freehold, leasehold, and commonhold.Read more about tenure in our glossary page.
Freehold
Key features
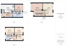
- Three Storey Terraced Townhouse
- Popular Village Location
- Two Double Bedrooms & One Single Bedroom
- Family Bathroom & Guest WC
- Utility Room & Office / Study
- Kitchen Diner & Living Room
Description
Call us 9AM - 9PM -7 days a week, 365 days a year!
Forget convention - this home turns living as you know it on its head! Situated in the highly sought-after village of Derrington, this three-storey terraced townhouse combines a clever upside-down layout with the character and charm of village life. Derrington itself is a delightful place to call home, with the Millennium Green and old railway line offering picturesque walks, while Stafford town centre is just a short drive away for shops, schools and transport links.
The property is arranged to make the very best use of space and light. On the ground floor you will find an entrance hallway, utility room, guest WC and a versatile office or study. The first floor is home to a contemporary kitchen diner with integrated appliances, enjoying views over the rear garden, together with a spacious living room where a feature log burner creates a warm and welcoming focal point. The top floor offers two double bedrooms and one single bedroom complemented by a modern family bathroom.
Externally, the property benefits from a driveway and integral garage, along with a private rear garden that provides the perfect setting for outdoor relaxation.
This is a rare opportunity to acquire a stylish home in a thriving village community, perfectly blending countryside surroundings with excellent access to amenities and transport connections.
EPC Rating: D
Entrance Hallway
-
Guest WC
-
Utility Room
-
Office / Study
-
First Floor Landing
-
Kitchen Diner
-
Living Room
-
Second Floor Landing
-
Bedroom One
-
Bedroom Two
-
Bedroom Three
-
Family Bathroom
-
Anti-Money Laundering & ID Checks
Once an offer is accepted on a property marketed by Dourish & Day estate agents we are required to complete ID verification checks on all buyers and to apply ongoing monitoring until the transaction ends. Whilst this is the responsibility of Dourish & Day we may use the services of MoveButler or Guild365, to verify Clients’ identity. This is not a credit check and therefore will have no effect on your credit history. You agree for us to complete these checks, and the cost of these checks is £30.00 inc. VAT per buyer. This is paid in advance, when an offer is agreed and prior to a sales memorandum being issued. This charge is non-refundable.
Front Garden
The front of the property features a tarmacked driveway offering ample off-road parking for multiple vehicles.
Rear Garden
The rear garden is fully enclosed and predominantly laid to lawn, complemented by paved patio seating areas at both ends and a raised planting bed.
- COUNCIL TAXA payment made to your local authority in order to pay for local services like schools, libraries, and refuse collection. The amount you pay depends on the value of the property.Read more about council Tax in our glossary page.
- Band: D
- PARKINGDetails of how and where vehicles can be parked, and any associated costs.Read more about parking in our glossary page.
- Yes
- GARDENA property has access to an outdoor space, which could be private or shared.
- Front garden,Rear garden
- ACCESSIBILITYHow a property has been adapted to meet the needs of vulnerable or disabled individuals.Read more about accessibility in our glossary page.
- Ask agent
Billington Lane, Derrington, ST18
Add an important place to see how long it'd take to get there from our property listings.
__mins driving to your place
Get an instant, personalised result:
- Show sellers you’re serious
- Secure viewings faster with agents
- No impact on your credit score
Your mortgage
Notes
Staying secure when looking for property
Ensure you're up to date with our latest advice on how to avoid fraud or scams when looking for property online.
Visit our security centre to find out moreDisclaimer - Property reference d3222c66-5daa-4b58-b76a-9a1dc4fcdd00. The information displayed about this property comprises a property advertisement. Rightmove.co.uk makes no warranty as to the accuracy or completeness of the advertisement or any linked or associated information, and Rightmove has no control over the content. This property advertisement does not constitute property particulars. The information is provided and maintained by Dourish & Day, Stafford. Please contact the selling agent or developer directly to obtain any information which may be available under the terms of The Energy Performance of Buildings (Certificates and Inspections) (England and Wales) Regulations 2007 or the Home Report if in relation to a residential property in Scotland.
*This is the average speed from the provider with the fastest broadband package available at this postcode. The average speed displayed is based on the download speeds of at least 50% of customers at peak time (8pm to 10pm). Fibre/cable services at the postcode are subject to availability and may differ between properties within a postcode. Speeds can be affected by a range of technical and environmental factors. The speed at the property may be lower than that listed above. You can check the estimated speed and confirm availability to a property prior to purchasing on the broadband provider's website. Providers may increase charges. The information is provided and maintained by Decision Technologies Limited. **This is indicative only and based on a 2-person household with multiple devices and simultaneous usage. Broadband performance is affected by multiple factors including number of occupants and devices, simultaneous usage, router range etc. For more information speak to your broadband provider.
Map data ©OpenStreetMap contributors.





