Units 2 & 3, Tuscany Court, Express Way, Wakefield Europort, Normanton, WF6 2AE
- SIZE AVAILABLE
11,559 sq ft
1,074 sq m
- SECTOR
Warehouse for sale
- USE CLASSUse class orders: B2 General Industrial and B8 Storage and Distribution
B2, B8
Key features
- Freehold opportunity
- Within a well established industrial estate, Wakefield Europort
- Food grade unit with fridges and freezers
- Excellent access to M62 (Junction 31)
- 2 ground floor level loading doors
- Secure shared yard
- Office, WC and kitchen facilities
Description
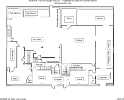
Tuscany Court is a modern secure industrial estate. Unit 2&3 is fully fitted out for a food production occupier with a reception area and 2 floors of integral office accommodation located at the entrance of the building.
Specification includes:
• Secure shared site
• Steel portal frame construction
• Brick and steel clad elevations
• Profile metal sheet roof with translucent roof panels
• Office, WC and kitchen facilities
• 6.00m eaves height
• 2 Electric loading roller shutter door
Location
Unit 2 & 3 Tuscany Court is strategically located within the thriving Wakefield Europort in Normanton —one of West Yorkshire’s premier logistics and distribution hubs. Positioned just minutes from Junction 31 of the M62 motorway, the site offers exceptional connectivity to the national motorway network, including the M1 and A1(M), enabling efficient access to Leeds, Wakefield, and wider UK markets.
VAT & Legal costs
VAT will be charged where applicable. Each party will be responsible for their own legal costs incurred in the transaction.
Brochures
Units 2 & 3, Tuscany Court, Express Way, Wakefield Europort, Normanton, WF6 2AE
NEAREST STATIONS
Distances are straight line measurements from the centre of the postcode- Normanton Station1.3 miles
- Castleford Station2.4 miles
- Woodlesford Station2.9 miles
Notes
Disclaimer - Property reference 330813-1. The information displayed about this property comprises a property advertisement. Rightmove.co.uk makes no warranty as to the accuracy or completeness of the advertisement or any linked or associated information, and Rightmove has no control over the content. This property advertisement does not constitute property particulars. The information is provided and maintained by Savills, Leeds Industrial. Please contact the selling agent or developer directly to obtain any information which may be available under the terms of The Energy Performance of Buildings (Certificates and Inspections) (England and Wales) Regulations 2007 or the Home Report if in relation to a residential property in Scotland.
Map data ©OpenStreetMap contributors.





