
2 bedroom semi-detached house for sale
The Sidlesham, Manorwood, East Lane, West Horsley, KT24

- PROPERTY TYPE
Semi-Detached
- BEDROOMS
2
- SIZE
775 sq ft
72 sq m
- TENUREDescribes how you own a property. There are different types of tenure - freehold, leasehold, and commonhold.Read more about tenure in our glossary page.
Freehold
Key features
- Two bedroom home with garage
- South Westerly garden
- Village location
- EV charging points
- New Show home ready to view now
- CONTACT US FOR AN APPOINTMENT
Description
Description
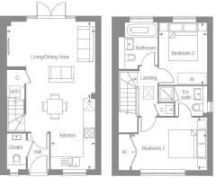
The Sidlesham at Manorwood is a thoughtfully designed two bedroom home. The ground floor offers open plan living with a fully integrated kitchen, and double doors opening on to the garden.
On the first floor you will find both bedrooms and the family bathroom. Bedroom 1 is complete with a en-suite shower room and fitted wardrobes.
Externally the property benefits from a garage, driveway parking and South West facing garden.
Manorwood offers a range of new homes including one and two bedroom apartments, as well as two, three, and four bedroom houses. This selection also features single storey properties. All homes are part of the Thakeham brand, emphasizing a focus on detailed construction and high craftsmanship standards.
The homes have various exterior designs and interior layouts suitable for daily living and entertainment, with features such as spacious living areas connecting to rear gardens through French or bi-fold doors. Thakeham's sustainability efforts include PV panels for solar energy conversion, electric car charging points, low energy lighting, and enhanced insulation in all properties.
Location
West Horsley is located near the Surrey Hills, an Area of Outstanding Natural Beauty, providing access to outdoor activities such as walking and cycling. The village features green spaces for outdoor activities.
West Horsley and Surrey host various festivals and events year-round, including food festivals, art exhibitions, and music concerts.
Equestrian centers and riding schools are available for those interested in horseback riding, with options for lessons, countryside hacks, and participation in competitions.
Guildford, a nearby historic town, offers cobbled streets, independent shops, and shopping centers. West Horsley provides community engagement opportunities through local sports clubs, fitness classes, and arts and crafts workshops.
Square Footage: 775 sq ft
Additional Info
PEA - B
Reservation Fee: £5,000
This development is covered by the Consumer Code for Home Builders
Images are computer generated or of a previous showhome, and are for indicative purposes only.
Brochures
Web Details- COUNCIL TAXA payment made to your local authority in order to pay for local services like schools, libraries, and refuse collection. The amount you pay depends on the value of the property.Read more about council Tax in our glossary page.
- Band: TBC
- PARKINGDetails of how and where vehicles can be parked, and any associated costs.Read more about parking in our glossary page.
- Yes
- GARDENA property has access to an outdoor space, which could be private or shared.
- Yes
- ACCESSIBILITYHow a property has been adapted to meet the needs of vulnerable or disabled individuals.Read more about accessibility in our glossary page.
- Ask agent
Energy performance certificate - ask agent
The Sidlesham, Manorwood, East Lane, West Horsley, KT24
Add an important place to see how long it'd take to get there from our property listings.
__mins driving to your place
Get an instant, personalised result:
- Show sellers you’re serious
- Secure viewings faster with agents
- No impact on your credit score
Your mortgage
Notes
Staying secure when looking for property
Ensure you're up to date with our latest advice on how to avoid fraud or scams when looking for property online.
Visit our security centre to find out moreDisclaimer - Property reference GUD240209. The information displayed about this property comprises a property advertisement. Rightmove.co.uk makes no warranty as to the accuracy or completeness of the advertisement or any linked or associated information, and Rightmove has no control over the content. This property advertisement does not constitute property particulars. The information is provided and maintained by Savills New Homes, Guildford. Please contact the selling agent or developer directly to obtain any information which may be available under the terms of The Energy Performance of Buildings (Certificates and Inspections) (England and Wales) Regulations 2007 or the Home Report if in relation to a residential property in Scotland.
*This is the average speed from the provider with the fastest broadband package available at this postcode. The average speed displayed is based on the download speeds of at least 50% of customers at peak time (8pm to 10pm). Fibre/cable services at the postcode are subject to availability and may differ between properties within a postcode. Speeds can be affected by a range of technical and environmental factors. The speed at the property may be lower than that listed above. You can check the estimated speed and confirm availability to a property prior to purchasing on the broadband provider's website. Providers may increase charges. The information is provided and maintained by Decision Technologies Limited. **This is indicative only and based on a 2-person household with multiple devices and simultaneous usage. Broadband performance is affected by multiple factors including number of occupants and devices, simultaneous usage, router range etc. For more information speak to your broadband provider.
Map data ©OpenStreetMap contributors.





