Oxford Avenue, Gourock

- PROPERTY TYPE
Semi-Detached Bungalow
- BEDROOMS
3
- BATHROOMS
1
- SIZE
Ask agent
- TENUREDescribes how you own a property. There are different types of tenure - freehold, leasehold, and commonhold.Read more about tenure in our glossary page.
Freehold
Description
An exceptionally appealing and beautifully presented SEMI DETACHED BUNGALOW enjoying a superb location moments from picturesque Cardwell Bay area. A beloved family home for many years, the property offers generous/highly flexible accommodation and boasts magnificent mature gardens with Driveway and Garage.
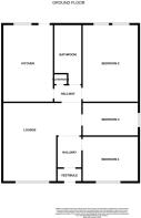
The internal accommodation is in immaculate move-in condition throughout, comprising: Entrance Vestibule leading into Reception Hallway, Comfortable open plan Dining Lounge room with focal fireplace, large front facing window.
Well equipped Breakfasting Kitchen which has been fitted with a variety of contemporary base and wall mounted units, with contrasting worktops, Electric Hob and Double Oven, serving hatch, door leading onto rear garden grounds.
Generously proportioned three Bedrooms two with views towards Firth of Clyde.
Family Bathroom comprising two piece white suite and walk in shower cubicle, Wet Wall panels throughout. Additional Cloakroom Toilet.
To the front of the house a large driveway leads to a single garage and is bordered by a mature trees, Lawn and patio areas. To the rear is an idyllic mature garden which enjoys well kept lawn, a variety of flowering bushes, shrubs and delightful mature trees.
The specification includes Double Glazing and Gas Central Heating.
Viewing is Highly recommended to fully appreciate the locale on offer.
Dining Lounge - 5.04m x 5.20m (16'6" x 17'0") -
Breakfasting Kitchen - 3.97m x 2.53m (13'0" x 8'3") -
Bedroom 1 - 3.36m x 3.77m (11'0" x 12'4") -
Bedroom 2 - 3.34m x 2.29m (10'11" x 7'6") -
Bedroom 3 - 3.08m x 3.35m (10'1" x 10'11") -
Bathroom - 2.40m x 2.14m (7'10" x 7'0") -
Important Note To Purchasers: - **MONEY LAUNDERING REGULATIONS: Intending purchasers will be asked to produce identification documentation at a later stage and we would ask for your co-operation in order that there will be no delay in agreeing the sale**
We endeavour to make our sales particulars accurate and reliable, however, they do not constitute or form part of an offer or any contract and none is to be relied upon as statements of representation or fact. Any services, systems and appliances listed in this specification have not been tested by us and no guarantee as to their operating ability or efficiency is given. All measurements have been taken as a guide to prospective buyers only, and are not precise. Please be advised that some of the particulars may be awaiting vendor approval. If you require clarification or further information on any points, please contact us, especially if you are traveling some distance to view. Fixtures and fittings other than those mentioned are to be agreed with the seller.
Brochures
Oxford Avenue, GourockBrochure- COUNCIL TAXA payment made to your local authority in order to pay for local services like schools, libraries, and refuse collection. The amount you pay depends on the value of the property.Read more about council Tax in our glossary page.
- Band: D
- PARKINGDetails of how and where vehicles can be parked, and any associated costs.Read more about parking in our glossary page.
- Yes
- GARDENA property has access to an outdoor space, which could be private or shared.
- Yes
- ACCESSIBILITYHow a property has been adapted to meet the needs of vulnerable or disabled individuals.Read more about accessibility in our glossary page.
- Ask agent
Oxford Avenue, Gourock
Add an important place to see how long it'd take to get there from our property listings.
__mins driving to your place
Get an instant, personalised result:
- Show sellers you’re serious
- Secure viewings faster with agents
- No impact on your credit score
Your mortgage
Notes
Staying secure when looking for property
Ensure you're up to date with our latest advice on how to avoid fraud or scams when looking for property online.
Visit our security centre to find out moreDisclaimer - Property reference 34126677. The information displayed about this property comprises a property advertisement. Rightmove.co.uk makes no warranty as to the accuracy or completeness of the advertisement or any linked or associated information, and Rightmove has no control over the content. This property advertisement does not constitute property particulars. The information is provided and maintained by Brian Harkins, Port Glasgow. Please contact the selling agent or developer directly to obtain any information which may be available under the terms of The Energy Performance of Buildings (Certificates and Inspections) (England and Wales) Regulations 2007 or the Home Report if in relation to a residential property in Scotland.
*This is the average speed from the provider with the fastest broadband package available at this postcode. The average speed displayed is based on the download speeds of at least 50% of customers at peak time (8pm to 10pm). Fibre/cable services at the postcode are subject to availability and may differ between properties within a postcode. Speeds can be affected by a range of technical and environmental factors. The speed at the property may be lower than that listed above. You can check the estimated speed and confirm availability to a property prior to purchasing on the broadband provider's website. Providers may increase charges. The information is provided and maintained by Decision Technologies Limited. **This is indicative only and based on a 2-person household with multiple devices and simultaneous usage. Broadband performance is affected by multiple factors including number of occupants and devices, simultaneous usage, router range etc. For more information speak to your broadband provider.
Map data ©OpenStreetMap contributors.




