
Henry Littler Way, Whittingham, PR3

- PROPERTY TYPE
Detached
- BEDROOMS
4
- BATHROOMS
3
- SIZE
Ask agent
- TENUREDescribes how you own a property. There are different types of tenure - freehold, leasehold, and commonhold.Read more about tenure in our glossary page.
Freehold
Key features
- Detached Home
- Open Plan Kitchen Dining
- Four Bedrooms
- Great Sized Lounge
- Large Driveway and Garage
- Electric car charger
- Solar panels
- Lovely sunny aspect garden
Description
The property is ideal for those looking for an executive family homes with beautiful views to the side, car charging point, garage and plenty of off road parking. The property benefits from solar panels and an ev charge point. Early viewing comes highly recommended.
Internally the accommodation briefly comprises; to the ground floor; Entrance hall, kitchen diner, cloakroom, utility room and lounge. To the first floor are four bedrooms, master being en suite and a family bathroom. Externally to the rear is a large enclosed garden with decking, lawned area and planters. to the side there is ample off road parking and a garage. The property is freehold.These particulars, whilst believed to be correct, do not form any part of an offer or contract. Intending purchasers should not rely on them as statements or representation of fact. No person in this firm's employment has the authority to make or give any representation or warranty in respect of the property. All measurements quoted are approximate. Although these particulars are thought to be materially correct their accuracy cannot be guaranteed and they do not form part of any contract.
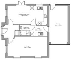
Entrance hallway
Composite door into hallway. Staircase to first floor. Ceiling light point, radiator and access to both lounge and kitchen diner.
Lounge - 22'4 x 10'11 ft (6.81 x 3.33 m)
Dual aspect windows to the front and side aspect, carpet flooring, radiator and two ceiling light points.
Kitchen/Diner - 22'4 x 10'8 ft (6.81 x 3.25 m)
Modern fully fitted dining kitchen having a range of wall and base units with complementary worktops. Stainless steel sink with chrome mixer tap. 4 ring gas hob with stainless extractor hood, fitted oven and grill. Integrated fridge freezer and dishwasher. Recessed lights to ceiling. Patio doors lead onto rear decking. Further window to the rear aspect. Radiator. Access into the utility room.
Utility - 9'6 x 5'4 ft (2.9 x 1.63 m)
Wall and base units with complementary worktop. Space for appliances and plumbed for washing machine. Ceiling light point, radiator and door providing access to the garage.
Cloakroom - 5'9 x 5'7 ft (1.75 x 1.7 m)
Low level wc and pedestal wash hand basin. Ceiling light point, radiator.
Bedroom 1 - 13'4 x 12'6 ft (4.06 x 3.81 m)
Window to front aspect. Carpet flooring, radiator and ceiling light point.
En-suite - 7'2 x 5'8 ft (2.18 x 1.73 m)
Opaque window to front aspect. Shower cubicle with mains shower, low level wc and pedestal wash hand basin. Ladder style towel radiator, ceiling light point. Partially tiled walls.
Bedroom 2 - 12'7 x 11'1 ft (3.84 x 3.38 m)
Dual aspect windows to front and side aspect. Carpet flooring, radiator and ceiling light point.
Bedroom 3 - 10'4 x 9'5 ft (3.15 x 2.87 m)
Window to side aspect. Carpet flooring, radiator and ceiling light point.
Bedroom 4 - 9'11 x 9'4 ft (3.02 x 2.84 m)
Window to side aspect. Carpet flooring, radiator and ceiling light point.
Bathroom - 6'11 x 5'7 ft (2.11 x 1.7 m)
Window to rear aspect. Three piece suite comprises; bath with shower over, low level wc, pedestal wash hand basin. Partially tiled walls , chrome ladder style towel radiator, extractor and ceiling light point.
External
Externally this property has a large sunny aspect garden with both a decking and grassed area. To the side you will find a large driveway with ample parking and a garage.
- COUNCIL TAXA payment made to your local authority in order to pay for local services like schools, libraries, and refuse collection. The amount you pay depends on the value of the property.Read more about council Tax in our glossary page.
- Ask agent
- PARKINGDetails of how and where vehicles can be parked, and any associated costs.Read more about parking in our glossary page.
- Yes
- GARDENA property has access to an outdoor space, which could be private or shared.
- Yes
- ACCESSIBILITYHow a property has been adapted to meet the needs of vulnerable or disabled individuals.Read more about accessibility in our glossary page.
- Ask agent
Henry Littler Way, Whittingham, PR3
Add an important place to see how long it'd take to get there from our property listings.
__mins driving to your place
Get an instant, personalised result:
- Show sellers you’re serious
- Secure viewings faster with agents
- No impact on your credit score
Your mortgage
Notes
Staying secure when looking for property
Ensure you're up to date with our latest advice on how to avoid fraud or scams when looking for property online.
Visit our security centre to find out moreDisclaimer - Property reference 34507. The information displayed about this property comprises a property advertisement. Rightmove.co.uk makes no warranty as to the accuracy or completeness of the advertisement or any linked or associated information, and Rightmove has no control over the content. This property advertisement does not constitute property particulars. The information is provided and maintained by Dewhurst Homes, Longridge. Please contact the selling agent or developer directly to obtain any information which may be available under the terms of The Energy Performance of Buildings (Certificates and Inspections) (England and Wales) Regulations 2007 or the Home Report if in relation to a residential property in Scotland.
*This is the average speed from the provider with the fastest broadband package available at this postcode. The average speed displayed is based on the download speeds of at least 50% of customers at peak time (8pm to 10pm). Fibre/cable services at the postcode are subject to availability and may differ between properties within a postcode. Speeds can be affected by a range of technical and environmental factors. The speed at the property may be lower than that listed above. You can check the estimated speed and confirm availability to a property prior to purchasing on the broadband provider's website. Providers may increase charges. The information is provided and maintained by Decision Technologies Limited. **This is indicative only and based on a 2-person household with multiple devices and simultaneous usage. Broadband performance is affected by multiple factors including number of occupants and devices, simultaneous usage, router range etc. For more information speak to your broadband provider.
Map data ©OpenStreetMap contributors.









