
New Road, Trimley St. Mary, Felixstowe

- PROPERTY TYPE
Detached Bungalow
- BEDROOMS
2
- BATHROOMS
1
- SIZE
Ask agent
- TENUREDescribes how you own a property. There are different types of tenure - freehold, leasehold, and commonhold.Read more about tenure in our glossary page.
Freehold
Key features
- DETACHED BUNGALOW
- HALL
- BATHROOM
- CONSERVATORY
- SOUTH FACING REAR GARDEN
- TWO BEDROOMS
- LIVING ROOM
- KITCHEN
- OFF ROAD PARKING
- SUBJECT TO PROBATE
Description
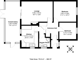
HALL The airing cupboard is in the hall housing the lagged copper hot water cylinder with fitted immersion heater. There is access to the loft void and there is a radiator in the hall.
LIVING ROOM (S INTO CONSERVATORY) 16' 9" x 12' 6" (5.11m x 3.81m) max. The focal point of the room is the gas fire which has a back boiler. There is a radiator in this room and there are sliding glazed doors into the Conservatory.
KITCHEN (E&S) 11' 6" x 9' (3.51m x 2.74m) Fitted with a range of wall and base units and an inset enamel sink unit with single drainer. There is an electric cooker point and plumbing for a washing machine in the kitchen. There is a useful pantry cupboard and a radiator in the kitchen too.
BEDROOM (N) 12' x 11' (3.66m x 3.35m) A double room with a radiator and window to front.
BEDROOM (N) 9' x 9' (2.74m x 2.74m) Another bedroom with radiator and window to front.
BATHROOM (E) 7' x 6' 3" (2.13m x 1.91m) Fitted with a three piece suite comprising Shower with electric shower unit, vanity ubit with wash basin and low level WC. There is a towel rail/radiator in the bathroom.
CONSERVATORY 22' x 7' 9" (6.71m x 2.36m) Of double glazed and UPVC construction under a poly carbonate roof. The floor is tiled and there are glazed external doors.
OUTSIDE The front garden is gravelled and the drive leads in past the East of the bungalow providing off road parking.
Immediately to the South of the bungalow is an Indian Sandstone terrace which continues round to the East. Beyond the terrace is a very private South facing garden.
AGENTS NOTE: The sale is subject to probate being granted.
ENERGY PERFOMANCE CERTIFICATE The current EPC rating is D(56) with a potential of C (78) which is valid until September 2035
Brochures
brochure- COUNCIL TAXA payment made to your local authority in order to pay for local services like schools, libraries, and refuse collection. The amount you pay depends on the value of the property.Read more about council Tax in our glossary page.
- Ask agent
- PARKINGDetails of how and where vehicles can be parked, and any associated costs.Read more about parking in our glossary page.
- Off street
- GARDENA property has access to an outdoor space, which could be private or shared.
- Yes
- ACCESSIBILITYHow a property has been adapted to meet the needs of vulnerable or disabled individuals.Read more about accessibility in our glossary page.
- Ask agent
New Road, Trimley St. Mary, Felixstowe
Add an important place to see how long it'd take to get there from our property listings.
__mins driving to your place
Get an instant, personalised result:
- Show sellers you’re serious
- Secure viewings faster with agents
- No impact on your credit score
Your mortgage
Notes
Staying secure when looking for property
Ensure you're up to date with our latest advice on how to avoid fraud or scams when looking for property online.
Visit our security centre to find out moreDisclaimer - Property reference 100958008005. The information displayed about this property comprises a property advertisement. Rightmove.co.uk makes no warranty as to the accuracy or completeness of the advertisement or any linked or associated information, and Rightmove has no control over the content. This property advertisement does not constitute property particulars. The information is provided and maintained by Diamond Mills & Co, Felixstowe. Please contact the selling agent or developer directly to obtain any information which may be available under the terms of The Energy Performance of Buildings (Certificates and Inspections) (England and Wales) Regulations 2007 or the Home Report if in relation to a residential property in Scotland.
*This is the average speed from the provider with the fastest broadband package available at this postcode. The average speed displayed is based on the download speeds of at least 50% of customers at peak time (8pm to 10pm). Fibre/cable services at the postcode are subject to availability and may differ between properties within a postcode. Speeds can be affected by a range of technical and environmental factors. The speed at the property may be lower than that listed above. You can check the estimated speed and confirm availability to a property prior to purchasing on the broadband provider's website. Providers may increase charges. The information is provided and maintained by Decision Technologies Limited. **This is indicative only and based on a 2-person household with multiple devices and simultaneous usage. Broadband performance is affected by multiple factors including number of occupants and devices, simultaneous usage, router range etc. For more information speak to your broadband provider.
Map data ©OpenStreetMap contributors.









