
4 bedroom semi-detached house for sale
Haslemere Heights, Hill Road, Haslemere, Surrey, GU27

- PROPERTY TYPE
Semi-Detached
- BEDROOMS
4
- BATHROOMS
3
- SIZE
2,438 sq ft
226 sq m
- TENUREDescribes how you own a property. There are different types of tenure - freehold, leasehold, and commonhold.Read more about tenure in our glossary page.
Freehold
Key features
- 4 bedrooms
- 3 reception rooms
- 3 bathrooms
- Elevated position in a desirable Haslemere location
- Built to Runnymede Homes’ award-winning high specification
- Private garden and terrace with direct access from living areas
- Garage and driveway parking
- Open-plan kitchen/dining/living hub with glazed French doors
- Principal suite with dressing area, built-in wardrobes and en suite
- Bespoke Wooden Heart kitchen with Siemens appliances
Description
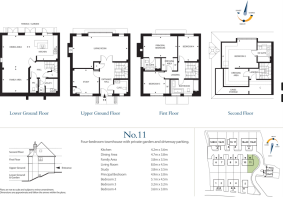
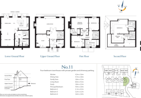
Plot 11 is a four bedroom semi-detached home, built to Runnymede’s award-winning and customary high standard to include a high level of specification, private garden, garage and driveway parking.
Enter the home from the upper ground floor with entrance hall, cloak room, living room and study. The stairway leads up to the bedroom levels and down to a lower ground floor. It is here you will find the home's hub, a wonderful open-plan layout that features the kitchen, along with distinct dining and living areas. This light-filled level provides access directly onto the terrace and private garden via French glazed doors.
The principal suite on the first floor incudes a dressing area with built-in wardrobes and en suite. A further two bedrooms and family bathroom also occupy this level. An additional large bedroom occupies the second floor, again with dressing area and en suite. This top floor also offers plenty of eaves storage.
At Haslemere Heights, Runnymede Homes aims to incorporate practical, yet stylish design elements. Traditionally-built, these homes enjoy the closest attention to detail with meticulous finishing throughout. In addition, the homes feature superb standards of insulation to provide high levels of energy efficiency.
Bespoke designed kitchens by Wooden Heart combine with Siemens advanced technology appliances, luxury bathroom brands bathroom brands such as Hansgrohe and Villeroy & Boch also complement the desirable living space. As the specification suggests, the homes are designed to stand the test of time and provide a lifetime of enjoyment.
Contact Knight Frank today to schedule a private viewing.
*External images are CGI and the internal images are of the new show home, Plot 11. For indicative purposes.
Surrounded by spectacular Surrey Hills countryside, a number of vibrant yet tranquil villages, excellent state and independent schools and easy access to London, it isn’t surprising that Haslemere is so desirable.
Haslemere has it’s own train station and Liphook station is also nearby – London can be accessed via trains to London Waterloo in under an hour. For car journeys away from Haslemere, there is an easy access to the A3 and the M25 linking the motorway network, airports and further afield destinations with ease.
Brochures
More Details- COUNCIL TAXA payment made to your local authority in order to pay for local services like schools, libraries, and refuse collection. The amount you pay depends on the value of the property.Read more about council Tax in our glossary page.
- Ask agent
- PARKINGDetails of how and where vehicles can be parked, and any associated costs.Read more about parking in our glossary page.
- Driveway
- GARDENA property has access to an outdoor space, which could be private or shared.
- Yes
- ACCESSIBILITYHow a property has been adapted to meet the needs of vulnerable or disabled individuals.Read more about accessibility in our glossary page.
- Ask agent
Haslemere Heights, Hill Road, Haslemere, Surrey, GU27
Add an important place to see how long it'd take to get there from our property listings.
__mins driving to your place
Get an instant, personalised result:
- Show sellers you’re serious
- Secure viewings faster with agents
- No impact on your credit score



Your mortgage
Notes
Staying secure when looking for property
Ensure you're up to date with our latest advice on how to avoid fraud or scams when looking for property online.
Visit our security centre to find out moreDisclaimer - Property reference GLR012410951. The information displayed about this property comprises a property advertisement. Rightmove.co.uk makes no warranty as to the accuracy or completeness of the advertisement or any linked or associated information, and Rightmove has no control over the content. This property advertisement does not constitute property particulars. The information is provided and maintained by Knight Frank - New Homes, South East. Please contact the selling agent or developer directly to obtain any information which may be available under the terms of The Energy Performance of Buildings (Certificates and Inspections) (England and Wales) Regulations 2007 or the Home Report if in relation to a residential property in Scotland.
*This is the average speed from the provider with the fastest broadband package available at this postcode. The average speed displayed is based on the download speeds of at least 50% of customers at peak time (8pm to 10pm). Fibre/cable services at the postcode are subject to availability and may differ between properties within a postcode. Speeds can be affected by a range of technical and environmental factors. The speed at the property may be lower than that listed above. You can check the estimated speed and confirm availability to a property prior to purchasing on the broadband provider's website. Providers may increase charges. The information is provided and maintained by Decision Technologies Limited. **This is indicative only and based on a 2-person household with multiple devices and simultaneous usage. Broadband performance is affected by multiple factors including number of occupants and devices, simultaneous usage, router range etc. For more information speak to your broadband provider.
Map data ©OpenStreetMap contributors.





