Heaton Way, Kirkham

- PROPERTY TYPE
Semi-Detached
- BEDROOMS
2
- BATHROOMS
1
- SIZE
Ask agent
Key features
- Semi Detached Property
- Two Double Bedrooms
- Lounge
- Dining Kitchen
- Downstairs WC
- Parking
- Garden
- Sold As A 40% Share
Description
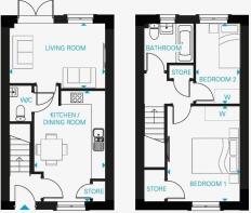
Ground Floor
Entrance Hall
4' 4'' x 4' 4'' (1.32m x 1.32m)
Radiator, stairs to first floor.
Downstairs WC
5' 3'' x 3' 2'' (1.60m x 0.96m)
Low level WC, wash basin, radiator.
Lounge
13' 8'' x 9' 4'' (4.16m x 2.84m)
Radiator, window to rear, French doors to garden.
Dining Kitchen
15' 5'' x 8' 8'' (4.70m x 2.64m)
Fitted with a range of base and eye level units incorporating a sink and drainer, gas hob with extractor over, oven, space for washing machine, dishwasher and fridge freezer, radiator, window to front.
First Floor
Landing
Storage cupboard.
Bedroom One
13' 6'' x 10' 2'' (4.11m x 3.10m)
Radiator, storage cupboard, window to front.
Bedroom Two
11' 5'' x 6' 3'' (3.48m x 1.90m)
Radiator, window to rear.
Bathroom
7' 0'' x 6' 7'' (2.13m x 2.01m)
Suit comprising of a low level WC, wash basin, panelled bath with shower over, part tiled walls, radiator, window to rear.
External
Externally there is off road parking for two vehicles, with side access to the rear garden and patio area.
Brochures
Property BrochureFull Details- COUNCIL TAXA payment made to your local authority in order to pay for local services like schools, libraries, and refuse collection. The amount you pay depends on the value of the property.Read more about council Tax in our glossary page.
- Band: B
- PARKINGDetails of how and where vehicles can be parked, and any associated costs.Read more about parking in our glossary page.
- Yes
- GARDENA property has access to an outdoor space, which could be private or shared.
- Yes
- ACCESSIBILITYHow a property has been adapted to meet the needs of vulnerable or disabled individuals.Read more about accessibility in our glossary page.
- Ask agent
Heaton Way, Kirkham
Add an important place to see how long it'd take to get there from our property listings.
__mins driving to your place
Get an instant, personalised result:
- Show sellers you’re serious
- Secure viewings faster with agents
- No impact on your credit score
Your mortgage
Notes
Staying secure when looking for property
Ensure you're up to date with our latest advice on how to avoid fraud or scams when looking for property online.
Visit our security centre to find out moreDisclaimer - Property reference 12756347. The information displayed about this property comprises a property advertisement. Rightmove.co.uk makes no warranty as to the accuracy or completeness of the advertisement or any linked or associated information, and Rightmove has no control over the content. This property advertisement does not constitute property particulars. The information is provided and maintained by Plumlife Move, Cheadle Hulme. Please contact the selling agent or developer directly to obtain any information which may be available under the terms of The Energy Performance of Buildings (Certificates and Inspections) (England and Wales) Regulations 2007 or the Home Report if in relation to a residential property in Scotland.
*This is the average speed from the provider with the fastest broadband package available at this postcode. The average speed displayed is based on the download speeds of at least 50% of customers at peak time (8pm to 10pm). Fibre/cable services at the postcode are subject to availability and may differ between properties within a postcode. Speeds can be affected by a range of technical and environmental factors. The speed at the property may be lower than that listed above. You can check the estimated speed and confirm availability to a property prior to purchasing on the broadband provider's website. Providers may increase charges. The information is provided and maintained by Decision Technologies Limited. **This is indicative only and based on a 2-person household with multiple devices and simultaneous usage. Broadband performance is affected by multiple factors including number of occupants and devices, simultaneous usage, router range etc. For more information speak to your broadband provider.
Map data ©OpenStreetMap contributors.




