
3 bedroom flat for sale
Polnoon Street, Eaglesham, G76

- PROPERTY TYPE
Flat
- BEDROOMS
3
- BATHROOMS
1
- SIZE
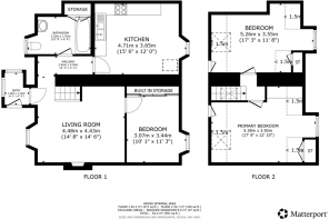
1,259 sq ft
117 sq m
- TENUREDescribes how you own a property. There are different types of tenure - freehold, leasehold, and commonhold.Read more about tenure in our glossary page.
Freehold
Key features
- Impressive three-bedroom character property overlooking the Eaglesham 'orry'
- Central village location close to shops , local eateries and peaceful outdoor spaces.
- Striking large garden space to the rear of the property.
Description
Echoing the 18th century architecture for which Eaglesham village is renowned; 16B Polnoon Street is an enchanting property which effortlessly fuses traditional charm with a more contemporary interior finish to create a truly impressive home.
Upon entering the ground floor from a highly practical entrance porch, you are greeted by a cosy living room that exudes a rustic feel with striking views captured over the seemingly never ending garden and featuring a stunning solid fuel burner at its focal point. The generously sized kitchen is fully equipped with all necessary appliances and hosts a comprehensive range of base and wall mounted units along with ample space for family dining. The ground floor also hosts a well-presented double bedroom with built-in storage and a striking traditional bathroom featuring a white three-piece suite incorporating a convenient shower bath combo. Ascending to the upper floor, you will find two further good-sized double bedrooms, providing plenty of space for family living or guest accommodation. Externally, the property boasts significant garden grounds that are stunningly presented and ideal for al fresco entertaining. The property enjoys an excellent school catchment area and is well-connected with bus transport links to the greater Glasgow area. A host of local amenities such as shops, restaurants, bars, and cafes are within easy reach, while leisurely walks invite you to explore the picturesque surroundings.
- COUNCIL TAXA payment made to your local authority in order to pay for local services like schools, libraries, and refuse collection. The amount you pay depends on the value of the property.Read more about council Tax in our glossary page.
- Ask agent
- PARKINGDetails of how and where vehicles can be parked, and any associated costs.Read more about parking in our glossary page.
- Ask agent
- GARDENA property has access to an outdoor space, which could be private or shared.
- Yes
- ACCESSIBILITYHow a property has been adapted to meet the needs of vulnerable or disabled individuals.Read more about accessibility in our glossary page.
- Ask agent
Energy performance certificate - ask agent
Polnoon Street, Eaglesham, G76
Add an important place to see how long it'd take to get there from our property listings.
__mins driving to your place
Get an instant, personalised result:
- Show sellers you’re serious
- Secure viewings faster with agents
- No impact on your credit score
Your mortgage
Notes
Staying secure when looking for property
Ensure you're up to date with our latest advice on how to avoid fraud or scams when looking for property online.
Visit our security centre to find out moreDisclaimer - Property reference 75880dad-a850-4473-bf1a-f24d6ef23578. The information displayed about this property comprises a property advertisement. Rightmove.co.uk makes no warranty as to the accuracy or completeness of the advertisement or any linked or associated information, and Rightmove has no control over the content. This property advertisement does not constitute property particulars. The information is provided and maintained by Clyde Property, Clarkston. Please contact the selling agent or developer directly to obtain any information which may be available under the terms of The Energy Performance of Buildings (Certificates and Inspections) (England and Wales) Regulations 2007 or the Home Report if in relation to a residential property in Scotland.
*This is the average speed from the provider with the fastest broadband package available at this postcode. The average speed displayed is based on the download speeds of at least 50% of customers at peak time (8pm to 10pm). Fibre/cable services at the postcode are subject to availability and may differ between properties within a postcode. Speeds can be affected by a range of technical and environmental factors. The speed at the property may be lower than that listed above. You can check the estimated speed and confirm availability to a property prior to purchasing on the broadband provider's website. Providers may increase charges. The information is provided and maintained by Decision Technologies Limited. **This is indicative only and based on a 2-person household with multiple devices and simultaneous usage. Broadband performance is affected by multiple factors including number of occupants and devices, simultaneous usage, router range etc. For more information speak to your broadband provider.
Map data ©OpenStreetMap contributors.








