Cheltenham Road, Painswick, Stroud

- PROPERTY TYPE
Detached
- BEDROOMS
5
- BATHROOMS
4
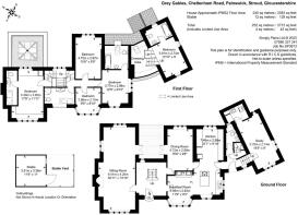
- SIZE
2,712 sq ft
252 sq m
- TENUREDescribes how you own a property. There are different types of tenure - freehold, leasehold, and commonhold.Read more about tenure in our glossary page.
Freehold
Key features
- Handsome Family Home
- 5 Bedrooms
- Ideally Configured to Create an Annexe
- Three Receptions
- Grounds of Just Under an Acre
- Pony Paddock and Stable
- Views
- Edge of Village Location
Description
Description - Grey Gables offers a beautifully proportioned family home with carefully thought-out living spaces and an abundance of natural light. Located at the end of a sweeping drive, the property is impressive and welcoming in equal measure.
The house opens to a spacious reception hall with wide oak board parquet flooring and handsome oak staircase, creating an immediate sense of warmth and space.
The L shaped kitchen is clearly the heart of the home. Fitted units provide ample discreet storage and a charming bay window seat provides a seating area for relaxed dining. A large centre island offers additional space for food preparation and cooking.
The sitting room runs the depth of the house with the sympathetic more recent addition of an orangery to the rear. A tremendous space for entertaining, this beautifully proportioned room works equally well for everyday living. A central fireplace creates a warming focal point to the room and doors open to a sheltered decking area, ideal for alfresco hosting in the warmer months.
The dining room is ideal for more formal entertaining, again with doors opening to the rear decking area, perfect for pre-dinner drinks. Both the dining and sitting room have pretty views overlooking the rear garden.
A separate wing of the house contains a useful cloakroom, laundry room, good-sized home office and an en-suite bedroom; this wing of the house is ideally suited for conversion to a self-contained annexe.
A feature split staircase leads to the first floor with the principal en-suite bedroom off one side of the staircase and three further bedrooms off the other side, one with en-suite plus a family bathroom. All of the bedrooms benefit from lovely views, the 3 front-facing rooms overlooking the valley and the rear facing bedroom with pretty views over the garden.
Garden And Grounds - A sweeping drive leads to the property flanked with gently sloping lawns and mature trees and well-stocked borders.
The majority of the grounds are set to the rear of the property, offering privacy and a wonderful space to both relax and entertain.
A decking area leads directly from the house with steps up to a raised patio with room for garden furniture.
Gently sloping lawns sweep away from the house with a pony paddock and stable at the top of the garden.
The garden and grounds total just under one acre.
Brochures
Cheltenham Road, Painswick, Stroud- COUNCIL TAXA payment made to your local authority in order to pay for local services like schools, libraries, and refuse collection. The amount you pay depends on the value of the property.Read more about council Tax in our glossary page.
- Band: G
- PARKINGDetails of how and where vehicles can be parked, and any associated costs.Read more about parking in our glossary page.
- Driveway
- GARDENA property has access to an outdoor space, which could be private or shared.
- Yes
- ACCESSIBILITYHow a property has been adapted to meet the needs of vulnerable or disabled individuals.Read more about accessibility in our glossary page.
- Ask agent
Cheltenham Road, Painswick, Stroud
Add an important place to see how long it'd take to get there from our property listings.
__mins driving to your place
Get an instant, personalised result:
- Show sellers you’re serious
- Secure viewings faster with agents
- No impact on your credit score
Your mortgage
Notes
Staying secure when looking for property
Ensure you're up to date with our latest advice on how to avoid fraud or scams when looking for property online.
Visit our security centre to find out moreDisclaimer - Property reference 34190903. The information displayed about this property comprises a property advertisement. Rightmove.co.uk makes no warranty as to the accuracy or completeness of the advertisement or any linked or associated information, and Rightmove has no control over the content. This property advertisement does not constitute property particulars. The information is provided and maintained by Murrays Estate Agents, Painswick. Please contact the selling agent or developer directly to obtain any information which may be available under the terms of The Energy Performance of Buildings (Certificates and Inspections) (England and Wales) Regulations 2007 or the Home Report if in relation to a residential property in Scotland.
*This is the average speed from the provider with the fastest broadband package available at this postcode. The average speed displayed is based on the download speeds of at least 50% of customers at peak time (8pm to 10pm). Fibre/cable services at the postcode are subject to availability and may differ between properties within a postcode. Speeds can be affected by a range of technical and environmental factors. The speed at the property may be lower than that listed above. You can check the estimated speed and confirm availability to a property prior to purchasing on the broadband provider's website. Providers may increase charges. The information is provided and maintained by Decision Technologies Limited. **This is indicative only and based on a 2-person household with multiple devices and simultaneous usage. Broadband performance is affected by multiple factors including number of occupants and devices, simultaneous usage, router range etc. For more information speak to your broadband provider.
Map data ©OpenStreetMap contributors.




