3 bedroom maisonette for sale
Church Street, Sidmouth, EX10 8LY

- PROPERTY TYPE
Maisonette
- BEDROOMS
3
- BATHROOMS
1
- SIZE
Ask agent
- TENUREDescribes how you own a property. There are different types of tenure - freehold, leasehold, and commonhold.Read more about tenure in our glossary page.
Freehold
Key features
- In the heart of town
- Characterful and deceptively spacious
- Kitchen/breakfast room
- Sitting room/dining room
- Three bedrooms
- Master bedroom with built-in wardrobes
- Bathroom
- Pleasant views towards the church
- No onward chain
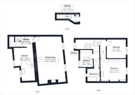
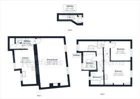
Description
This charming property enjoys a highly convenient location in the heart of town with all the excellent amenities within a short walk. A wonderful stroll along Sidmouth's beautiful Esplanade could be a daily occurrence when living in this comfortable home, and it would easily lend itself as a coastal retreat/holiday home if required.
The characterful and well-proportioned accommodation briefly comprises; reception hall leading to a well-equipped kitchen/breakfast room which is fitted with a range of modern cupboards and drawers at both base and eye level, providing plenty of storage. There is a built-in oven and hob, along with space for further modern appliances. The granite effect worktops provide ample space for food preparation and there is room for a breakfast table and chairs. The sitting room/dining room is an impressive, spacious room with a feature focal fireplace.
On the second floor is a family bathroom which is fitted with a modern white suite and a hidden bedroom.
Two further double bedrooms on the third floor both enjoy a pleasant view of the church and one is fitted with a range of wardrobes and a vanity sink unit. The property is electrically heated and has traditional timber windows expected for this age of property.
A super maisonette in a desirable position. Early inspection recommended.
DIRECTIONS What3words:///path.sooner.tides
VIEWINGS By prior appointment with Redferns on
SERVICES We understand all mains services are connected
OUTGOINGS Council Tax Band B
TENURE Freehold
MOBILE AND BROADBAND COVERAGE Broadband is connected to this property. For specific checks, please use this link checker.ofcom.org.uk
AGENTS NOTE Data Protection Act of 2017. We are now required to obtain proof of ID and proof of residence for any prospective purchaser before formally agreeing to a sale. Photographic identification such as a passport or driving licence, proof of residence, utility bill, council tax or official Inland Revenue correspondence.
IMPORTANT NOTICE 1. Every care is taken in preparing these particulars, but they do not constitute nor constitute any part of an offer or a contract. They are prepared in good faith, but they are for guidance only and are intended to give a fair description of the property. 2. Statements contained in these particulars are not to be relied on as statements or representations of fact and are made without responsibility on the part of the agents or vendor. An intending purchaser must satisfy himself by inspection or otherwise as to the correctness of each statement. The vendor does not make or give and neither the agents or their employees have authority to make or give any representation or warranty in relation to the property or its use. 3. Any reference to alterations to or use of any part of the property is not a statement that any necessary planning, building regulations or other consent has been obtained. These must be verified by any intending purchaser. 4. All properties are offered subject to contract and being unsold. No responsibility can be accepted for any expenses incurred by any intending purchaser in inspecting any property which has been sold, let or withdrawn. 5. The photographs show only certain parts and aspects of the property at the time they were taken. Any areas, measurements or distances given are approximate only. 6. Descriptions of a property are inevitably subjective, but we endeavour to make our particulars accurate. If there are any points of particular importance please contact us before viewing and we will be pleased to check or clarify information. Redferns is a trading name of Redferns Ottery St Mary Limited Registered in England and Wales 4817078. Registered Office 8 Mill Street, Ottery St Mary, Devon EX11 1AD
Brochures
Brochure 1- COUNCIL TAXA payment made to your local authority in order to pay for local services like schools, libraries, and refuse collection. The amount you pay depends on the value of the property.Read more about council Tax in our glossary page.
- Band: B
- PARKINGDetails of how and where vehicles can be parked, and any associated costs.Read more about parking in our glossary page.
- Ask agent
- GARDENA property has access to an outdoor space, which could be private or shared.
- Ask agent
- ACCESSIBILITYHow a property has been adapted to meet the needs of vulnerable or disabled individuals.Read more about accessibility in our glossary page.
- Ask agent
Energy performance certificate - ask agent
Church Street, Sidmouth, EX10 8LY
Add an important place to see how long it'd take to get there from our property listings.
__mins driving to your place
Get an instant, personalised result:
- Show sellers you’re serious
- Secure viewings faster with agents
- No impact on your credit score



Your mortgage
Notes
Staying secure when looking for property
Ensure you're up to date with our latest advice on how to avoid fraud or scams when looking for property online.
Visit our security centre to find out moreDisclaimer - Property reference S1413581. The information displayed about this property comprises a property advertisement. Rightmove.co.uk makes no warranty as to the accuracy or completeness of the advertisement or any linked or associated information, and Rightmove has no control over the content. This property advertisement does not constitute property particulars. The information is provided and maintained by Redferns Estate and Letting agents, Sidmouth. Please contact the selling agent or developer directly to obtain any information which may be available under the terms of The Energy Performance of Buildings (Certificates and Inspections) (England and Wales) Regulations 2007 or the Home Report if in relation to a residential property in Scotland.
*This is the average speed from the provider with the fastest broadband package available at this postcode. The average speed displayed is based on the download speeds of at least 50% of customers at peak time (8pm to 10pm). Fibre/cable services at the postcode are subject to availability and may differ between properties within a postcode. Speeds can be affected by a range of technical and environmental factors. The speed at the property may be lower than that listed above. You can check the estimated speed and confirm availability to a property prior to purchasing on the broadband provider's website. Providers may increase charges. The information is provided and maintained by Decision Technologies Limited. **This is indicative only and based on a 2-person household with multiple devices and simultaneous usage. Broadband performance is affected by multiple factors including number of occupants and devices, simultaneous usage, router range etc. For more information speak to your broadband provider.
Map data ©OpenStreetMap contributors.





