
Palmers Field Avenue, Chichester, PO19

- PROPERTY TYPE
Apartment
- BEDROOMS
1
- BATHROOMS
1
- SIZE
Ask agent
Key features
- A Retirement Living PLUS development for the Over 70's
- 24/7 Call System & 24 Hour Staffing with House/Estates Manager
- Camera Entry System
- Communal Lounge, Bistro and Guest Suitee
- Car Parking & Guest Parking
- Wheelchair Access & Mobility Scooter Room
- Care Provisions
- Wellness Suite
- Carpets, Flooring & White Goods included
- Lifts to all floors
Description
Open Weekend this coming Friday & Saturday, 10th, 11th October from 10.20 to 4pm - Call to book your appointment
For any reservation received before October 31st, McCarthy Stone will include 1 year’s service charge on selected apartments. (t&cs apply)
Twelve Acres Place is now OVER 40% Reserved! To arrange your viewing of the Show Apartments at Twelve Acres Place, please call us on .
Plot 55 Twelve Acres Place is a 1 bedroom 3rd floor apartment with balcony overlooking the green. Priced at £385,000.
Brought to you by McCarthy Stone, Twelve Acres Place comprises 61 one and two bedroom properties, each apartment is exquisitely finished and comes fitted with carpets, flooring and white goods. Designed with the over 70’s in mind, Twelve Acres Place is built to high standards and is an ideal place to live life your way.
Situated on the unique Graylingwell Park, the largest carbon neutral development in the UK, this is going to be a Retirement Living PLUS development for the over 70's, offering 61 beautiful retirement properties for sale. Some apartments will have balconies and all will share stylish communal facilities and an amazing location. Graylingwell Park is an eco-friendly Conservation Area of parkland mixed with Grade II listed buildings, a monument, landmarks and hundreds of protected trees. This Retirement Living PLUS development will offer a multitude of activities and attractions on the doorstep.
Retirement Living with a big PLUS
These properties for sale, rent and Shared Ownership in Chichester, West Sussex offer you the complete privacy of your own spacious apartment, but with a friendly community outside your front door – and assisted living services to support you too.
Independence combined with support
There’s a friendly manager on-site 24/7
An hour’s domestic support each week is included – but you can have more if you want it.
Tailored personal care should you need it.
On-site Bistro
Apartments designed with you in mind
All these retirement homes are cleverly designed with smart yet stylish features like easy turn taps, to make life easier now and in the future. Low maintenance, warm and elegant, with the latest security and safety features built in, most of our homeowners enjoy cheaper bills. Parking is available and well-behaved pets are welcome.
Please contact us for details of the reservation fee and Terms & Conditions.
Council Tax Banding is not set until after legal completion. For more information please contact the Local Authority.
EPC to be advised.
Lease: 1000 years remaining
Annual Service Charge: £8,805.55 - 1 Bed Apartment
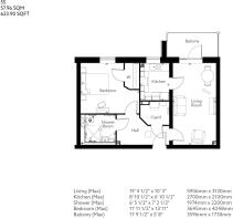
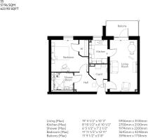
NB Internal images are from the 1 bedroom Show Apartment at Twelve Acres Place for illustrative purposes only and are NOT plot specific.
Living/Dining Room (3.12m x 5.89m)
Kitchen (2.08m x 2.69m)
Bedroom (4.24m x 3.63m)
Shower (2.18m x 1.96m)
- COUNCIL TAXA payment made to your local authority in order to pay for local services like schools, libraries, and refuse collection. The amount you pay depends on the value of the property.Read more about council Tax in our glossary page.
- Ask agent
- PARKINGDetails of how and where vehicles can be parked, and any associated costs.Read more about parking in our glossary page.
- Yes
- GARDENA property has access to an outdoor space, which could be private or shared.
- Ask agent
- ACCESSIBILITYHow a property has been adapted to meet the needs of vulnerable or disabled individuals.Read more about accessibility in our glossary page.
- Ask agent
Energy performance certificate - ask agent
Palmers Field Avenue, Chichester, PO19
Add an important place to see how long it'd take to get there from our property listings.
__mins driving to your place
Explore area BETA
Chichester
Get to know this area with AI-generated guides about local green spaces, transport links, restaurants and more.
Get an instant, personalised result:
- Show sellers you’re serious
- Secure viewings faster with agents
- No impact on your credit score
Your mortgage
Notes
Staying secure when looking for property
Ensure you're up to date with our latest advice on how to avoid fraud or scams when looking for property online.
Visit our security centre to find out moreDisclaimer - Property reference beb5e1c4-f3be-4792-90e8-914e3fee93a5. The information displayed about this property comprises a property advertisement. Rightmove.co.uk makes no warranty as to the accuracy or completeness of the advertisement or any linked or associated information, and Rightmove has no control over the content. This property advertisement does not constitute property particulars. The information is provided and maintained by Henry Adams Simply New Homes, Chichester. Please contact the selling agent or developer directly to obtain any information which may be available under the terms of The Energy Performance of Buildings (Certificates and Inspections) (England and Wales) Regulations 2007 or the Home Report if in relation to a residential property in Scotland.
*This is the average speed from the provider with the fastest broadband package available at this postcode. The average speed displayed is based on the download speeds of at least 50% of customers at peak time (8pm to 10pm). Fibre/cable services at the postcode are subject to availability and may differ between properties within a postcode. Speeds can be affected by a range of technical and environmental factors. The speed at the property may be lower than that listed above. You can check the estimated speed and confirm availability to a property prior to purchasing on the broadband provider's website. Providers may increase charges. The information is provided and maintained by Decision Technologies Limited. **This is indicative only and based on a 2-person household with multiple devices and simultaneous usage. Broadband performance is affected by multiple factors including number of occupants and devices, simultaneous usage, router range etc. For more information speak to your broadband provider.
Map data ©OpenStreetMap contributors.






