
Queens Terrace, Handforth, SK9

- PROPERTY TYPE
Terraced
- BEDROOMS
2
- BATHROOMS
1
- SIZE
Ask agent
- TENUREDescribes how you own a property. There are different types of tenure - freehold, leasehold, and commonhold.Read more about tenure in our glossary page.
Freehold
Key features
- FIRST TIME ON THE MARKET IN OVER 60 YEARS
- VIEWING ESSENTIAL
- DOWNSTAIRS WC
- RECENTLY FITTED KITCHEN
- CELLAR WITH AMPLE STORAGE
- FRONT GARDEN
- ROADSIDE PARKING
- IMMACULATELY PRESENTED
Description
The Property
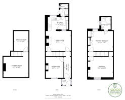
Comprising of:
- Entrance Porch- with front window and main entrance to the property.
- Living Room – With electric fire and stone surround, bay window to the front, carpet and radiator.
- Family Room – With electric fire and marble surround, door leading to the cellar, carpet, radiator and access to the kitchen.
- Kitchen – Stylish, modern, fitted kitchen with laminate worktops, a range of base and wall units, integrated fridge freezer and oven with extractor, electric hob, sink with mixer tap and vinyl flooring.
- Utility Room – with space for washer and dryer, door leading to the downstairs W/C. Rear door leading to backyard.
The stairs to the first-floor lead to.…
- Bedroom 1 – A large double room with built in wardrobes, window to the rear of the property, carpets and radiator. Boiler situated in airing cupboard. Door leading to main bathroom.
- Bedroom 2 – A double room with window to the front of the property, built in wardrobe, carpet and radiator. Large loft storage with good access and electric.
- Bathroom – Walk in shower, basin, W/C, heated towel rail, tiled flooring and walls and privacy window to the rear.
- Cellar – Large storage area under the whole house, comprises of 2 rooms with electrics.
Outside – Private rear backyard and back gate. Private garden to the front of the property with shed and seating area by the front door. Shared access footpath.
Gas Boiler is serviced annually.
Variety of broadband services available to the property.
Location
In a great location within walking distance of Handforth Dean and Stanley Green, convenient for transport into Manchester City Centre, Stockport and the beautiful Cheshire Countryside, Styal Mill Country Park is a stone’s throw from Handforth. In recent years neighbouring Handforth Dean/Stanley Green has grown to become a thriving Business Hub offering a large variety of employment opportunities. There is the popular Wilmslow Farmers Market which is bustling with Arts, Antiques, Crafts, Food and Drink as well as a Makers Market in the neighbouring Heald Green. Locally there are many Independent and State Primary and Secondary Schools and access points to the Northwest Motorway network system. Manchester International Airport and some of Cheshire's finest countryside
Disclaimer
These particulars do not constitute or form part of an offer or contract nor may they be regarded as representations. All dimensions are approximate for guidance only, their accuracy cannot be confirmed. Reference to appliances and/or services does not imply that they are necessarily in working order or fit for purpose or included in the Sale. Buyers are advised to obtain verification from their solicitors as to the tenure if the property, as well as fixtures and fittings and where the property has been extended/converted as to planning approval and building regulations. All interested parties must themselves verify their accuracy.
Council Tax Band
The council tax band for this property is C.
Brochures
Brochure 1- COUNCIL TAXA payment made to your local authority in order to pay for local services like schools, libraries, and refuse collection. The amount you pay depends on the value of the property.Read more about council Tax in our glossary page.
- Ask agent
- PARKINGDetails of how and where vehicles can be parked, and any associated costs.Read more about parking in our glossary page.
- Yes
- GARDENA property has access to an outdoor space, which could be private or shared.
- Yes
- ACCESSIBILITYHow a property has been adapted to meet the needs of vulnerable or disabled individuals.Read more about accessibility in our glossary page.
- Ask agent
Queens Terrace, Handforth, SK9
Add an important place to see how long it'd take to get there from our property listings.
__mins driving to your place
Get an instant, personalised result:
- Show sellers you’re serious
- Secure viewings faster with agents
- No impact on your credit score
Your mortgage
Notes
Staying secure when looking for property
Ensure you're up to date with our latest advice on how to avoid fraud or scams when looking for property online.
Visit our security centre to find out moreDisclaimer - Property reference 23770. The information displayed about this property comprises a property advertisement. Rightmove.co.uk makes no warranty as to the accuracy or completeness of the advertisement or any linked or associated information, and Rightmove has no control over the content. This property advertisement does not constitute property particulars. The information is provided and maintained by The Good Estate Agent, National. Please contact the selling agent or developer directly to obtain any information which may be available under the terms of The Energy Performance of Buildings (Certificates and Inspections) (England and Wales) Regulations 2007 or the Home Report if in relation to a residential property in Scotland.
*This is the average speed from the provider with the fastest broadband package available at this postcode. The average speed displayed is based on the download speeds of at least 50% of customers at peak time (8pm to 10pm). Fibre/cable services at the postcode are subject to availability and may differ between properties within a postcode. Speeds can be affected by a range of technical and environmental factors. The speed at the property may be lower than that listed above. You can check the estimated speed and confirm availability to a property prior to purchasing on the broadband provider's website. Providers may increase charges. The information is provided and maintained by Decision Technologies Limited. **This is indicative only and based on a 2-person household with multiple devices and simultaneous usage. Broadband performance is affected by multiple factors including number of occupants and devices, simultaneous usage, router range etc. For more information speak to your broadband provider.
Map data ©OpenStreetMap contributors.






