
Land for sale
Clumber Avenue, Mapperley, Nottingham
- PROPERTY TYPE
Land
- SIZE
6,232 sq ft
579 sq m
Key features
- Proposed building plot
- Approximately 579 sq. metres
- Conditional planning granted for a self-build detached bungalow
- Gedling Borough Council Ref: 2025/0054
- Potential for two detached dwellings (subject to planning)
- A short walk from Mapperley's excellent variety of shops, amenities and frequent bus services
- Highly sought after residential location
- Offered to the market with no upward chain
- Vehicular access currently via a gated driveway
- Additional drawings and ecological report available upon request
Description
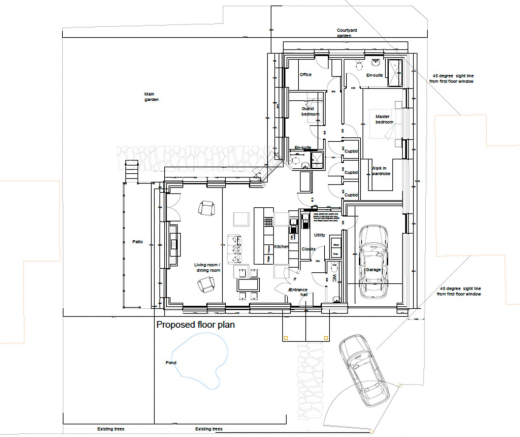
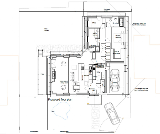
Situated just a short walk from Mapperley’s excellent amenities, this potential building plot of approximately 579 sq. metres holds conditional planning permission for a self-build detached bungalow, granted by Gedling Borough Council under reference 2025/0054 in July 2025. Alternatively, the land presents the opportunity to erect two detached dwellings (subject to the approval of planning, permissions and design).
Available with no upward chain and currently accessed via a gated driveway off Clumber Avenue, this space offers a prime location and huge potential for the new owner(s).
The proposed bungalow would incorporate an entrance hall leading to a WC and utility with internal access to the garage. A contemporary open plan living/kitchen would serve as the heart of the home and lead out to a patio and the main garden, whilst to the rear would be two bedrooms and an office alongside a further external courtyard (both bedrooms with en-suite facility and the main room with a walk-in wardrobe).
For those wanting a deeper look into the potential of this blank canvas, viewing is highly recommended. In addition, further drawings for the proposed bungalow and an ecological report are available upon request.
As previously stated, the current in-place planning would be for a self-build project only, as stated in Gedling Borough Council’s decision notice.
‘The residential unit in the development hereby permitted shall be constructed as a self-build dwelling within the definitions of self-build and custom build housing in the 2015 Act (as amended by the 2016 Housing and Planning Act): - The occupation of the unit shall be by a person or persons who had a primary input into the design and layout of the dwelling; - The Council shall be notified of the persons who intend to take up first occupation of the unit in the development hereby permitted at least two months prior to first occupation and this person(s) shall then be the first occupier of the property.’
Parking - Driveway
Disclaimer
These particulars are produced in good faith and are set out as a general guide only. Please note that all measurements quoted are approximate and are the maximum measurements for the space. Floor plans are for illustrative purposes only. Services have not been tested.
David James Estate Agents have established professional relationships with third-party suppliers for the provision of services to Clients. As remuneration for this professional relationship, the agent receives referral commission from the third-party company. David James Estate Agents receives the following commission from each third party supplier on a per referral basis:
All Moves UK Ltd: 18% including VAT of the invoice total (£107 including VAT average)
MoveWithUs Limited: £188 including VAT (average)
Clumber Avenue, Mapperley, Nottingham
NEAREST STATIONS
Distances are straight line measurements from the centre of the postcode- Carlton Station2.3 miles
- Beaconsfield St Tram Stop2.4 miles
- High School Tram Stop2.4 miles


Notes
Disclaimer - Property reference 814103f8-3e09-4f10-90a9-d9cfe5abe20d. The information displayed about this property comprises a property advertisement. Rightmove.co.uk makes no warranty as to the accuracy or completeness of the advertisement or any linked or associated information, and Rightmove has no control over the content. This property advertisement does not constitute property particulars. The information is provided and maintained by David James Estate Agents, Mapperley. Please contact the selling agent or developer directly to obtain any information which may be available under the terms of The Energy Performance of Buildings (Certificates and Inspections) (England and Wales) Regulations 2007 or the Home Report if in relation to a residential property in Scotland.
Map data ©OpenStreetMap contributors.






