4 bedroom detached bungalow for sale
Hargham Road, Old Buckenham

- PROPERTY TYPE
Detached Bungalow
- BEDROOMS
4
- BATHROOMS
2
- SIZE
2,113 sq ft
196 sq m
- TENUREDescribes how you own a property. There are different types of tenure - freehold, leasehold, and commonhold.Read more about tenure in our glossary page.
Freehold
Key features
- Detached Bungalow
- Plot of 0.31 Acres
- Four Bedrooms
- Three Reception Rooms
- En-Suite To Master Bedroom
- Ample Off Road Parking
- Spacious Accommodation Throughout
- Views Over Fields To The Rear
- Put Your Own Stamp On This Home!
- Quote SR0694 When Calling To View
Description
Full Property Description
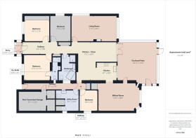
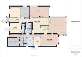
Simply Huge! Internal viewing is advised for this four bedroom, three reception room bungalow set within a plot of 0.31 acres. With ample parking and good scope for you to put your own stamp on this home, this could be the next step you and your family have been searching for.
The property provides spacious accommodation throughout with very good sized reception rooms and including a room to the rear of the property currently used as a billiard room! The kitchen is open plan to the dining room and has ample work top space and storage for even the most keen chef! The bedrooms are all of a good size with the master bedroom having its own en-suite and the family bathroom has corner bath and separate shower cubicle.
To the right of the kitchen you will find the utility room and the fourth bedroom as well as covered access to the part converted garage where the boiler is located.
To the front, there is ample parking for several vehicles and gated side access to either side of this home.
The rear garden is a green fingered buyers dream, with raised pond, timber outbuilding for all of your garden tools and mower. Beyond the outbuilding there are currently a number of greenhouses, fruit and vegetable cages, tunnels and raised beds and finally, as you approach the bottom of the garden, you will find the views over the surrounding countryside!
About the Surrounding Area
Old Buckenham is a picturesque village located in the county of Norfolk, England. Nestled in a rural setting about 15 miles southwest of Norwich, the village is known for its traditional charm, historical buildings, and one of the largest village greens in Britain. The green itself, covering over 40 acres, serves as a central hub for community events and recreational activities, offering a tranquil open space surrounded by period cottages and mature trees. With superb transport links to major hubs such as Norwich and Ipswich, the A11 trunk road is also close enough to be convenient but not close enough to hear!
The village supports five schools including a pre school, primary school, high school, collage and Chapel green school, a church, and two traditional pubs, fostering a strong sense of local identity. With its blend of history, countryside beauty, and active community life, Old Buckenham offers both residents and visitors a window into rural Norfolk at its best.
- COUNCIL TAXA payment made to your local authority in order to pay for local services like schools, libraries, and refuse collection. The amount you pay depends on the value of the property.Read more about council Tax in our glossary page.
- Band: D
- PARKINGDetails of how and where vehicles can be parked, and any associated costs.Read more about parking in our glossary page.
- Driveway
- GARDENA property has access to an outdoor space, which could be private or shared.
- Private garden
- ACCESSIBILITYHow a property has been adapted to meet the needs of vulnerable or disabled individuals.Read more about accessibility in our glossary page.
- Level access
Hargham Road, Old Buckenham
Add an important place to see how long it'd take to get there from our property listings.
__mins driving to your place
Get an instant, personalised result:
- Show sellers you’re serious
- Secure viewings faster with agents
- No impact on your credit score
Your mortgage
Notes
Staying secure when looking for property
Ensure you're up to date with our latest advice on how to avoid fraud or scams when looking for property online.
Visit our security centre to find out moreDisclaimer - Property reference S1454610. The information displayed about this property comprises a property advertisement. Rightmove.co.uk makes no warranty as to the accuracy or completeness of the advertisement or any linked or associated information, and Rightmove has no control over the content. This property advertisement does not constitute property particulars. The information is provided and maintained by eXp UK, East of England. Please contact the selling agent or developer directly to obtain any information which may be available under the terms of The Energy Performance of Buildings (Certificates and Inspections) (England and Wales) Regulations 2007 or the Home Report if in relation to a residential property in Scotland.
*This is the average speed from the provider with the fastest broadband package available at this postcode. The average speed displayed is based on the download speeds of at least 50% of customers at peak time (8pm to 10pm). Fibre/cable services at the postcode are subject to availability and may differ between properties within a postcode. Speeds can be affected by a range of technical and environmental factors. The speed at the property may be lower than that listed above. You can check the estimated speed and confirm availability to a property prior to purchasing on the broadband provider's website. Providers may increase charges. The information is provided and maintained by Decision Technologies Limited. **This is indicative only and based on a 2-person household with multiple devices and simultaneous usage. Broadband performance is affected by multiple factors including number of occupants and devices, simultaneous usage, router range etc. For more information speak to your broadband provider.
Map data ©OpenStreetMap contributors.





