
3 bedroom detached house for sale
Bridstow, Ross-On-Wye, HR9

- PROPERTY TYPE
Detached
- BEDROOMS
3
- BATHROOMS
1
- SIZE
1,594 sq ft
148 sq m
- TENUREDescribes how you own a property. There are different types of tenure - freehold, leasehold, and commonhold.Read more about tenure in our glossary page.
Freehold
Key features
- 3-bedroom detached period home
- Former schoolmaster's house with historic charm
- character features
- Elevated views towards surrounding countryside
- Gated driveway with off-road parking
- Currently operating as a successful holiday let
Description
A beautifully presented 3-bedroom detached period home with character features, landscaped gardens, gated parking, and far-reaching views.Includes two reception rooms, stylish kitchen with Rayburn, utility, and a luxury bathroom with roll-top bath. Set in a sought-after village.
Property Details
Enjoying elevated views across the Wye Valley towards the charming market town of Ross-On-Wye and the iconic spire of St Mary’s Church, Spire View is a striking stone-built former schoolmaster’s house. Recently refurbished to a high standard, the property offers a stylish yet characterful home with light and airy accommodation arranged over two floors. Currently operating as a successful holiday let business, it presents a wonderful opportunity for those seeking a residence, second home, or investment with income potential.
Brimming with Character & Charm
Dating back to the period era and retaining many original features, the property is immaculately presented throughout. Traditional elements such as cast iron fireplaces, sash windows, Victorian-style radiators, original timber and quarry tiled flooring, painted floorboards, and a feature Rayburn all add to its unique appeal. The elegant proportions and tasteful decor combine to create a warm and welcoming atmosphere throughout.
Spacious & Versatile Accommodation
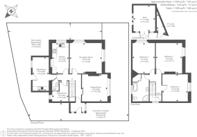
Entrance Porch & Hallway – Accessed via a side porch, the welcoming hallway features a quarry tiled floor, cloaks cupboard, concealed radiator, and a charming staircase leading to the first floor.
Sitting Room (12’9” x 11’8”) – A cosy space with secondary glazed sash window offering rural views, painted exposed floorboards, and a decorative fireplace.
Lounge/Dining Room (14’9” x 14’0”) – A generous and light-filled room with windows to two aspects, views to St Mary’s spire and May Hill, recessed shelving, fireplace with marble hearth and lined chimney for a potential wood burner.
Breakfast Kitchen (14’4” x 8’0”) – Stylishly fitted with solid wood worktops, integrated appliances including Hotpoint double oven and electric hob, dishwasher plumbing, and a traditional multi-fuel Rayburn which can supplement heating and hot water. The kitchen enjoys a lovely outlook and features limed wood-effect flooring and a tall contemporary radiator.
Utility Room (15’4” x 7’6”) – Spacious and practical, with sink unit, floor-standing Thermecon oil-fired boiler, space for laundry appliances, and access to the garden.
Walk-In Pantry – A windowed storage space with quarry tiled flooring, shelving and fitted cupboards.
Cloakroom – With WC, wash hand basin, and tiled floor.
First Floor:
Three Beautiful Bedrooms & Luxury Bathroom
Bedroom One (13’2” x 12’4”) – A light principal bedroom with sash window enjoying far-reaching countryside views, period fireplace, and Victorian-style radiator.
Bedroom Two (12’6” x 11’9”) – Another spacious double room with painted floorboards, sash window with views, period fireplace and radiator.
Bedroom Three (13’11” x 10’0”) – With sash window looking towards Ross-on-Wye’s church spire, cast iron fireplace and radiator.
Bathroom – A luxurious four-piece suite including a roll-top clawfoot bath with central taps, separate shower cubicle with Bristan electric shower, pedestal basin, WC, wall-mounted heater, radiator and exposed floorboards. An airing cupboard and sash window complete the room.
Outside: Gated Access, Landscaped Gardens & Countryside Setting
Spire View benefits from gated access into a gravelled driveway providing off-road parking. The landscaped gardens are enclosed and thoughtfully designed, with lawns, a patio seating area perfect for alfresco dining, and a garden shed offering useful storage. The property enjoys a peaceful setting, with open views over rolling countryside and towards the town.
Location – Bridstow, Near Ross-On-Wye
The property is situated in the sought-after village of Bridstow, just 2 miles from Ross-On-Wye. Bridstow offers a range of amenities including a well-regarded Primary School, Parish Church, and Village Hall. The historic market town of Ross-on-Wye – known as the ‘Gateway to the Wye Valley’ – boasts a wide range of independent shops, cafes, restaurants.
Brochures
More details from Chancellors- COUNCIL TAXA payment made to your local authority in order to pay for local services like schools, libraries, and refuse collection. The amount you pay depends on the value of the property.Read more about council Tax in our glossary page.
- Ask agent
- PARKINGDetails of how and where vehicles can be parked, and any associated costs.Read more about parking in our glossary page.
- Off street
- GARDENA property has access to an outdoor space, which could be private or shared.
- Private garden
- ACCESSIBILITYHow a property has been adapted to meet the needs of vulnerable or disabled individuals.Read more about accessibility in our glossary page.
- Ask agent
Bridstow, Ross-On-Wye, HR9
Add an important place to see how long it'd take to get there from our property listings.
__mins driving to your place
Get an instant, personalised result:
- Show sellers you’re serious
- Secure viewings faster with agents
- No impact on your credit score
Your mortgage
Notes
Staying secure when looking for property
Ensure you're up to date with our latest advice on how to avoid fraud or scams when looking for property online.
Visit our security centre to find out moreDisclaimer - Property reference 5991794. The information displayed about this property comprises a property advertisement. Rightmove.co.uk makes no warranty as to the accuracy or completeness of the advertisement or any linked or associated information, and Rightmove has no control over the content. This property advertisement does not constitute property particulars. The information is provided and maintained by Chancellors, Hereford. Please contact the selling agent or developer directly to obtain any information which may be available under the terms of The Energy Performance of Buildings (Certificates and Inspections) (England and Wales) Regulations 2007 or the Home Report if in relation to a residential property in Scotland.
*This is the average speed from the provider with the fastest broadband package available at this postcode. The average speed displayed is based on the download speeds of at least 50% of customers at peak time (8pm to 10pm). Fibre/cable services at the postcode are subject to availability and may differ between properties within a postcode. Speeds can be affected by a range of technical and environmental factors. The speed at the property may be lower than that listed above. You can check the estimated speed and confirm availability to a property prior to purchasing on the broadband provider's website. Providers may increase charges. The information is provided and maintained by Decision Technologies Limited. **This is indicative only and based on a 2-person household with multiple devices and simultaneous usage. Broadband performance is affected by multiple factors including number of occupants and devices, simultaneous usage, router range etc. For more information speak to your broadband provider.
Map data ©OpenStreetMap contributors.








