
Eastcliff, Portishead

- PROPERTY TYPE
Town House
- BEDROOMS
3
- BATHROOMS
1
- SIZE
948 sq ft
88 sq m
- TENUREDescribes how you own a property. There are different types of tenure - freehold, leasehold, and commonhold.Read more about tenure in our glossary page.
Freehold
Key features
- Port Marine Townhouse
- Three Double Bedrooms
- Estuary & Lock Gate Views From Every Window
- Immaculately Presented Throughout
- Characterful Setting In The Heart Of The Fishing Village
- Allocated Parking Space
- Modern Kitchen/Diner
- Set Just Off Of The Marina Front
- Walking Distance To Amenities
- No Onward Chain
Description
This fantastic gem is tucked away in the heart of the characterful fishing village, just off the marina front. With each property individually designed, the area boasts a unique and appealing aesthetic. From here you can stroll to an excellent selection of bars, shops and restaurants, all just moments away. The RNLI lifeboat station is also nearby, along with a scenic walking track leading into the preserved woodland on Woodlands Road.
M5 (J19) 3 miles, M4 (J20) 11 miles, Bristol Parkway 14 miles, Bristol Temple Meads 10.5 miles, Bristol Airport 12 miles (distances are approximate).
Tenure: Freehold With Port Marine Charge: £513.70 PA
Local Authority: North Somerset Council, Tel:
Council Tax Band: D
Services: All mains services connected.
All viewings strictly by appointment with Goodman & Lilley - Call .
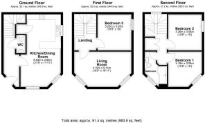
Ground Floor - On the ground floor, you are welcomed into a spacious, modern kitchen/diner, recently refitted with a stylish peninsula island and ample room for a dining table. Front-facing windows frame fantastic views of the estuary and lock gates, making it the perfect spot to soak up the surroundings. This level also benefits from a useful understairs storage cupboard and a generous downstairs WC. A wide staircase rises to the first floor.
First Floor Landing - The first floor is home to a stunning living room, full of character with its angled corners, each featuring large windows that capture uninterrupted views of the estuary and lock gates. Also on this level is a generously sized double bedroom, which could equally serve as a versatile study or home office. Stairs then rise to the top floor.
Second Floor Landing - The second floor offers two well-proportioned double bedrooms, each enjoying fantastic views, along with a family bathroom fitted with a modern three-piece suite. This floor also provides access to the loft via a ceiling hatch, offering additional storage potential.
Allocated Parking Space - The property also benefits from one allocated parking space, conveniently located directly opposite the home. The fishing village also has a charming centre with stone benches and places to sit and overlook the marina.
Brochures
Eastcliff, Portishead- COUNCIL TAXA payment made to your local authority in order to pay for local services like schools, libraries, and refuse collection. The amount you pay depends on the value of the property.Read more about council Tax in our glossary page.
- Band: D
- PARKINGDetails of how and where vehicles can be parked, and any associated costs.Read more about parking in our glossary page.
- Communal
- GARDENA property has access to an outdoor space, which could be private or shared.
- Ask agent
- ACCESSIBILITYHow a property has been adapted to meet the needs of vulnerable or disabled individuals.Read more about accessibility in our glossary page.
- Ask agent
Energy performance certificate - ask agent
Eastcliff, Portishead
Add an important place to see how long it'd take to get there from our property listings.
__mins driving to your place
Get an instant, personalised result:
- Show sellers you’re serious
- Secure viewings faster with agents
- No impact on your credit score

Your mortgage
Notes
Staying secure when looking for property
Ensure you're up to date with our latest advice on how to avoid fraud or scams when looking for property online.
Visit our security centre to find out moreDisclaimer - Property reference 34193813. The information displayed about this property comprises a property advertisement. Rightmove.co.uk makes no warranty as to the accuracy or completeness of the advertisement or any linked or associated information, and Rightmove has no control over the content. This property advertisement does not constitute property particulars. The information is provided and maintained by Goodman & Lilley, Portishead. Please contact the selling agent or developer directly to obtain any information which may be available under the terms of The Energy Performance of Buildings (Certificates and Inspections) (England and Wales) Regulations 2007 or the Home Report if in relation to a residential property in Scotland.
*This is the average speed from the provider with the fastest broadband package available at this postcode. The average speed displayed is based on the download speeds of at least 50% of customers at peak time (8pm to 10pm). Fibre/cable services at the postcode are subject to availability and may differ between properties within a postcode. Speeds can be affected by a range of technical and environmental factors. The speed at the property may be lower than that listed above. You can check the estimated speed and confirm availability to a property prior to purchasing on the broadband provider's website. Providers may increase charges. The information is provided and maintained by Decision Technologies Limited. **This is indicative only and based on a 2-person household with multiple devices and simultaneous usage. Broadband performance is affected by multiple factors including number of occupants and devices, simultaneous usage, router range etc. For more information speak to your broadband provider.
Map data ©OpenStreetMap contributors.





