Development Site, Off Ranters Row, Alford, Lincolnshire, LN13 9BN
- PROPERTY TYPE
Land
- SIZE
10,454 sq ft
971 sq m
Key features
- Development Site
- 0.24 of an acre
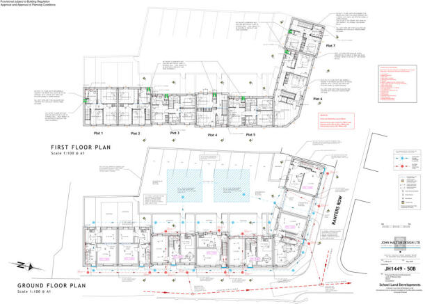
- Planning Permission for 7 houses with car parking
- Central location with good amenities
Description
A development site extending to around 0.24 of an acre with full planning permission for the erection of a block of 7no. houses, provision of car parking and construction of a vehicular access. We understand from the seller that a material start has been made, but interested parties are advised to carry out their own due diligence. There will be more detailed information available via the auction legal pack.
Location
Enter Alford on Willoughby Road and bear right onto South Street until you reach Ranters Row. Turn right and the site can be found on the right as per the below what3words link.
Other
Planning Permission
Planning permission was granted by East Lindsey District Council under application N/003/02298/04 on the 31st January 2005 for the erection of a block of 7no. houses, provision of car
parking and construction of a vehicular access on the site of existing buildings which are to be demolished in accordance with the amended drawing reference SEW/04/1208 Revision D and additional drawing reference SEW/05/1293 received by the Local Planning Authority on the11th March 2005.
The site was later given approval on the 12/08/24 for a non material amendment (to condition 23, approved plans) via N/003/01094/24 to that previously approved under application number N/003/02298/04.
Local Authority
West Lindsey District Council -
Viewing
Strictly by appointment with the Agents
Tel:
Tenure & Possession
Freehold with vacant possession upon completion.
Agents
James Mulhall
Brochures
BrochureDevelopment Site, Off Ranters Row, Alford, Lincolnshire, LN13 9BN
NEAREST STATIONS
Distances are straight line measurements from the centre of the postcode- Thorpe Culvert Station9.5 miles
Notes
Disclaimer - Property reference 448329FH. The information displayed about this property comprises a property advertisement. Rightmove.co.uk makes no warranty as to the accuracy or completeness of the advertisement or any linked or associated information, and Rightmove has no control over the content. This property advertisement does not constitute property particulars. The information is provided and maintained by Brown&CoJHWalter, Lincoln. Please contact the selling agent or developer directly to obtain any information which may be available under the terms of The Energy Performance of Buildings (Certificates and Inspections) (England and Wales) Regulations 2007 or the Home Report if in relation to a residential property in Scotland.
Auction Fees: The purchase of this property may include associated fees not listed here, as it is to be sold via auction. To find out more about the fees associated with this property please call Brown&CoJHWalter, Lincoln on 01522 303808.
*Guide Price: An indication of a seller's minimum expectation at auction and given as a Guide Price or a range of Guide Prices. This is not necessarily the figure a property will sell for and is subject to change prior to the auction.
Reserve Price: Each auction property will be subject to a Reserve Price below which the property cannot be sold at auction. Normally the Reserve Price will be set within the range of Guide Prices or no more than 10% above a single Guide Price.
Map data ©OpenStreetMap contributors.




