Block of apartments for sale
Drake House, 17A High Street, Gosport, Hampshire, PO12 1BX

- PROPERTY TYPE
Block of Apartments
- SIZE
6,437 sq ft
598 sq m
- TENUREDescribes how you own a property. There are different types of tenure - freehold, leasehold, and commonhold.Read more about tenure in our glossary page.
Freehold
Key features
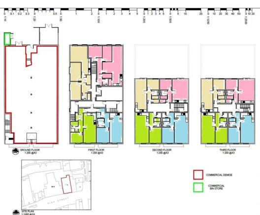
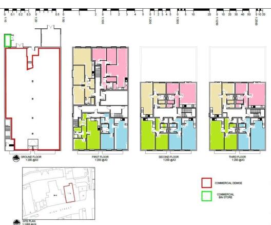
- 12 newly refurbished apartments, let on one overriding lease to a registered care provider.
- Centrally located on Gosport High Street
- Guaranteed income for 5 years.
Description
The property is situated at the heart of Gosport centre, just west of the intersection of the pedestrian High Street and North Cross Street. High Street connects at each end to Gosport's circular access road, Mumby Road, which in turn leads to Gosport Marina and Ferry Port.
The town is accessed via the A32 Gosport Road from junction 11 of the M27. There is excellent access to Portsmouth, via the Harbour ferry which operates every 15 minutes (every 7.5 minutes at peak times) from Gosport Ferry Terminal (approximately 5 minutes walk from Royal Clarence Marina). The ferry journey time is four minutes to Portsmouth Harbour where there is a regular direct line train service to London Waterloo. Royal Clarence Marina benefits from 154 berths for all types of vessel. Southampton International Airport is within a 30 minute drive.
Description
We are delighted to offer this hands-off investment of twelve newly developed apartments for sale in Gosport. The block is fully let to a single registered care provider, offering guaranteed income for a term of 5 years. The block contains 12 apartments, plus residential lobby; 2 x 2-bed and 10x 1-bed.
Tenure Comments
We are seeking offers in excess of £2,300,000 (exclusive) for the freehold investment. This represents a net initial yield of 7.65% assuming purchasers costs of 6.34%.
The property is held in an SPV and therefore It is anticipated that the sale will be treated as a TOGC.
Service Charge Information
The property runs a service charge to cover the repair, upkeep, cleaning and maintenance of the common areas and share structure. This is managed by the housing provider.
Planning
The property has planning for Class C.
VAT
We are advised that the property is not elected for VAT.
Legal Costs
Each party will be responsible for covering their own legal costs incurred in the transaction.
Brochures
Current Brochure- COUNCIL TAXA payment made to your local authority in order to pay for local services like schools, libraries, and refuse collection. The amount you pay depends on the value of the property.Read more about council Tax in our glossary page.
- Ask agent
- PARKINGDetails of how and where vehicles can be parked, and any associated costs.Read more about parking in our glossary page.
- Ask agent
- GARDENA property has access to an outdoor space, which could be private or shared.
- Ask agent
- ACCESSIBILITYHow a property has been adapted to meet the needs of vulnerable or disabled individuals.Read more about accessibility in our glossary page.
- Ask agent
Energy performance certificate - ask agent
Drake House, 17A High Street, Gosport, Hampshire, PO12 1BX
Add an important place to see how long it'd take to get there from our property listings.
__mins driving to your place
Get an instant, personalised result:
- Show sellers you’re serious
- Secure viewings faster with agents
- No impact on your credit score
Your mortgage
Notes
Staying secure when looking for property
Ensure you're up to date with our latest advice on how to avoid fraud or scams when looking for property online.
Visit our security centre to find out moreDisclaimer - Property reference 400FH. The information displayed about this property comprises a property advertisement. Rightmove.co.uk makes no warranty as to the accuracy or completeness of the advertisement or any linked or associated information, and Rightmove has no control over the content. This property advertisement does not constitute property particulars. The information is provided and maintained by Creative Retail, Birmingham. Please contact the selling agent or developer directly to obtain any information which may be available under the terms of The Energy Performance of Buildings (Certificates and Inspections) (England and Wales) Regulations 2007 or the Home Report if in relation to a residential property in Scotland.
*This is the average speed from the provider with the fastest broadband package available at this postcode. The average speed displayed is based on the download speeds of at least 50% of customers at peak time (8pm to 10pm). Fibre/cable services at the postcode are subject to availability and may differ between properties within a postcode. Speeds can be affected by a range of technical and environmental factors. The speed at the property may be lower than that listed above. You can check the estimated speed and confirm availability to a property prior to purchasing on the broadband provider's website. Providers may increase charges. The information is provided and maintained by Decision Technologies Limited. **This is indicative only and based on a 2-person household with multiple devices and simultaneous usage. Broadband performance is affected by multiple factors including number of occupants and devices, simultaneous usage, router range etc. For more information speak to your broadband provider.
Map data ©OpenStreetMap contributors.



