
Aintree Road, Blackpool, FY4

Letting details
- Let available date:
- Now
- Deposit:
- £807A deposit provides security for a landlord against damage, or unpaid rent by a tenant.Read more about deposit in our glossary page.
- Min. Tenancy:
- 6 months How long the landlord offers to let the property for.Read more about tenancy length in our glossary page.
- Let type:
- Long term
- Furnish type:
- Unfurnished
- Council Tax:
- Ask agent
- PROPERTY TYPE
Terraced
- BEDROOMS
2
- BATHROOMS
1
- SIZE
667 sq ft
62 sq m
Key features
- 2 Bedroom Mid Terrace House in Convenient Location
- Ideal Investment Opportunity, Sold With Vacant Possession
- Entrance Vestibule, Lounge, Fitted Kitchen/Diner With Under Stairs Storage Space
- 2 Double Bedrooms, 3 Piece Suite Bathroom
Description
This 2-bedroom mid-terraced house, in a convenient location, presents a prime investment opportunity (sold with vacant possession). The property welcomes you through an entrance vestibule, leading to a well-proportioned lounge and a fitted kitchen/diner boasting ample storage space under the stairs. Upstairs, you will find two generously sized double bedrooms alongside a three-piece suite bathroom, ensuring comfort and privacy for residents. The property's functional layout and existing tenancy make it an attractive prospect for investors seeking a hassle-free addition to their portfolio.
Step outside to discover a south-facing yard to the rear of the property, offering a private outdoor space for relaxation and entertaining.
EPC Rating: C
Lounge
3.6m x 4.24m
Kitchen/Diner
3.64m x 3.95m
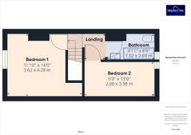
Landing
1.52m x 1.21m
Bedroom 1
3.62m x 4.28m
Bedroom 2
3.98m x 2.06m
Bathroom
2.69m x 1.52m
Rear Garden
South facing yard to the rear
Parking - On street
Brochures
Property Brochure- COUNCIL TAXA payment made to your local authority in order to pay for local services like schools, libraries, and refuse collection. The amount you pay depends on the value of the property.Read more about council Tax in our glossary page.
- Band: A
- PARKINGDetails of how and where vehicles can be parked, and any associated costs.Read more about parking in our glossary page.
- On street
- GARDENA property has access to an outdoor space, which could be private or shared.
- Rear garden
- ACCESSIBILITYHow a property has been adapted to meet the needs of vulnerable or disabled individuals.Read more about accessibility in our glossary page.
- Ask agent
Energy performance certificate - ask agent
Aintree Road, Blackpool, FY4
Add an important place to see how long it'd take to get there from our property listings.
__mins driving to your place

Notes
Staying secure when looking for property
Ensure you're up to date with our latest advice on how to avoid fraud or scams when looking for property online.
Visit our security centre to find out moreDisclaimer - Property reference 649cb12b-935c-4e92-9480-f765441cab01. The information displayed about this property comprises a property advertisement. Rightmove.co.uk makes no warranty as to the accuracy or completeness of the advertisement or any linked or associated information, and Rightmove has no control over the content. This property advertisement does not constitute property particulars. The information is provided and maintained by Stephen Tew Estate Agents, Blackpool. Please contact the selling agent or developer directly to obtain any information which may be available under the terms of The Energy Performance of Buildings (Certificates and Inspections) (England and Wales) Regulations 2007 or the Home Report if in relation to a residential property in Scotland.
*This is the average speed from the provider with the fastest broadband package available at this postcode. The average speed displayed is based on the download speeds of at least 50% of customers at peak time (8pm to 10pm). Fibre/cable services at the postcode are subject to availability and may differ between properties within a postcode. Speeds can be affected by a range of technical and environmental factors. The speed at the property may be lower than that listed above. You can check the estimated speed and confirm availability to a property prior to purchasing on the broadband provider's website. Providers may increase charges. The information is provided and maintained by Decision Technologies Limited. **This is indicative only and based on a 2-person household with multiple devices and simultaneous usage. Broadband performance is affected by multiple factors including number of occupants and devices, simultaneous usage, router range etc. For more information speak to your broadband provider.
Map data ©OpenStreetMap contributors.






