The Oaks at Willow Fields, Alfold, Cranleigh, GU6

- PROPERTY TYPE
Semi-Detached
- BEDROOMS
2
- BATHROOMS
2
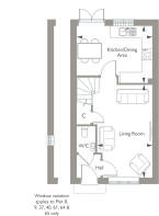
- SIZE
779 sq ft
72 sq m
- TENUREDescribes how you own a property. There are different types of tenure - freehold, leasehold, and commonhold.Read more about tenure in our glossary page.
Freehold
Key features
- SAVE £20000 WITH BEWLEY'S 5% DEPOSIT CONTRIBUTION
- *AVAILABLE TO VIEW & READY TO MOVE INTO*
- Under Floor Heating to Ground Floor
- Kitchen/Dining Area with French Doors Leading to the Garden
- Designer Kitchen with SMEG Kitchen Appliances
- Two Double Bedrooms
- Principal Bedroom Boasting an en suite Shower Room & Fitted Wardrobes
- Parking for Two Cars
- EV Car Charging Point
- Garden Laid to Lawn
Description
The Eversley is a beautifully crafted two-bedroom home by award-winning luxury housebuilder Bewley Homes, designed to offer a perfect balance of practicality and refined finishes.
The spacious kitchen/dining area stretches across the full width of the home’s rear and is equipped with premium Smeg appliances. French doors open out to the private garden, creating an ideal space for entertaining and alfresco dining. At the front of the home, a generous living room offers a bright and welcoming space to relax. A convenient downstairs cloakroom completes the ground floor.
Upstairs, the principal bedroom includes fitted wardrobes and a stylish en suite shower room. A second double bedroom and a modern family bathroom provide comfortable accommodation for guests, children, or a home office.
Outside
Externally, the home benefits from a west-facing garden, single garage, two parking spaces. There is also an EV charger — combining comfort, practicality, and sustainability.
A significant part of the land at Willow Fields is dedicated to children’s play areas and protected ecology zones, creating a beautiful environment for families.
Situation
Set within the charming village of Alfold, renowned for its picturesque landscapes and stunning countryside views, this location is perfect for walking, cycling, and horseback riding enthusiasts. The village itself offers a welcoming community with the local 'Alfold Larder', village hall, sports club and the popular nearby pubs including The Three Compasses and The Sir Roger Tichborne. Just 2 miles down the road in the adjacent village of Loxwood, you will find a local convenience store.
Just 4 miles away, the vibrant village of Cranleigh provides a wide range of restaurants, independent shops, supermarkets, leisure and arts centres, plus schools for all ages. For more extensive amenities, the towns of Guildford, Godalming, and Horsham lie within 11 miles and offer direct rail services to London Waterloo.
The nearby A3 at Guildford connects to the M25, providing quick access to London, the South Coast, and both Heathrow and Gatwick airports. A bus stop just 0.3 miles from the property offers convenient services to Cranleigh, Godalming, and Guildford, making commuting straightforward.
Property Ref Number:
HAM-61141Additional Information
Prices correct at time of going to print and are subject to change. Management charges apply of £464.66 - £687.78 depending on plot per annum for houses.
*Offers must be agreed at time of reservation. Not in conjunction with any other offer.
Brochures
Brochure- COUNCIL TAXA payment made to your local authority in order to pay for local services like schools, libraries, and refuse collection. The amount you pay depends on the value of the property.Read more about council Tax in our glossary page.
- Ask agent
- PARKINGDetails of how and where vehicles can be parked, and any associated costs.Read more about parking in our glossary page.
- Off street
- GARDENA property has access to an outdoor space, which could be private or shared.
- Private garden
- ACCESSIBILITYHow a property has been adapted to meet the needs of vulnerable or disabled individuals.Read more about accessibility in our glossary page.
- Ask agent
Energy performance certificate - ask agent
The Oaks at Willow Fields, Alfold, Cranleigh, GU6
Add an important place to see how long it'd take to get there from our property listings.
__mins driving to your place
Get an instant, personalised result:
- Show sellers you’re serious
- Secure viewings faster with agents
- No impact on your credit score
Your mortgage
Notes
Staying secure when looking for property
Ensure you're up to date with our latest advice on how to avoid fraud or scams when looking for property online.
Visit our security centre to find out moreDisclaimer - Property reference a1nQ500000S7vePIAR. The information displayed about this property comprises a property advertisement. Rightmove.co.uk makes no warranty as to the accuracy or completeness of the advertisement or any linked or associated information, and Rightmove has no control over the content. This property advertisement does not constitute property particulars. The information is provided and maintained by Hamptons, Guildford. Please contact the selling agent or developer directly to obtain any information which may be available under the terms of The Energy Performance of Buildings (Certificates and Inspections) (England and Wales) Regulations 2007 or the Home Report if in relation to a residential property in Scotland.
*This is the average speed from the provider with the fastest broadband package available at this postcode. The average speed displayed is based on the download speeds of at least 50% of customers at peak time (8pm to 10pm). Fibre/cable services at the postcode are subject to availability and may differ between properties within a postcode. Speeds can be affected by a range of technical and environmental factors. The speed at the property may be lower than that listed above. You can check the estimated speed and confirm availability to a property prior to purchasing on the broadband provider's website. Providers may increase charges. The information is provided and maintained by Decision Technologies Limited. **This is indicative only and based on a 2-person household with multiple devices and simultaneous usage. Broadband performance is affected by multiple factors including number of occupants and devices, simultaneous usage, router range etc. For more information speak to your broadband provider.
Map data ©OpenStreetMap contributors.








