Metchley Lane, Harborne, B17

- PROPERTY TYPE
Town House
- BEDROOMS
3
- BATHROOMS
2
- SIZE
1,495 sq ft
139 sq m
- TENUREDescribes how you own a property. There are different types of tenure - freehold, leasehold, and commonhold.Read more about tenure in our glossary page.
Freehold
Key features
- 1495 Sq Ft
- End Townhouse
- Two Parking Spaces
- Breakfast Kitchen
- Sitting Room
- First Floor Living Room
- Family Bathroom and Ensuite
- Rear Garden
- Freehold Property
- Modern property
Description
Property
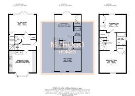
The ground floor features a welcoming hallway, a fitted modern breakfast kitchen ideal for busy mornings, a separate sitting room, and a handy WC. On the first floor you'll find a spacious living room plus the master bedroom complete with its own ensuite shower room and Juliette balcony. The top floor houses two further generous double bedrooms and a well-appointed family bathroom.
Externally, the property boasts a well-maintained rear garden, ideal for relaxing or entertaining. Two allocated parking spaces provide that all-important Harborne convenience, while further benefits include an alarm system, gas central heating and double glazing (where specified).
A brilliant low-maintenance home in the heart of Harborne — perfect for professionals, young families or anyone wanting to enjoy village life just moments from shops, restaurants and transport links.
Area
Professional couples of young families will appreciate the proximity to some of the regions most prestigious schools, including Harborne Primary School, St. Mary's Catholic Primary School, The Blue coat school and Harborne Academy, ensuring top-notch education for your children.
Harborne's charm extends beyond its educational institutions. The high street is home to an array of boutique shops, restaurants, cafes, and even seasonal local markets, offering a vibrant and diverse cultural experience. Enjoy leisurely strolls through The Moor Pool and Grove Park, walk to excellent facilities such as Harborne swimming baths or take in a game of golf at the Harborne Golf Club, all just a stone's throw away.
Transportation links by road are excellent, with easy access to Birmingham city centre, making commuting a breeze, as is proximity and short walk to Queen Elizabeth Hospital along with University station. Whether you seek the tranquility of suburban life or the excitement of city living, th
Approach
Auden Court offers a collection of townhouses set back from Metchley Lane, with tarmac driveway approach with the property boasting two allocated parking spaces and pathway leading to:
Entrance Hall
Engineered wooden flooring with under floor heating, ceiling coving, access to storage housing fuse board, carpeted stairs to first floor and doors to:
Breakfast Kitchen
Breakfast kitchen boasts engineered wooden flooring with underfloor heating, a range of wall and base mounted units, roll worktop surfaces, inset one and a half bowl sink with mixer tap and draining area, in built appliances of four ring gas hob with ‘AEG' extractor hood above, ‘Indesit' fitted dishwasher, ‘Blomberg' double oven, ‘Blomberg' fridge with freezer below.
Sitting Room
Rear-facing double glazed windows and double opening French doors, engineered wooden flooring, power points, low amp points, TV/sat telephone points, two recessed ceiling light points and two in built speakers (Bluetooth connectivity enabled), access to understairs storage with underfloor heating.
WC
Low level WC, pedestal sink, ceiling recessed downlighters, extractor, tiling to splash back areas.
First Floor Landing
Carpeted, ceiling light point and coving, radiator, access to storage housing water cylinder and ideal for airing cupboard, carpeted, stairs lead to second floor and doors to:
First Floor Living room
Two double glazed windows with front aspect, radiator, power points, ceiling coving and two ceiling light points, inbuilt speakers, electric fire with beautiful mantle surround, Sat/TV and telephone points.
Master Bedroom
Carpeted, Juliette balcony with double opening doors, fitted wardrobes, power points, low amp power points, telephone points, radiator, inbuilt speakers, door in to:
Ensuite
Low level WC, contemporary floating wash handbasin, recessed ceiling downlighters, ceiling coving, in built speaker, obscure double glazed window, wooden encased shelving, wall mounted heated towel rail.
Second Floor Landing
Carpeted, ceiling coving, radiator power points, deep storage, ceiling, light point, doors to:
Bedroom Two
Fitted wardrobes, double glazed window with rear aspect, ceiling coving and light point, two in built speakers, power points, TV point.
Bedroom Three
Carpeted, double glazed window, radiator, power points, ceiling coving and light point, inbuilt speakers, fitted storage, loft access, inbuilt cabinetry ideal for study.
Bathroom
Matching suite of bath with shower fittings and shower screen above, low level WC, floating wash handbasin, recessed ceiling downlighters, ceiling coving, wall mounted heated towel rail, inbuilt speaker, obscure double glazed window.
Rear Garden
Paved patio area ,predominantly laid to lawn, beautifully landscaped and maintained, flower beds to borders, fencing to boundary, side gate to front, fitted canopy.
Further Details
Tenure: Freehold
Council Tax Band: F
EPC: C
Service Charge: £730 per annumUtility supply, rights and restrictions:Utility supplyBroadband: FTTPElectricity supply: Mains supplySewerage: Mains supplyWater supply: Mains supplyOther informationConstruction materials: BrickRoof material: Tile
Disclaimer
With approximate measurements these particulars have been prepared in good faith by the selling agent in conjunction with the vendor(s) with the intention of providing a fair and accurate guide to the property.However, they do not constitute or form part of an offer or contract nor may they be regarded as representations, all interested parties must themselves verify their accuracy. No tests or checks have been carried out in respect of heating, plumbing, electric installations or any type of appliances which may be included.
- COUNCIL TAXA payment made to your local authority in order to pay for local services like schools, libraries, and refuse collection. The amount you pay depends on the value of the property.Read more about council Tax in our glossary page.
- Band: F
- PARKINGDetails of how and where vehicles can be parked, and any associated costs.Read more about parking in our glossary page.
- Yes
- GARDENA property has access to an outdoor space, which could be private or shared.
- Yes
- ACCESSIBILITYHow a property has been adapted to meet the needs of vulnerable or disabled individuals.Read more about accessibility in our glossary page.
- Ask agent
Metchley Lane, Harborne, B17
Add an important place to see how long it'd take to get there from our property listings.
__mins driving to your place
Get an instant, personalised result:
- Show sellers you’re serious
- Secure viewings faster with agents
- No impact on your credit score
Your mortgage
Notes
Staying secure when looking for property
Ensure you're up to date with our latest advice on how to avoid fraud or scams when looking for property online.
Visit our security centre to find out moreDisclaimer - Property reference 10708130. The information displayed about this property comprises a property advertisement. Rightmove.co.uk makes no warranty as to the accuracy or completeness of the advertisement or any linked or associated information, and Rightmove has no control over the content. This property advertisement does not constitute property particulars. The information is provided and maintained by McHugo Homes, Harborne. Please contact the selling agent or developer directly to obtain any information which may be available under the terms of The Energy Performance of Buildings (Certificates and Inspections) (England and Wales) Regulations 2007 or the Home Report if in relation to a residential property in Scotland.
*This is the average speed from the provider with the fastest broadband package available at this postcode. The average speed displayed is based on the download speeds of at least 50% of customers at peak time (8pm to 10pm). Fibre/cable services at the postcode are subject to availability and may differ between properties within a postcode. Speeds can be affected by a range of technical and environmental factors. The speed at the property may be lower than that listed above. You can check the estimated speed and confirm availability to a property prior to purchasing on the broadband provider's website. Providers may increase charges. The information is provided and maintained by Decision Technologies Limited. **This is indicative only and based on a 2-person household with multiple devices and simultaneous usage. Broadband performance is affected by multiple factors including number of occupants and devices, simultaneous usage, router range etc. For more information speak to your broadband provider.
Map data ©OpenStreetMap contributors.





