Rampside, Barrow-in-Furness, Cumbria, LA13

- PROPERTY TYPE
Terraced
- BEDROOMS
3
- BATHROOMS
2
- SIZE
Ask agent
- TENUREDescribes how you own a property. There are different types of tenure - freehold, leasehold, and commonhold.Read more about tenure in our glossary page.
Ask agent
Description
Key Features
Period coastal home with original character features
Three well-proportioned bedrooms
Stunning views across Morecambe Bay from the principal bedroom
Spacious living and dining areas with feature woodburner
Stylish shaker-style kitchen with utility room
Family bathroom with claw-foot bath plus separate shower room
Double glazing and gas central heating
Enclosed rear yard with outbuilding, power and light
Village location close to local pubs, amenities, and major employers
Council Tax Band: C
The Property
Set along the shoreline of the picturesque Morecambe Bay, this elegant period home combines historic charm with stylish modern touches, offering a lifestyle defined by character and coastal views.
On approach, the property immediately stands out with its bay-fronted façade, sash windows, and cottage-style garden. A soft sea-green exterior with contrasting pink front door creates a striking welcome.
Inside, the home retains many original features while offering a seamless modern layout. The entrance hall, with its quarry-tiled floor and stained-glass timber door, sets the tone for what’s to come. To the front, the bay-fronted living room boasts ornate cornicing, a woodburner with tiled hearth, and a warm blush décor. An open archway connects to the dining room, finished in midnight blue tones, creating a free-flowing space ideal for both everyday living and entertaining.
The kitchen has been thoughtfully designed with shaker-style midnight cabinetry, solid butcher’s block worktops, a Belfast sink, and brushed gold hardware. Integrated appliances include a fridge-freezer, with an adjoining utility room providing further Belfast sink, matching units, and integrated laundry appliances.
Bedrooms & Bathrooms
The first floor continues to impress with three bedrooms and two bathroom facilities. The principal bedroom enjoys commanding views over Morecambe Bay, along with a decorative cast-iron fireplace, cornicing, and herringbone flooring. Both additional bedrooms follow a calm and neutral design, one also featuring an original fireplace.
The stylish family bathroom exudes period charm with a claw-foot freestanding bath, pedestal basin, and high-level WC, finished with patterned flooring and dual-tone wall finishes. A separate shower room with rainfall shower completes the accommodation.
Outside
To the rear, a gated courtyard garden offers low-maintenance outdoor space with access to a generous outbuilding fitted with light and power — ideal for storage or workshop use.
Location
Positioned within a vibrant village setting, the home benefits from being moments from local pubs, shops, and essential amenities while enjoying the calm of a coastal backdrop. The proximity to major local employers makes this a convenient yet idyllic location. For those who love walking, cycling, or simply relaxing by the sea, Morecambe Bay provides an ever-changing outlook and a truly special lifestyle.
Summary
This beautifully presented period property offers the perfect combination of original character, modern comforts, and coastal living. With stunning sea views, generous living space, and a prime village location, it is an exceptional opportunity for buyers seeking a stylish yet traditional home by the bay.
Viewing is highly recommended to fully appreciate the size and potential of this property.
Buyer Process: Our customers use British Homebuyers to either purchase or assist in selling properties quickly and reliably. Therefore any new applicants to purchase are subject to vetting to ensure they meet strict criteria.
Exclusivity Fee:
You can secure the purchase today by paying an exclusivity fee of £2,000 which gives you the rights to purchase within a given timeframe. The exclusivity fee is returned to you upon successful completion of the property.
A processing fee of £200 is required in order to draw up an exclusive legally binding contract between the buyer and seller. This gives the buyer exclusive rights to purchase within a pre-agreed timeframe.
Paying this fee ensures that the seller takes their property off the market and reserves it exclusively for you, therefore eliminating the risk of gazumping and aborted costs.
Disclaimer
The particulars are set out as a general outline only for the guidance of intended purchasers and do not constitute, any part of a contract. Nothing in these particulars shall be deemed to be a statement that the property is in good structural condition or otherwise nor that any of the services, appliances, equipment or facilities are in good working order. Purchasers should satisfy themselves of this prior to purchasing. The photograph(s) depict only certain parts of the property. It should not be assumed that any contents/furniture etc. photographed are included in the sale. It should not be assumed that the property remains as displayed in the photograph(s). No assumption should be made with regard to parts of the property that have not been photographed. Any areas, measurements, aspects or distances referred to are given as a GUIDE ONLY and are NOT precise. If such details are fundamental to a purchase, purchasers must rely on their own enquiries. Descriptions of the property are subjective and are used in good faith as an opinion and NOT as a statement of fact. Please make further inquiries to ensure that our descriptions are likely to match any expectations you may have.
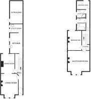
Living Room
5.28m x 3.8m
Dining Room
4.2m x 3.15m
Kitchen
4.45m x 2.87m
Utility Room
2.84m x 1.9m
Master Bedroom
5.1m x 5.3m
Bedroom 2
4.2m x 3.15m
Bedroom 3
2.9m x 1.9m
Bathroom
2.4m x 1.96m
Shower Room
1.93m x 1.83m
Garage
4.95m x 3m
- COUNCIL TAXA payment made to your local authority in order to pay for local services like schools, libraries, and refuse collection. The amount you pay depends on the value of the property.Read more about council Tax in our glossary page.
- Band: TBC
- PARKINGDetails of how and where vehicles can be parked, and any associated costs.Read more about parking in our glossary page.
- On street,No permit
- GARDENA property has access to an outdoor space, which could be private or shared.
- Yes
- ACCESSIBILITYHow a property has been adapted to meet the needs of vulnerable or disabled individuals.Read more about accessibility in our glossary page.
- Ask agent
Rampside, Barrow-in-Furness, Cumbria, LA13
Add an important place to see how long it'd take to get there from our property listings.
__mins driving to your place
Get an instant, personalised result:
- Show sellers you’re serious
- Secure viewings faster with agents
- No impact on your credit score
Your mortgage
Notes
Staying secure when looking for property
Ensure you're up to date with our latest advice on how to avoid fraud or scams when looking for property online.
Visit our security centre to find out moreDisclaimer - Property reference BHO251958. The information displayed about this property comprises a property advertisement. Rightmove.co.uk makes no warranty as to the accuracy or completeness of the advertisement or any linked or associated information, and Rightmove has no control over the content. This property advertisement does not constitute property particulars. The information is provided and maintained by British Homesellers, National. Please contact the selling agent or developer directly to obtain any information which may be available under the terms of The Energy Performance of Buildings (Certificates and Inspections) (England and Wales) Regulations 2007 or the Home Report if in relation to a residential property in Scotland.
*This is the average speed from the provider with the fastest broadband package available at this postcode. The average speed displayed is based on the download speeds of at least 50% of customers at peak time (8pm to 10pm). Fibre/cable services at the postcode are subject to availability and may differ between properties within a postcode. Speeds can be affected by a range of technical and environmental factors. The speed at the property may be lower than that listed above. You can check the estimated speed and confirm availability to a property prior to purchasing on the broadband provider's website. Providers may increase charges. The information is provided and maintained by Decision Technologies Limited. **This is indicative only and based on a 2-person household with multiple devices and simultaneous usage. Broadband performance is affected by multiple factors including number of occupants and devices, simultaneous usage, router range etc. For more information speak to your broadband provider.
Map data ©OpenStreetMap contributors.




