
4 bedroom detached house for sale
Manor Close, Andover, SP11

- PROPERTY TYPE
Detached
- BEDROOMS
4
- BATHROOMS
2
- SIZE
Ask agent
- TENUREDescribes how you own a property. There are different types of tenure - freehold, leasehold, and commonhold.Read more about tenure in our glossary page.
Freehold
Key features
- No Chain
- Circa Acre Plot
- Huge Potential
- Large Gated Drive
- Garages
- Master Suite
- Village Location
- Tennis Court
Description
This home presents an exciting opportunity to modernise, develop, or further extend (subject to planning), creating a dream residence in one of the area’s most sought-after village settings.
Internally, the accommodation is both generous and versatile. The standout feature is the impressive master suite, complete with dressing room, large bedroom, and en-suite bathroom. There are three further double bedrooms, a family bathroom, two large reception rooms, and a light-filled kitchen/breakfast room.
Outside, the gardens are a true highlight, with sweeping lawns bordered by mature trees and fruit trees, a sunken terrace area, and private pathways leading to the outbuildings and tennis court. Gated driveway parking provides space for multiple vehicles.
The property is positioned within a prime cul-de-sac in the heart of Abbotts Ann, one of the most picturesque and quintessential villages in the Test Valley. The village offers a well-stocked community shop, traditional pubs and restaurants, an active village hall, and a thriving community spirit. Excellent local schooling is nearby, with Andover town centre and mainline railway station just a short drive away, offering fast links to London and the West Country, as well as easy access to the A303.
Swallowfield combines an idyllic setting with exceptional scope, making it a rare opportunity in this highly desirable village.
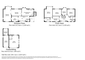
Entrance Lobby
Glass-panelled door opening from the storm porch with two double-glazed windows to the front. Stairs rise to the first floor with useful storage space beneath. Opening leads into the reception hall.
Reception Hall
11'4" x 9'1"
A welcoming space with a double-glazed window to the front aspect. Door leading through to the sitting room.
Sitting Room
25'6" x 14'2"
A generous reception room with double-glazed windows to the front, side and rear aspects, and glass-panelled patio doors opening onto the rear garden. Featuring a decorative fireplace. Sliding door opens into the dining room.
Dining Room
17'5" x 11'11"
Double-glazed window to the rear aspect and door into the kitchen/breakfast room.
Kitchen / Breakfast Room
21'0" max x 14'6"
Double-glazed windows to the rear and side aspects with a glass-panelled UPVC door opening to the garden. Part-tiled fitted kitchen comprising wall and base level units with work surfaces over, stainless steel sink and drainer, and inbuilt storage/pantry style cupboards.
Downstairs Cloakroom
Double-glazed frosted window to the front aspect, low-level WC and wash hand basin.
First Floor Landing
Double-glazed windows to the front.
Master Suite Dressing Room
15'10" x 8'4"
Double-glazed windows to the front aspect. Doors lead to the master bedroom and en-suite bathroom.
Master Bedroom
18'8" max x 14'8"
Double-glazed windows to the rear overlooking the garden.
Master En-Suite
Frosted double-glazed windows to the front and side aspects. Part-tiled suite comprising panel bath, wash hand basin set in vanity storage unit, and low-level WC.
Bedroom Two
15'5" x 12'0"
Double-glazed window to the rear and built-in storage cupboard.
Bedroom Three
13'5" x 13'1"
Double-glazed window to the rear.
Bedroom Four
12'5" into bay x 9'5"
Double-glazed bay window overlooking the rear garden, built-in wardrobe/storage cupboard.
Family Bathroom
Frosted double-glazed window to the side. Part-tiled suite comprising panel bath and wash hand basin set in vanity storage unit.
Separate WC
Fitted with a low-level WC.
Outbuildings
A double garage with up-and-over door, windows to the rear and side, and an enclosed internal workshop. In addition, there is a larger-than-average single garage with up-and-over door and side access, as well as a generous greenhouse.
Rear Garden
The rear garden is mainly laid to lawn and enclosed by mature trees, shrubbery, and established fruit trees. Wrapping around the house are flower-bed borders, a large patio, sunken seating area, and access to the front via low-level picket fencing and gate. Pathway leads to the greenhouse and garaging.
Driveway
Gated driveway providing parking for several vehicles.
Brochures
Brochure 1- COUNCIL TAXA payment made to your local authority in order to pay for local services like schools, libraries, and refuse collection. The amount you pay depends on the value of the property.Read more about council Tax in our glossary page.
- Band: F
- PARKINGDetails of how and where vehicles can be parked, and any associated costs.Read more about parking in our glossary page.
- Garage,Driveway
- GARDENA property has access to an outdoor space, which could be private or shared.
- Yes
- ACCESSIBILITYHow a property has been adapted to meet the needs of vulnerable or disabled individuals.Read more about accessibility in our glossary page.
- Ask agent
Manor Close, Andover, SP11
Add an important place to see how long it'd take to get there from our property listings.
__mins driving to your place
Get an instant, personalised result:
- Show sellers you’re serious
- Secure viewings faster with agents
- No impact on your credit score
Your mortgage
Notes
Staying secure when looking for property
Ensure you're up to date with our latest advice on how to avoid fraud or scams when looking for property online.
Visit our security centre to find out moreDisclaimer - Property reference RX628287. The information displayed about this property comprises a property advertisement. Rightmove.co.uk makes no warranty as to the accuracy or completeness of the advertisement or any linked or associated information, and Rightmove has no control over the content. This property advertisement does not constitute property particulars. The information is provided and maintained by TAUK, Covering Nationwide. Please contact the selling agent or developer directly to obtain any information which may be available under the terms of The Energy Performance of Buildings (Certificates and Inspections) (England and Wales) Regulations 2007 or the Home Report if in relation to a residential property in Scotland.
*This is the average speed from the provider with the fastest broadband package available at this postcode. The average speed displayed is based on the download speeds of at least 50% of customers at peak time (8pm to 10pm). Fibre/cable services at the postcode are subject to availability and may differ between properties within a postcode. Speeds can be affected by a range of technical and environmental factors. The speed at the property may be lower than that listed above. You can check the estimated speed and confirm availability to a property prior to purchasing on the broadband provider's website. Providers may increase charges. The information is provided and maintained by Decision Technologies Limited. **This is indicative only and based on a 2-person household with multiple devices and simultaneous usage. Broadband performance is affected by multiple factors including number of occupants and devices, simultaneous usage, router range etc. For more information speak to your broadband provider.
Map data ©OpenStreetMap contributors.






