West Fen Road, Ely, CB6
- PROPERTY TYPE
Land
- SIZE
11,313 sq ft
1,051 sq m
Key features
- Residential Development Opportunity
- Detailed Planning Consent for Two, 4 Bedroom Detached Dwellings
- Convenient for City Centre & A10
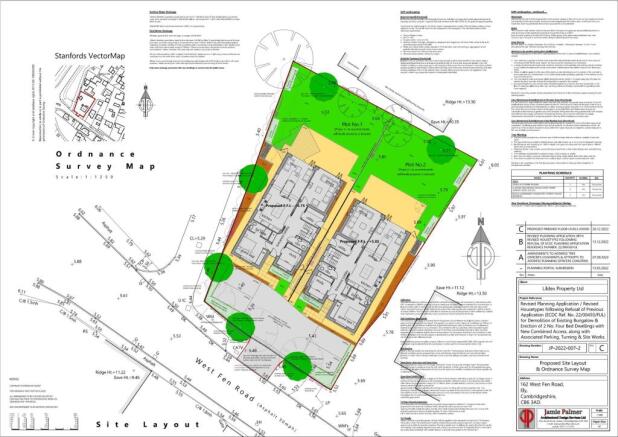
Description
A residential development opportunity with detailed planning consent for the demolition of the existing bungalow and construction of two, 4 bedroom detached dwellings.
PLANNING:
Planning consent was granted by East Cambs District Council on 10th February 2023 for the demolition of the existing bungalow and the construction of 2no. four bedroom detached dwellings with new combined access, associated parking, turning and site works. The planning reference number is 22/01473/FUL and construction must commence within 3 years of the date of permission being granted.
SERVICES:
Mains services are available within West Fen Road. Purchasers should make their own enquiries as to the exact location and capacity of these services.
TENURE:
Freehold.
AGENTS NOTES:
The purchaser will be responsible for the payment of the Community Infrastructure Levy.
Broadband – we understand from Ofcom that standard, superfast and ultrafast broadband is available to the site with ultrafast having a maximum download speed of 1800 mpbs
Mobile Signal/Coverage – we understand from Ofcom that 'voice' is indicated to be limited for 4 out of the 4 main providers checked and 'data' is indicated to be limited for 3 out of the 4 main providers checked
Flood risk - according to Gov.uk, the risk of surface water flooding is indicated to be medium risk, flooding from rivers and seas is indicated to be very low, and flooding from reservoirs or rivers in the area is indicated to be unlikely
Planning Permission – as outlined within these particulars.
EPC Rating: C
West Fen Road, Ely, CB6
NEAREST STATIONS
Distances are straight line measurements from the centre of the postcode- Ely Station1.3 miles
- Littleport Station4.9 miles
- Soham Station6.0 miles
Notes
Disclaimer - Property reference dafaea8a-95f6-486f-afa8-cfdf60e636cf. The information displayed about this property comprises a property advertisement. Rightmove.co.uk makes no warranty as to the accuracy or completeness of the advertisement or any linked or associated information, and Rightmove has no control over the content. This property advertisement does not constitute property particulars. The information is provided and maintained by Richard Booth Estate Agents Ltd, Ely. Please contact the selling agent or developer directly to obtain any information which may be available under the terms of The Energy Performance of Buildings (Certificates and Inspections) (England and Wales) Regulations 2007 or the Home Report if in relation to a residential property in Scotland.
Map data ©OpenStreetMap contributors.




