
Park West, Hyde Park Estate, London, W2

- PROPERTY TYPE
Flat
- BEDROOMS
1
- BATHROOMS
1
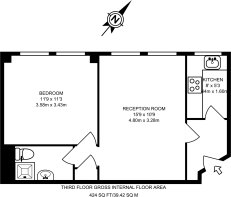
- SIZE
424 sq ft
39 sq m
Key features
- Stylish one bed apartment within an imposing development close to Hyde Park and Oxford Street
- Well reception with bright sash windows
- Well maintained kitchen
- Spacious double bedroom
- Helpful on site porter
- Moments from Edgware Road and Oxford Streets great range of shops
- Within walking distance of Paddington, Edgware road and Marble Arch stations
- Well located for beautiful Hyde Park
Description
This great one bedroom apartment is situated on the fourth floor of a secure portered building and boasts clean, fresh interiors, generous living space and a wonderfil location just moments from a variety of amenities and transport links. The property comprises of a reception room, kitchen, bedroom and bathroom. With Marble Arch and Hyde Park within good distance, the shopping, dining and entertainment facilities of Mayfair and the West End are also closeby, with local amenities also on Edgware Road. Transport links include Marble Arch (Central line) and Edgware Road (Bakerloo, Circle, District and Hammersmith & City lines) Underground Stations, in addition to an array of regular bus routes. For the motorist, the A40 Westway is also in the area.
Transport links include Marble Arch (Central line) and Edgware Road (Bakerloo, Circle, District and Hammersmith & City lines) Underground Stations, in addition to an array of regular bus routes. For the motorist, the A40 Westway is also in the area.
Please use the reference CHPK0352229 when contacting Foxtons.
Brochures
Property detailsSuper sized images- COUNCIL TAXA payment made to your local authority in order to pay for local services like schools, libraries, and refuse collection. The amount you pay depends on the value of the property.Read more about council Tax in our glossary page.
- Ask agent
- PARKINGDetails of how and where vehicles can be parked, and any associated costs.Read more about parking in our glossary page.
- Ask agent
- GARDENA property has access to an outdoor space, which could be private or shared.
- Ask agent
- ACCESSIBILITYHow a property has been adapted to meet the needs of vulnerable or disabled individuals.Read more about accessibility in our glossary page.
- Ask agent
Park West, Hyde Park Estate, London, W2
Add an important place to see how long it'd take to get there from our property listings.
__mins driving to your place
Get an instant, personalised result:
- Show sellers you’re serious
- Secure viewings faster with agents
- No impact on your credit score
Your mortgage
Notes
Staying secure when looking for property
Ensure you're up to date with our latest advice on how to avoid fraud or scams when looking for property online.
Visit our security centre to find out moreDisclaimer - Property reference 1300424. The information displayed about this property comprises a property advertisement. Rightmove.co.uk makes no warranty as to the accuracy or completeness of the advertisement or any linked or associated information, and Rightmove has no control over the content. This property advertisement does not constitute property particulars. The information is provided and maintained by Foxtons, Marylebone. Please contact the selling agent or developer directly to obtain any information which may be available under the terms of The Energy Performance of Buildings (Certificates and Inspections) (England and Wales) Regulations 2007 or the Home Report if in relation to a residential property in Scotland.
*This is the average speed from the provider with the fastest broadband package available at this postcode. The average speed displayed is based on the download speeds of at least 50% of customers at peak time (8pm to 10pm). Fibre/cable services at the postcode are subject to availability and may differ between properties within a postcode. Speeds can be affected by a range of technical and environmental factors. The speed at the property may be lower than that listed above. You can check the estimated speed and confirm availability to a property prior to purchasing on the broadband provider's website. Providers may increase charges. The information is provided and maintained by Decision Technologies Limited. **This is indicative only and based on a 2-person household with multiple devices and simultaneous usage. Broadband performance is affected by multiple factors including number of occupants and devices, simultaneous usage, router range etc. For more information speak to your broadband provider.
Map data ©OpenStreetMap contributors.





