
2 Infinity Views, Les Petites Fontaines, St Peter Port, GY1

- PROPERTY TYPE
Terraced
- BEDROOMS
4
- BATHROOMS
3
- SIZE
4,316 sq ft
401 sq m
- TENUREDescribes how you own a property. There are different types of tenure - freehold, leasehold, and commonhold.Read more about tenure in our glossary page.
Freehold
Key features
- Local Market, modern town house
- Sea views looking over St Peter Port
- Underground double garage with additional parking space above ground
- Open plan layout with first floor sitting room
- Four bedrooms with two en suites.
- A fantastic newly built town house with views across St Peter Port
Description
Description
A modern and immaculate family home presented in 'as new' condition in a quiet but convenient part of town, with panoramic views across beautiful fields and out to the islands beyond. This executive home will suit a range of buyers thanks to its balance of style, space and modern build quality.
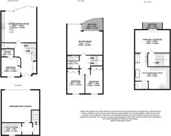
The house is set over four floors, the lowest of which is complete with an underground garage with parking for two vehicles. Upon entering the house from the garage, you're met with the utility / boot room - an ideal layout for any family.
On the ground floor, the beautiful kitchen diner is large enough to entertain a crowd, and the sizeable doors leading to the garden create a wonderful light, bright room year-round. A generous double bedroom with en suite completes the level.
On the second floor, there is the principal reception room with large balcony and fantastic views. Two equal, well-proportioned bedrooms on this floor with built in storage are ideal for family or guests.
The principal bedroom suite occupies the whole of the top floor, with a spacious opulent feeling, nicely separated from the rest of the house.
Location
'2 Infinity Views' is situated in the heart of St Peter Port remaining close to the local amenities of the town centre including restaurants, cafes, shops and supermarkets.
A regular bus route is available from The Grange/Queens Road.
The school catchment area for the property is Vauvert Primary and Les Varendes .
Square Footage: 4,316 sq ft
Directions
Turning left off the Grange on to Queens Road, continue until the next left that takes you on to Les Petites Fontaines. 2 Infinity Views is located another 300 meters down this road on the right.
Additional Info
Services and notes Mains electricity, water and drainage. Oil fired underfloor central heating throughout. (Meile appliances throughout). We understand the property to be of cavity construction. TRP 401.
Please note any total floor areas referred to within Savills Guernsey's details are provided by the States of Guernsey and are approximate only.
Brochures
Web Details- COUNCIL TAXA payment made to your local authority in order to pay for local services like schools, libraries, and refuse collection. The amount you pay depends on the value of the property.Read more about council Tax in our glossary page.
- Band: TBC
- PARKINGDetails of how and where vehicles can be parked, and any associated costs.Read more about parking in our glossary page.
- Yes
- GARDENA property has access to an outdoor space, which could be private or shared.
- Yes
- ACCESSIBILITYHow a property has been adapted to meet the needs of vulnerable or disabled individuals.Read more about accessibility in our glossary page.
- Ask agent
Energy performance certificate - ask agent
2 Infinity Views, Les Petites Fontaines, St Peter Port, GY1
Add an important place to see how long it'd take to get there from our property listings.
__mins driving to your place
Get an instant, personalised result:
- Show sellers you’re serious
- Secure viewings faster with agents
- No impact on your credit score
Your mortgage
Notes
Staying secure when looking for property
Ensure you're up to date with our latest advice on how to avoid fraud or scams when looking for property online.
Visit our security centre to find out moreDisclaimer - Property reference GUE250030. The information displayed about this property comprises a property advertisement. Rightmove.co.uk makes no warranty as to the accuracy or completeness of the advertisement or any linked or associated information, and Rightmove has no control over the content. This property advertisement does not constitute property particulars. The information is provided and maintained by Savills, Guernsey. Please contact the selling agent or developer directly to obtain any information which may be available under the terms of The Energy Performance of Buildings (Certificates and Inspections) (England and Wales) Regulations 2007 or the Home Report if in relation to a residential property in Scotland.
*This is the average speed from the provider with the fastest broadband package available at this postcode. The average speed displayed is based on the download speeds of at least 50% of customers at peak time (8pm to 10pm). Fibre/cable services at the postcode are subject to availability and may differ between properties within a postcode. Speeds can be affected by a range of technical and environmental factors. The speed at the property may be lower than that listed above. You can check the estimated speed and confirm availability to a property prior to purchasing on the broadband provider's website. Providers may increase charges. The information is provided and maintained by Decision Technologies Limited. **This is indicative only and based on a 2-person household with multiple devices and simultaneous usage. Broadband performance is affected by multiple factors including number of occupants and devices, simultaneous usage, router range etc. For more information speak to your broadband provider.
Map data ©OpenStreetMap contributors.





