Langley Road, Newton Hall, Durham, DH1

- PROPERTY TYPE
Semi-Detached
- BEDROOMS
3
- BATHROOMS
1
- SIZE
Ask agent
- TENUREDescribes how you own a property. There are different types of tenure - freehold, leasehold, and commonhold.Read more about tenure in our glossary page.
Freehold
Key features
- Three Bedroom
- Semi Detached House
- No Upper Chain
- Ideal Family Home
- EPC Rating C
- Cul de Sac Location
- Front and Rear Gardens
- Driveway and Garage
- Downstairs WC
- Viewings Highly Recommended
Description
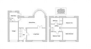
This three bedroom semi detached house is located on the Langley Road cul de sac in Newton Hall, Durham. The property is being sold with the benefit of no upper chain and will appeal to a wide range of purchasers. The property comprises: an entrance hall, spacious living room, fitted kitchen/diner and a utility room with a downstairs WC. To the first floor there are three bedrooms and a bathroom. Externally there is a front garden laid to lawn with a driveway leading to a single garage. To the rear is a good size garden mostly laid to lawn with a paved patio. Viewings are highly recommended.
Front External
To the front property is a garden laid to lawn and a driveway leading to an attached single garage.
Hallway
With carpet flooring, a radiator, an under stairs cupboard and a double glazed window to the front.
Living Room
4.65m x 3.07m
Spacious living room including an electric fire, carpet flooring and a double glazed window to the front.
Kitchen/Diner
6.7m x 2.601m
Kitchen including fitted wall and base units with a contrasting work surface, sink/drainer with a mixer tap, electric cooker point, a radiator, vinyl flooring and a double glazed window to the rear. The dining area has carpet flooring and a double glazed bay window to the rear.
Utility Room
2.409m x 2.256m
Including fitted wall and base units, Belfast sink, plumbing for a washing machine, vinyl flooring, a double glazed window to the rear and a door leading to the rear garden.
Downstairs WC
With a low level WC, vinyl flooring and a double glazed window to the side.
Stairs
With carpet flooring.
Landing
Including loft access, carpet flooring and a double glazed window to the side.
Master Bedroom
3.59m x 3.11m
Master bedroom including carpet flooring, a radiator and a double glazed window to the front.
Bedroom Two
3.642m x 2.645m
Bedroom with carpet flooring, a radiator and a double glazed window to the rear.
Bedroom Three
3.02m x 2.192m
Bedroom including fitted wardrobes, carpet flooring, a radiator and a double glazed window to the front.
Bathroom
2.331m x 1.679m
Bathroom including a bath with a mains shower above, low level WC, pedestal wash hand basin, vinyl flooring, partially tiled walls, a built in cupboard housing the boiler, a radiator and two double glazed windows to the rear.
Garage
Including three single glazed windows to the side and an up and over door.
Rear Garden
To the rear of the property is a good sized garden mostly laid to lawn with planted borders, a paved patio and gated side access to the front.
Agent Notes
1. The property is in council tax band B. 2. The seller has advised us that the property is freehold. 3. Utilities - Mains water, sewerage, electricity and gas. 4. Ultrafast broadband available to this property (checker.ofcom.org.uk) 5. Flood Risk - Rivers and Sea - very low, Surface Water - very low (gov.uk)
Disclaimer
The preceding details have been sourced from the seller and the websites listed above. Verification and clarification of this information, along with any further details concerning Material Information parts A, B & C, should be sought from a legal representative or appropriate authorities. Newfield Estates cannot accept liability for any information provided.
- COUNCIL TAXA payment made to your local authority in order to pay for local services like schools, libraries, and refuse collection. The amount you pay depends on the value of the property.Read more about council Tax in our glossary page.
- Ask agent
- PARKINGDetails of how and where vehicles can be parked, and any associated costs.Read more about parking in our glossary page.
- Yes
- GARDENA property has access to an outdoor space, which could be private or shared.
- Yes
- ACCESSIBILITYHow a property has been adapted to meet the needs of vulnerable or disabled individuals.Read more about accessibility in our glossary page.
- Ask agent
Langley Road, Newton Hall, Durham, DH1
Add an important place to see how long it'd take to get there from our property listings.
__mins driving to your place
Get an instant, personalised result:
- Show sellers you’re serious
- Secure viewings faster with agents
- No impact on your credit score
Your mortgage
Notes
Staying secure when looking for property
Ensure you're up to date with our latest advice on how to avoid fraud or scams when looking for property online.
Visit our security centre to find out moreDisclaimer - Property reference NES200035. The information displayed about this property comprises a property advertisement. Rightmove.co.uk makes no warranty as to the accuracy or completeness of the advertisement or any linked or associated information, and Rightmove has no control over the content. This property advertisement does not constitute property particulars. The information is provided and maintained by Newfield Estates, Durham. Please contact the selling agent or developer directly to obtain any information which may be available under the terms of The Energy Performance of Buildings (Certificates and Inspections) (England and Wales) Regulations 2007 or the Home Report if in relation to a residential property in Scotland.
*This is the average speed from the provider with the fastest broadband package available at this postcode. The average speed displayed is based on the download speeds of at least 50% of customers at peak time (8pm to 10pm). Fibre/cable services at the postcode are subject to availability and may differ between properties within a postcode. Speeds can be affected by a range of technical and environmental factors. The speed at the property may be lower than that listed above. You can check the estimated speed and confirm availability to a property prior to purchasing on the broadband provider's website. Providers may increase charges. The information is provided and maintained by Decision Technologies Limited. **This is indicative only and based on a 2-person household with multiple devices and simultaneous usage. Broadband performance is affected by multiple factors including number of occupants and devices, simultaneous usage, router range etc. For more information speak to your broadband provider.
Map data ©OpenStreetMap contributors.




