Charlton Road, Holcombe, Radstock, BA3
- PROPERTY TYPE
Plot
- BEDROOMS
4
- BATHROOMS
3
- SIZE
Ask agent
Key features
- Single individual building plot
- Popular Somerset village
- Planning permission granted
- Reference number 2025/0406/FUL.
- Double garage and parking
- Approximately 300 sq meters
- Open plan kitchen/dining/living space
Description
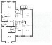
An individual building plot located on the outskirts of Holcombe, a popular Somerset village with planning permission granted for a detached family home of approximately 300 sq meters with an attached double garage, parking and enclosed gardens. Planning reference number 2025/0406/FUL. The accommodation in brief comprises an entrance reception hall, superb open plan kitchen/dining/living room, study, snug, downstairs WC, utility room and a pantry. To the first floor there is the master bedroom with dressing room and en-suite, bedroom two with dressing area and en-suite, two further double bedrooms and a family bathroom. Please enquire for further details.
Description
An individual building plot located on the outskirts of Holcombe, a popular Somerset village with planning permission granted for a detached family home of approximately 300 sq meters with an attached double garage, parking and enclosed gardens. Planning reference number 2025/0406/FUL. The accommodation in brief comprises an entrance reception hall, superb open plan kitchen/dining/living room, study, snug, downstairs WC, utility room and a pantry. To the first floor there is the master bedroom with dressing room and en-suite, bedroom two with dressing area and en-suite, two further double bedrooms and a family bathroom. Please enquire for further details.
Location
Holcombe is a popular Somerset village being within commuting distance of both Bath and Bristol. Holcombe enjoys a variety of open spaces, rural views and surroundings which underpin the whole life and character of the village. Within the village there is a beautiful church, village hall, recreation field, a public house and Holcombe Farm Shop and Kitchen. A wide variety of local amenities and shopping facilities can be found in neighbouring towns and villages. The busy market towns of Frome and Shepton Mallet are both under 8 miles away. There are several schools nearby (both State and Independent) including primary schools at both Kilmersdon and Leigh on Mendip, Writhlington Secondary School, Wells Cathedral School and Downside School.
Council Tax Band
TBC
Brochures
Brochure 1Charlton Road, Holcombe, Radstock, BA3
NEAREST STATIONS
Distances are straight line measurements from the centre of the postcode- Frome Station7.0 miles




Notes
Disclaimer - Property reference 29539152. The information displayed about this property comprises a property advertisement. Rightmove.co.uk makes no warranty as to the accuracy or completeness of the advertisement or any linked or associated information, and Rightmove has no control over the content. This property advertisement does not constitute property particulars. The information is provided and maintained by Cooper & Tanner, Midsomer Norton. Please contact the selling agent or developer directly to obtain any information which may be available under the terms of The Energy Performance of Buildings (Certificates and Inspections) (England and Wales) Regulations 2007 or the Home Report if in relation to a residential property in Scotland.
Map data ©OpenStreetMap contributors.






