Upham Street, Upham, Southampton, Hampshire, SO32

- PROPERTY TYPE
Detached
- BEDROOMS
6
- BATHROOMS
8
- SIZE
Ask agent
- TENUREDescribes how you own a property. There are different types of tenure - freehold, leasehold, and commonhold.Read more about tenure in our glossary page.
Freehold
Key features
- Spacious Gated Detached Period House
- Seven reception rooms
- Six en suite bedrooms
- Private indoor swimming pool
- EPC: G
- Large mature garden
- Direct garden access from kitchen
- Office workspace
- Tranquil green surroundings
- No forward chain
Description
Notice of Offer:
Property Address: Hoyle House, Upham Street, Upham, Southampton, Hampshire, SO32 1JA
We advise that an offer has been made for the above property in the sum of £1,075,000. Any persons wishing to increase on this offer should notify the agents of their best offer prior to exchange of contracts.
Agents Address: YOUR MOVE, 28 London Road, Southampton, SO15 2AG
Agents Telephone Number:
We are pleased to present this substantial detached house for sale, offering an exceptional opportunity for families seeking a spacious and versatile home set amidst tranquil green spaces, with access to both walking and cycling routes. This property which is set in 0.91acres is in need of some renovation, provides the perfect canvas to create your dream residence to suit your individual taste and requirements.
Boasting seven generous reception rooms, the property presents a wealth of possibilities for comfortable family living and entertaining. Multiple reception rooms feature garden views and large windows, flooding the interiors with natural light, while one has been thoughtfully arranged as an office, ideal for working from home. The well-appointed kitchen benefits from ample dining space and direct garden access, making it perfect for family gatherings or hosting guests.
Accommodation comprises six double bedrooms, each benefitting from its own en suite bathroom, delivering privacy and convenience for every family member. Designed to support an active lifestyle, the house also features a private gym area within the building, as well as a swimming pool and jacuzzi for relaxation and leisure.
Outdoors, a mature garden offers space for play and recreation, and the additional outbuildings provide flexible options for storage or future development. The property is offered with no forward chain, ensuring a smooth purchase process for discerning buyers ready to embark on their next chapter.
This unique residence combines generous proportions, outstanding amenities, and an enviable location, presenting an unmissable opportunity for families looking to create a truly bespoke home.
EPC: G
Tenure: Tenure
IMPORTANT NOTE TO POTENTIAL PURCHASERS & TENANTS:
We endeavour to make our particulars accurate and reliable, however, they do not constitute or form part of an offer or any contract and none is to be relied upon as statements of representation or fact. The services, systems and appliances listed in this specification have not been tested by us and no guarantee as to their operating ability or efficiency is given. All photographs and measurements have been taken as a guide only and are not precise. Floor plans where included are not to scale and accuracy is not guaranteed. If you require clarification or further information on any points, please contact us, especially if you are traveling some distance to view. POTENTIAL PURCHASERS: Fixtures and fittings other than those mentioned are to be agreed with the seller. POTENTIAL TENANTS: All properties are available for a minimum length of time, with the exception of short term accommodation. Please contact the branch for details. A security deposit of at least one month’s rent is required. Rent is to be paid one month in advance. It is the tenant’s responsibility to insure any personal possessions. Payment of all utilities including water rates or metered supply and Council Tax is the responsibility of the tenant in most cases.
SOU250377/2
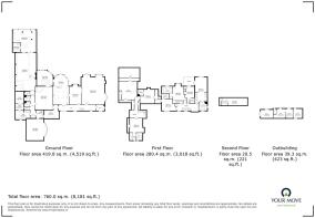
Entrance Hall
Drawing Room
9.52m x 7.51m
Dining Room
6.44m x 3.63m
Kitchen Diner
9.48m x 5.37m
Family Room
5.06m x 4.91m
Games Room
7.68m x 5.64m
Library
4.83m x 4.42m
Home Office
7m x 8.86m
WC
Pool Room
12.39m x 6.68m
Garden Room
7.51m x 7.03m
Utility Room
Pool shower 1
Pool Shower 2
Bedroom 1
7.68m x 3.88m
En Suite Bathroom
Balcony
Bedroom 2
5.4m x 4.46m
En Suite Bathroom
Bedroom 3
4.68m x 4.41m
En Suite Bathroom
Bedroom 4
4.61m x 4.53m
En Suite Shower Room
Bedroom 5
4.68m x 3.75m
En Suite Bathroom
Gym Area
5.97m x 5.97m
Loft Space
8.25m x 2.5m
Outside Store 1
3.99m x 2.69m
Outside Store 2
Outside Store 3
Garden
Parking
Brochures
Web Details- COUNCIL TAXA payment made to your local authority in order to pay for local services like schools, libraries, and refuse collection. The amount you pay depends on the value of the property.Read more about council Tax in our glossary page.
- Band: G
- PARKINGDetails of how and where vehicles can be parked, and any associated costs.Read more about parking in our glossary page.
- Driveway
- GARDENA property has access to an outdoor space, which could be private or shared.
- Yes
- ACCESSIBILITYHow a property has been adapted to meet the needs of vulnerable or disabled individuals.Read more about accessibility in our glossary page.
- Ask agent
Upham Street, Upham, Southampton, Hampshire, SO32
Add an important place to see how long it'd take to get there from our property listings.
__mins driving to your place
Get an instant, personalised result:
- Show sellers you’re serious
- Secure viewings faster with agents
- No impact on your credit score
Your mortgage
Notes
Staying secure when looking for property
Ensure you're up to date with our latest advice on how to avoid fraud or scams when looking for property online.
Visit our security centre to find out moreDisclaimer - Property reference SOU250377. The information displayed about this property comprises a property advertisement. Rightmove.co.uk makes no warranty as to the accuracy or completeness of the advertisement or any linked or associated information, and Rightmove has no control over the content. This property advertisement does not constitute property particulars. The information is provided and maintained by Your Move Sales, Southampton. Please contact the selling agent or developer directly to obtain any information which may be available under the terms of The Energy Performance of Buildings (Certificates and Inspections) (England and Wales) Regulations 2007 or the Home Report if in relation to a residential property in Scotland.
*This is the average speed from the provider with the fastest broadband package available at this postcode. The average speed displayed is based on the download speeds of at least 50% of customers at peak time (8pm to 10pm). Fibre/cable services at the postcode are subject to availability and may differ between properties within a postcode. Speeds can be affected by a range of technical and environmental factors. The speed at the property may be lower than that listed above. You can check the estimated speed and confirm availability to a property prior to purchasing on the broadband provider's website. Providers may increase charges. The information is provided and maintained by Decision Technologies Limited. **This is indicative only and based on a 2-person household with multiple devices and simultaneous usage. Broadband performance is affected by multiple factors including number of occupants and devices, simultaneous usage, router range etc. For more information speak to your broadband provider.
Map data ©OpenStreetMap contributors.







