Speedwell Close, Pontprennau, Cardiff

- PROPERTY TYPE
Detached
- BEDROOMS
5
- BATHROOMS
3
- SIZE
Ask agent
- TENUREDescribes how you own a property. There are different types of tenure - freehold, leasehold, and commonhold.Read more about tenure in our glossary page.
Freehold
Key features
- COUNCIL TAX BAND G, EPC C, FIVE BEDROOMS, THREE BATHROOMS,
- 17 FT SITTING ROOM, 22 FT LOUNGE WITH FRENCH DOORS AND A JULIET BALCONY
- STUNNING NEW 2018 22 FT OPEN PLAN FITTED KITCHEN, DINING ROOM AND FAMILY ROOM
- GAS HEATING, PVC DOUBLE GLAZING
- SUPERB LANDSCAPED SOUTH FACING REAR GARDENS
- LOVELY QUIET CLOSE LOCATION
- DOUBLE DRIVE, MUST BE SEEN!
Description
SUMMARY
A truly impressive five bedroom, three bathroom house, providing 1700 square feet, with a fabulous new open plan fully fitted kitchen, dining room and family room, plus a 22 FT lounge and a 17 FT sitting room. Stunning accommodation with a beautiful south facing landscaped private rear garden.
DESCRIPTION
A stylish detached larger style gable fronted four bedroom family house, built in 2006 by Messrs David Wilson Homes, a reputable firm of National House Builders, the Lauderdale in design, one of only a few built, and completed with a 10 year N H B C guarantee. The property occupies a delightful position, fronting a quiet and private residential close away from passing traffic, yet well placed within walking distance to Pontprennau shopping centre. This fabulous five bedroom family home provides deceptively spacious living space, two storey from the front, and three storey from the rear. The impressive living space could be suitable for a large family and two generation living needs, with its ground floor fifth bedroom benefiting a jack and Jill modern shower room, whilst a truly stunning features is a superb open plan kitchen, dining room and family room (22'4 x 16'4), fitted in 2018, with stylish integrated appliances. French door open onto a further impressive feature being the beautifully landscaped SOUTH FACING rear gardens. The ground floor living space whilst accommodating the fifth bedroom ad shower also benefits a super sized lounge (22'4 x 14'0), and a further useful sitting room (17'0 x 8'8). The first floor comprises four double sized bedrooms and two bathrooms, one being ensuite. The property is double fronted in design and benefits gas heating with panel radiators, white PVC double glazed windows, and entrance hall with a spindle balustrade staircase,
Location
Pontprennau Shopping Centre includes an Asda super store, a B & Q, a Gym together with various coffee shops and sofa and furniture stores as well as a Petrol Station and a McDonalds.
Speedwell Close, is a lovely quiet cul de sac road, chiefly comprising detached houses, ideal for a family and well placed for access to Pontprennau Primary School, and an exit onto both the A 48 and the M4, enabling fast travel to Cardiff City Centre and Bristol.
Within walking distance is PONTPRENNAU PRIMARY SCHOOL, ONE OF THE MOST POPULAR SCHOOLS IN CARDIFF, a shopping precinct which includes an Asda super-store and Petrol Station, a B & Q, a McDonald's restaurant, a Gym, a Costa coffee and several home furniture stores. The northern edge and highest point in the community is where the community centre, the church, Pontprennau Primary School and Pontprennau Medical Centre, dentist and pharmacy are located. Also close by is an Aldi Store, a Lidl super store, a Waitrose, Bupa private medical centre and a number of highly regarded residential retirement homes
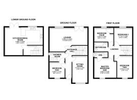
Ground Floor
Entrance Porch
Open fronted, paved threshold.
Entrance Hall
Approached via a composite part panelled double glazed front entrance door inset with stylish leaded upper lights opening in to a central hall with white traditional style panel doors providing independent access throughout the ground floor.
Lounge 22' 4" x 14' narrowing to 10' 1" ( 6.81m x 4.27m narrowing to 3.07m )
Approached via a white traditional style panel door leading to a sizeable principal reception room inset with PVC double glazed French doors that open on to a Juliet balcony with outlooks across the landscaped and stylish rear gardens, further clear glass PVC double glazed window to rear, two radiators, chrome effect dimmer light switch.
Sitting Room 17' x 8' 8" ( 5.18m x 2.64m )
Independently approached from the entrance hall via a white traditional style panel door, inset with a clear glass PVC double glazed window with outlooks across the frontage gardens and drive, stylish flooring, radiator, stylish light switches and power points.
Bedroom Five 9' 2" x 9' ( 2.79m x 2.74m )
Approached independently from the entrance hall via a white traditional style panel door, radiator, clear glass PVC double glazed window to front.
Ensuite Shower Room 8' 10" x 5' 5" ( 2.69m x 1.65m )
Modern white suite (Roca) comprising double size shower with tiled walls, chrome shower unit, and clear glass sliding shower door and panels, slim line W.C., pedestal wash hand basin with chrome taps and tiled splashback, obscure glass PVC double glazed window to side, air ventilator, radiator. Jack and Jill door to entrance hall.
Lower Ground Floor
Approached from the entrance hall via a spindle balustrade carpeted returning staircase leading to a lower ground floor hall with radiator and access to......
Kitchen/Dining And Family Room 22' 4" x 16' 4" narrowing to 10' 1" ( 6.81m x 4.98m narrowing to 3.07m )
Beautifully fitted new kitchen with stylish high gloss doors in contemporary grey beneath quartz granite work surfaces, incorporating a Franke sink with chrome powerjet mixer taps, vegetable cleaner and granite drainer, integrated AEG induction hob with glass splashback and AEG extractor hood, integrated AEG dishwasher, integrated Zanussi washer/dryer, corner carousel units, soft closing doors and drawers, integrated low level fridge, integrated low level freezer, corner end shelves, porcelain tiled flooring throughout, retro tiled walls, chrome effect light switches and power points, clear glass PVC double glazed window with a delightful rear garden outlook, ample space for a dining table and six chairs, further space for a sofa, radiator, ceiling with spotlights, white PVC double glazed French doors open on to a porcelain tiled sun terrace.
First Floor
Landing
Approached via a carpeted returning spindle balustrade staircase with half landing leading to a main landing with access to roof space and radiator.
Master Bedroom One 13' 8" x 12' 4" into an entrance recess ( 4.17m x 3.76m into an entrance recess )
Approached from the landing via a white traditional style panel door, clear glass PVC double glazed window with outlook on to the quiet frontage close, radiator.
Ensuite Shower Room
Modern white suite comprising double size shower with tiled walls, chrome shower unit and clear glass shower door and screen, shaped pedestal wash hand basin with tiled splashback and chrome taps, slim line W.C., tiled flooring, radiator, obscure glass PVC double glazed window to side, air ventilator.
Bedroom Two 12' 5" x 10' 7" maximum ( 3.78m x 3.23m maximum )
Into an entrance recess.
Approached independently from the first floor landing via a white traditional style panel door, radiator, clear glass PVC double glazed window with outlooks on to the quiet frontage close.
Bedroom Three 10' 8" x 10' 3" ( 3.25m x 3.12m )
Independently approached from the landing via a white traditional style panel door leading to a further double size bedroom with radiator and a PVC double glazed clear glass window with elevated outlooks across the delightful landscaped south facing rear gardens with views across the surrounding area.
Bedroom Four 11' 5" x 8' 6" plus an entrance recess ( 3.48m x 2.59m plus an entrance recess )
Approached from the landing via a white traditional style panel door, radiator, clear glass PVC double glazed window with elevated outlooks across the delightful south facing rear gardens and extending across the surrounding area.
Family Bathroom
Modern white suite comprising panel bath with ceramic tiled surround, shaped pedestal wash hand basin, slim line W.C., (Roca suite), radiator, obscure glass PVC double glazed window to side, air ventilator.
Outside
Front Entrance Drive
Double width private Tarmac off street vehicular entrance drive providing parking for two cars.
Front Garden
Laid to lawn enclosed to the front by mature trees and hedgerow to afford a screen of privacy, and inset with a paved entrance path.
Rear Garden
A truly stunning feature of the property are the very sunny south facing rear gardens totally landscaped with decked sun terrace, under cover pergola, and a porcelain tiled patio, all enclosed and afforded privacy by timber fencing and screens of hedgerow and climbing wisteria. Useful garden shed. Very impressive.
DIRECTIONS
Head west on Albany Rd/A469 toward Cottrell Rd, Turn right onto Wellfield Rd, Continue onto Pen-Y-Lan Rd, Continue onto Cyncoed Rd, Turn right onto Llanedeyrn Rd, At the roundabout, take the 3rd exit onto Circle Wy, At the roundabout, take the 1st exit onto the A 48 ramp, Merge onto Eastern Ave/A 48, Take the A 4232 exit toward Pontprennau/Cardiff Gate/Porth Caerdydd/M4 (West), At the roundabout, take the 2nd exit onto Pentwyn Link Rd./A 4232, Slight left toward Heol Pontprennau, Merge onto Heol Pontprennau, At the roundabout, take the 1st exit onto Heol Glaslyn, Turn left onto Heol Camddwr, Continue onto Cottingham Dr, Turn left onto Speedwell Close, Destination will be on the right hand side towards the end of the close. time: 11 mins 13 s, Total time: 11 mins 13 seconds.
1. MONEY LAUNDERING REGULATIONS: Intending purchasers will be asked to produce identification documentation at a later stage and we would ask for your co-operation in order that there will be no delay in agreeing the sale.
2. General: While we endeavour to make our sales particulars fair, accurate and reliable, they are only a general guide to the property and, accordingly, if there is any point which is of particular importance to you, please contact the office and we will be pleased to check the position for you, especially if you are contemplating travelling some distance to view the property.
3. The measurements indicated are supplied for guidance only and as such must be considered incorrect.
4. Services: Please note we have not tested the services or any of the equipment or appliances in this property, accordingly we strongly advise prospective buyers to commission their own survey or service reports before finalising their offer to purchase.
5. THESE PARTICULARS ARE ISSUED IN GOOD FAITH BUT DO NOT CONSTITUTE REPRESENTATIONS OF FACT OR FORM PART OF ANY OFFER OR CONTRACT. THE MATTERS REFERRED TO IN THESE PARTICULARS SHOULD BE INDEPENDENTLY VERIFIED BY PROSPECTIVE BUYERS OR TENANTS. NEITHER PETER ALAN NOR ANY OF ITS EMPLOYEES OR AGENTS HAS ANY AUTHORITY TO MAKE OR GIVE ANY REPRESENTATION OR WARRANTY WHATEVER IN RELATION TO THIS PROPERTY.
Brochures
Full Details- COUNCIL TAXA payment made to your local authority in order to pay for local services like schools, libraries, and refuse collection. The amount you pay depends on the value of the property.Read more about council Tax in our glossary page.
- Band: G
- PARKINGDetails of how and where vehicles can be parked, and any associated costs.Read more about parking in our glossary page.
- Driveway
- GARDENA property has access to an outdoor space, which could be private or shared.
- Front garden,Back garden
- ACCESSIBILITYHow a property has been adapted to meet the needs of vulnerable or disabled individuals.Read more about accessibility in our glossary page.
- Ask agent
Speedwell Close, Pontprennau, Cardiff
Add an important place to see how long it'd take to get there from our property listings.
__mins driving to your place
Get an instant, personalised result:
- Show sellers you’re serious
- Secure viewings faster with agents
- No impact on your credit score
Your mortgage
Notes
Staying secure when looking for property
Ensure you're up to date with our latest advice on how to avoid fraud or scams when looking for property online.
Visit our security centre to find out moreDisclaimer - Property reference ALY306921. The information displayed about this property comprises a property advertisement. Rightmove.co.uk makes no warranty as to the accuracy or completeness of the advertisement or any linked or associated information, and Rightmove has no control over the content. This property advertisement does not constitute property particulars. The information is provided and maintained by Peter Alan, Roath. Please contact the selling agent or developer directly to obtain any information which may be available under the terms of The Energy Performance of Buildings (Certificates and Inspections) (England and Wales) Regulations 2007 or the Home Report if in relation to a residential property in Scotland.
*This is the average speed from the provider with the fastest broadband package available at this postcode. The average speed displayed is based on the download speeds of at least 50% of customers at peak time (8pm to 10pm). Fibre/cable services at the postcode are subject to availability and may differ between properties within a postcode. Speeds can be affected by a range of technical and environmental factors. The speed at the property may be lower than that listed above. You can check the estimated speed and confirm availability to a property prior to purchasing on the broadband provider's website. Providers may increase charges. The information is provided and maintained by Decision Technologies Limited. **This is indicative only and based on a 2-person household with multiple devices and simultaneous usage. Broadband performance is affected by multiple factors including number of occupants and devices, simultaneous usage, router range etc. For more information speak to your broadband provider.
Map data ©OpenStreetMap contributors.







