Victoria Crescent, Poole, Dorset, BH12

- PROPERTY TYPE
Detached
- BEDROOMS
3
- BATHROOMS
1
- SIZE
Ask agent
- TENUREDescribes how you own a property. There are different types of tenure - freehold, leasehold, and commonhold.Read more about tenure in our glossary page.
Freehold
Key features
- Detached House
- 3 Bedrooms
- Lounge/Dining Room
- Kitchen
- Bathroom
- Off Road Parking
- Enclosed Rear Garden
- Gas Heating
- UPVC Double Glazing
- No Onward Chain
Description
A 3 BEDROOM DETACHED HOUSE located in a favoured crescent, conveniently near to the Ashley Road shops, Heatherlands School and Branksome recreation ground. Within easy reach are the Jurassic Coast, the New Forest, Bournemouth International Airport and the town centres of Bournemouth and Poole, which offer a wide range of shopping, entertainment and recreational facilities. Train services to London Waterloo run from Branksome, Parkstone, Bournemouth and Poole Stations and there are ferry sailings from Poole to Cherbourg. Situated on the South Coast, to the South, are the safe sandy beaches of Poole Bay and Poole Harbour, renowned for its fishing and boating facilities.
The accommodation comprises the following:
FRONT ENTRANCE: UPVC obscure double glazed front door, with matching side screen, to:
HALL: Side aspect UPVC double glazed window. Radiator, power point, ceiling light point, coved ceiling, stairs to first floor. Cupboard with electric meter and consumer unit, understairs cupboard. Doors to:
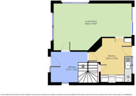
LOUNGE/DINING ROOM: 21'8" (6.60m) x 12'11" (3.95) max. Front aspect UPVC double glazed window, side aspect UPVC obscure double glazed window, UPVC double glazed patio doors to rear garden. Two radiators, TV point, power points, two ceiling light points, coved and textured ceiling.
KITCHEN: 12'2" (3.70m) max x 11'11" (3.62m) max. Rear aspect UPVC double glazed window, UPVC half double glazed door to rear garden. Range of floor and wall mounted cupboards and drawers, rolled edge work surfaces, inset single drainer stainless steel sink with mixer tap. Space and point for electric cooker, Space and point for fridge/freezer, space and plumbing for washing machine. Wall mounted Glow Worm gas fired boiler. Radiator, power points, ceiling light point, textured ceiling, understairs cupboard.
LANDING: Side aspect UPVC obscure double glazed window. Power point, ceiling light point, coved ceiling, access hatch to loft. Doors to:
BEDROOM 1: 12'11" (3.93m) x 10'9" (3.28m). Rear aspect UPVC double glazed window. Radiator, power points, ceiling light point, coved and textured ceiling. Airing cupboard with slatted shelves containing hot water cylinder with immersion heater.
BEDROOM 2: 12'11" (3.93m) x 10'5" (3.18m). Front aspect UPVC double glazed window. Radiator, TV point, power points, ceiling light point, coved ceiling.
BEDROOM 3: 8'5" (2.57m) x 8'4" (2.55m). Front aspect UPVC double glazed window. Radiator, power points, ceiling light point, coved and textured ceiling.
BATHROOM: Side and rear aspect UPVC obscure double glazed windows. Panelled bath with Mira shower over, low level WC, wash hand basin in vanity unit. Ceiling light point, coved ceiling.
OUTSIDE:
Front: Small lawned area. Side gate and path to rear garden.
Parking: Off road parking for two vehicles.
Rear garden: Mostly laid to lawn with patio. Water tap. Bounded by fencing.
- COUNCIL TAXA payment made to your local authority in order to pay for local services like schools, libraries, and refuse collection. The amount you pay depends on the value of the property.Read more about council Tax in our glossary page.
- Band: C
- PARKINGDetails of how and where vehicles can be parked, and any associated costs.Read more about parking in our glossary page.
- Yes
- GARDENA property has access to an outdoor space, which could be private or shared.
- Yes
- ACCESSIBILITYHow a property has been adapted to meet the needs of vulnerable or disabled individuals.Read more about accessibility in our glossary page.
- Ask agent
Victoria Crescent, Poole, Dorset, BH12
Add an important place to see how long it'd take to get there from our property listings.
__mins driving to your place
Get an instant, personalised result:
- Show sellers you’re serious
- Secure viewings faster with agents
- No impact on your credit score
Your mortgage
Notes
Staying secure when looking for property
Ensure you're up to date with our latest advice on how to avoid fraud or scams when looking for property online.
Visit our security centre to find out moreDisclaimer - Property reference BAS250040. The information displayed about this property comprises a property advertisement. Rightmove.co.uk makes no warranty as to the accuracy or completeness of the advertisement or any linked or associated information, and Rightmove has no control over the content. This property advertisement does not constitute property particulars. The information is provided and maintained by Adams & Rose, Parkstone. Please contact the selling agent or developer directly to obtain any information which may be available under the terms of The Energy Performance of Buildings (Certificates and Inspections) (England and Wales) Regulations 2007 or the Home Report if in relation to a residential property in Scotland.
*This is the average speed from the provider with the fastest broadband package available at this postcode. The average speed displayed is based on the download speeds of at least 50% of customers at peak time (8pm to 10pm). Fibre/cable services at the postcode are subject to availability and may differ between properties within a postcode. Speeds can be affected by a range of technical and environmental factors. The speed at the property may be lower than that listed above. You can check the estimated speed and confirm availability to a property prior to purchasing on the broadband provider's website. Providers may increase charges. The information is provided and maintained by Decision Technologies Limited. **This is indicative only and based on a 2-person household with multiple devices and simultaneous usage. Broadband performance is affected by multiple factors including number of occupants and devices, simultaneous usage, router range etc. For more information speak to your broadband provider.
Map data ©OpenStreetMap contributors.








