
School Hill, Shortlanesend
- PROPERTY TYPE
- Plot 
- BEDROOMS
- 3 
- BATHROOMS
- 2 
- SIZE
- Ask agent 
Key features
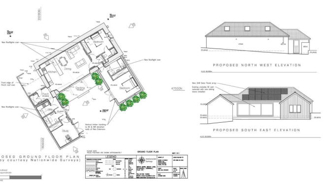
- Planning Consent For Barn Conversion
- PA17/05742 and updated PA20/10659
- Outskirts of Village Position
- Detached garage and parking
Description
This is a wonderful development opportunity to produce an individual character residence on the site of an existing barn. Planning consent has been granted for a detached 2 bedroom barn conversion with study, 3 bath/shower rooms and kitchen/Living/Dining room in a semi rural on the outskirts of Shortlanesend. Planning references are PA17/05742 and updated PA20/10659 for viewing on the Cornwall Planning Portal.
The existing plans provide for 2 bedrooms, one with an ensuite shower room, a family bathroom and further bathroom adjacent to a study. Arranged in a U-shape, there is a vaulted Living/Kitchen/Dining room central to the layout. The plans allow for the Living area with sliding doors that open to a private and sheltered courtyard style garden area. Adjacent to the property is a detached garage with parking space either side for 3 cars
LOCATION:
The property is on the fringes of the village of Shortlanesend just a short walk from the amenities, set by the quiet lanes that lead to the beautiful rural Newmills valley. It also has the benefit of providing a cut through to Treliske hospital, making it handy for anyone working there.
The village is conveniently located just 2 miles from the city of Truro and has a good cycle route to the city, the village links easily to the main A30 trunk road. The Forestry Commission woods of Idless are close by and ideal for dog walking, cycling, and exploring.
Shortlanesend is a small and rural village community, with an exceptional primary school, local shop with Post Office facility, vibrant village pub,village hall and a regular bus service.
Information:
Tenure: Freehold
Council tax band: TBC
Water Supply: Mains
Sewage: Mains available
Electricity: Mains
EPC: N/A
Anti-Money Laundering Compliance – Purchasers
In line with our regulatory obligations, we are required to obtain verified identification from all prospective purchasers prior to proceeding with a sale. Full details regarding the identification process will be provided once an offer has been made.
Proof of Finance – Purchasers
To comply with our regulations and ensure the integrity of the transaction, we must receive satisfactory proof of funds before a sale can be agreed. This requirement also helps to facilitate a smooth and timely completion.
School Hill, Shortlanesend
NEAREST STATIONS
Distances are straight line measurements from the centre of the postcode- Truro Station1.7 miles
- Perranwell Station5.1 miles


Notes
Disclaimer - Property reference S1456501. The information displayed about this property comprises a property advertisement. Rightmove.co.uk makes no warranty as to the accuracy or completeness of the advertisement or any linked or associated information, and Rightmove has no control over the content. This property advertisement does not constitute property particulars. The information is provided and maintained by Goundrys, Truro. Please contact the selling agent or developer directly to obtain any information which may be available under the terms of The Energy Performance of Buildings (Certificates and Inspections) (England and Wales) Regulations 2007 or the Home Report if in relation to a residential property in Scotland.
Map data ©OpenStreetMap contributors.







