4 bedroom detached house for sale
Belleville Drive, Oadby

- PROPERTY TYPE
Detached
- BEDROOMS
4
- BATHROOMS
2
- SIZE
1,700 sq ft
158 sq m
- TENUREDescribes how you own a property. There are different types of tenure - freehold, leasehold, and commonhold.Read more about tenure in our glossary page.
Freehold
Description
Accomodation;
This chain-free, four-bedroom detached home is positioned in one of Oadby’s most sought-after residential suburbs and has been carefully designed to provide a blend of comfort, space, and versatility. Set back from the road behind an impressive in-and-out driveway, the property immediately captures attention with its generous frontage and access to a large double garage, offering both convenience and kerb appeal.
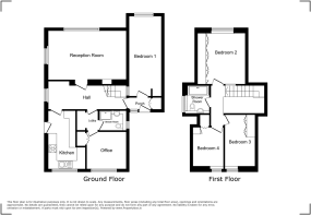
Stepping through the entrance porch, you are welcomed into a bright and inviting reception hall, a space that is not only practical as a point of entry but also versatile enough to be used as a further reception area. From here, the flow of the home leads into a spacious lounge, a room filled with natural light that creates an ideal setting for both everyday relaxation and family gatherings. The kitchen has been thoughtfully planned with ample work surfaces, generous storage, and a layout that allows for both functionality and sociability, making it the heart of the home.
The ground floor also provides excellent flexibility. A well-proportioned bedroom is located on this level, perfectly suited for use as a guest room, a children’s playroom, or an additional sitting room if desired. Adjacent to this is a contemporary shower room, designed with modern fittings for convenience and style. Completing the ground floor is a dedicated home office, offering a quiet and practical space for working remotely or managing household tasks.
The first floor continues to impress with three further bedrooms, each well-proportioned and versatile enough to meet the needs of a growing family. Whether used as children’s bedrooms, a master suite, or guest accommodation, each room has been arranged to maximise comfort and practicality. Serving the first floor is a modern shower room, providing stylish facilities in keeping with the home’s thoughtful design.
Externally, the property’s larger-than-average rear garden is a true highlight. The space begins with a substantial patio area, ideal for outdoor dining and entertaining, and extends to a wide, neatly maintained lawn. The garden benefits from an open outlook over Uplands Road Park, giving the sense of space and greenery while retaining a private and peaceful atmosphere. The combination of size, layout, and views makes this garden particularly appealing to families and those who enjoy outdoor living.
This is a rare opportunity to acquire a beautifully designed, detached family home in an enviable location. With its combination of spacious interiors, flexible living arrangements, generous gardens, and excellent local amenities, early viewing is strongly recommended to fully appreciate all that this home has to offer.
Location;
Situated in a prime location, the home benefits from close proximity to some of Oadby’s most highly regarded schools, making it especially attractive to families seeking educational excellence. Excellent bus links provide easy access into Leicester City Centre, where professional quarters, a bustling retail offering, and the mainline train station can be found. Everyday amenities are within easy reach at Oadby Town Centre along The Parade, where a wide range of shops, cafes, and services are available, complemented by three major supermarkets. For leisure and recreation, the property is ideally placed for Leicester Racecourse, the University of Leicester Botanic Gardens, Parklands Leisure Centre, and Glen Gorse Golf Club, offering a wealth of lifestyle opportunities close by.
- COUNCIL TAXA payment made to your local authority in order to pay for local services like schools, libraries, and refuse collection. The amount you pay depends on the value of the property.Read more about council Tax in our glossary page.
- Band: E
- PARKINGDetails of how and where vehicles can be parked, and any associated costs.Read more about parking in our glossary page.
- Yes
- GARDENA property has access to an outdoor space, which could be private or shared.
- Private garden
- ACCESSIBILITYHow a property has been adapted to meet the needs of vulnerable or disabled individuals.Read more about accessibility in our glossary page.
- Ask agent
Belleville Drive, Oadby
Add an important place to see how long it'd take to get there from our property listings.
__mins driving to your place
Get an instant, personalised result:
- Show sellers you’re serious
- Secure viewings faster with agents
- No impact on your credit score
Your mortgage
Notes
Staying secure when looking for property
Ensure you're up to date with our latest advice on how to avoid fraud or scams when looking for property online.
Visit our security centre to find out moreDisclaimer - Property reference S1450713. The information displayed about this property comprises a property advertisement. Rightmove.co.uk makes no warranty as to the accuracy or completeness of the advertisement or any linked or associated information, and Rightmove has no control over the content. This property advertisement does not constitute property particulars. The information is provided and maintained by Signature Homes. Powered by eXp UK, Leicester. Please contact the selling agent or developer directly to obtain any information which may be available under the terms of The Energy Performance of Buildings (Certificates and Inspections) (England and Wales) Regulations 2007 or the Home Report if in relation to a residential property in Scotland.
*This is the average speed from the provider with the fastest broadband package available at this postcode. The average speed displayed is based on the download speeds of at least 50% of customers at peak time (8pm to 10pm). Fibre/cable services at the postcode are subject to availability and may differ between properties within a postcode. Speeds can be affected by a range of technical and environmental factors. The speed at the property may be lower than that listed above. You can check the estimated speed and confirm availability to a property prior to purchasing on the broadband provider's website. Providers may increase charges. The information is provided and maintained by Decision Technologies Limited. **This is indicative only and based on a 2-person household with multiple devices and simultaneous usage. Broadband performance is affected by multiple factors including number of occupants and devices, simultaneous usage, router range etc. For more information speak to your broadband provider.
Map data ©OpenStreetMap contributors.




