Haverstock Hill, Chalk Farm, London

- PROPERTY TYPE
Apartment
- BEDROOMS
2
- BATHROOMS
2
- SIZE
616 sq ft
57 sq m
Key features
- Elegant Period Conversion
- Long Lease 991 Years
- Two Double Bedrooms
- Two Bathrooms
- Oversized Bay Window
- Raised Ground Floor
- Chalk Farm Tube Station 0.2m
- Primrose Hill 0.5m
- Easy Reach of Cafés & Shops
Description
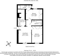
The apartment is arranged across approximately 616 sq.ft and offers a well-balanced layout. The generous living room is filled with natural light through a south-west facing sash window, while the modern kitchen provides fitted units, some integrated appliances, and plumbing for a washing machine.
A small hallway leads to the principal bedroom with fitted wardrobes and en suite shower room. The second double bedroom also features fitted storage and space for additional furniture, served by a separate family bathroom with bathtub.
Perfectly positioned, the property is just 0.2 miles from Chalk Farm Underground (Northern Line) and 0.4 miles from Belsize Park Underground, providing excellent connections into Central London. The open green spaces of Primrose Hill are just 0.5m, offering panoramic views across central London.
Locally, there's an excellent selection of cafés, restaurants, and boutique shops off Chalk Farm, Belsize Park, and England's Lane all within walking distance. The world-famous Roundhouse venue is also close by, providing live music, arts, and cultural events right on your doorstep.
Leasehold - 991 Years Remaining 999 years from 16/08/2017
Service Charge - £1,500 P/A
Service Charge Review Period - Annually
Ground Rent - N/A
Ground Rent Review Period - N/A
Council Tax Band - D Camden Borough Council
- COUNCIL TAXA payment made to your local authority in order to pay for local services like schools, libraries, and refuse collection. The amount you pay depends on the value of the property.Read more about council Tax in our glossary page.
- Band: D
- PARKINGDetails of how and where vehicles can be parked, and any associated costs.Read more about parking in our glossary page.
- Ask agent
- GARDENA property has access to an outdoor space, which could be private or shared.
- Ask agent
- ACCESSIBILITYHow a property has been adapted to meet the needs of vulnerable or disabled individuals.Read more about accessibility in our glossary page.
- Ask agent
Haverstock Hill, Chalk Farm, London
Add an important place to see how long it'd take to get there from our property listings.
__mins driving to your place
Get an instant, personalised result:
- Show sellers you’re serious
- Secure viewings faster with agents
- No impact on your credit score
Your mortgage
Notes
Staying secure when looking for property
Ensure you're up to date with our latest advice on how to avoid fraud or scams when looking for property online.
Visit our security centre to find out moreDisclaimer - Property reference 102708043227. The information displayed about this property comprises a property advertisement. Rightmove.co.uk makes no warranty as to the accuracy or completeness of the advertisement or any linked or associated information, and Rightmove has no control over the content. This property advertisement does not constitute property particulars. The information is provided and maintained by David Astburys, Hampstead. Please contact the selling agent or developer directly to obtain any information which may be available under the terms of The Energy Performance of Buildings (Certificates and Inspections) (England and Wales) Regulations 2007 or the Home Report if in relation to a residential property in Scotland.
*This is the average speed from the provider with the fastest broadband package available at this postcode. The average speed displayed is based on the download speeds of at least 50% of customers at peak time (8pm to 10pm). Fibre/cable services at the postcode are subject to availability and may differ between properties within a postcode. Speeds can be affected by a range of technical and environmental factors. The speed at the property may be lower than that listed above. You can check the estimated speed and confirm availability to a property prior to purchasing on the broadband provider's website. Providers may increase charges. The information is provided and maintained by Decision Technologies Limited. **This is indicative only and based on a 2-person household with multiple devices and simultaneous usage. Broadband performance is affected by multiple factors including number of occupants and devices, simultaneous usage, router range etc. For more information speak to your broadband provider.
Map data ©OpenStreetMap contributors.




