Schofield Street, Oldham, Greater Manchester, OL2
- SIZE AVAILABLE
4,000-15,000 sq ft
372-1,394 sq m
- SECTOR
Light industrial facility to lease
- USE CLASSUse class orders: B2 General Industrial and B8 Storage and Distribution
B2, B8
Lease details
- Lease available date:
- Ask agent
- Lease type:
- Long term
- Furnish type:
- Unfurnished
Key features
- 4000 - 15,000 sq ft warehouse space
- Excellent transport connectivity
- Can be split into 3 separate units
- Suitable for investors or owner occupiers
- Sought-after commercial area
- Prime Royton town centre location
- Full 3-phase power supply
- Strong rental income potential
- Flexible layout for multiple uses
Description
Vangard Works - Flexible Workshop, Warehouse & Manufacturing Space To Let in Royton, Oldham
A substantial and versatile industrial property offering between 4,000 sq ft and 15,010 sq ft (371.6 - 1,394.5 sq m) of accommodation across basement, ground and first-floor levels. Situated on a 0.10-hectare (0.25-acre) site, Vangard Works provides rare and adaptable space suitable for a wide variety of occupiers, from manufacturers and distributors to storage, trade counter or creative industries.
Currently arranged as a long-established manufacturing and powder coating facility, the building can be let as a whole or split into smaller self-contained sections starting from 4,000 sq ft, allowing maximum flexibility for incoming tenants.
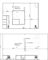
Accommodation Overview
Basement - 25.63 sq m (276 sq ft)
Ancillary storage with restricted access.
Ground Floor - 839.81 sq m (9,040 sq ft)
Large open-plan workshop with established plant, machinery, gas-fired ovens, spray booths, workbenches, and ancillary office/staff facilities.
First Floor - 529.09 sq m (5,695 sq ft)
Mainly vacant storage with timber flooring, vaulted ceilings, and some office suites. Offers potential for additional workshop space, studio, or alternative uses.
Total accommodation available: 4,000 - 15,010 sq ft (371.6 - 1,394.5 sq m)
Construction & Features
Traditional masonry brick construction with steel truss roof and slate tile covering.
Combination of single-glazed timber windows and uPVC double-glazed windows.
Timber loading doors for practical access.
Flexible floor plan suitable for industrial, warehouse, storage, distribution, or manufacturing use.
The property is in a generally fair state of repair and would benefit from modernisation, offering tenants the opportunity to adapt and tailor the space to suit their operational needs.
Tenure & Terms
To Let - available on flexible lease terms.
Units available individually from 4,000 sq ft or as a whole up to 15,010 sq ft.
Rent on application.
Key Features
Flexible industrial/workshop space to let.
Units from 4,000 - 15,010 sq ft.
Located in Royton town centre, Oldham, Greater Manchester.
Suitable for manufacturing, storage, warehouse, or distribution.
Ground floor fully equipped with workshop areas, ovens, spray booths, and staff facilities.
First floor with storage, offices, and conversion potential.
Strong transport links - close to A671, A627(M), and M62.
Options to lease part or whole of the building.
Rare opportunity in a sought-after commercial location.
Location
Vangard Works is located in the heart of Royton, Oldham (Greater Manchester), providing excellent accessibility and visibility.
Road connections: Easy access to Rochdale Road (A671), the A627(M), and the M62 motorway, linking the property to Manchester, Leeds, and beyond.
Public transport: Regular bus services connect Royton to Oldham and surrounding areas.
Local amenities: Situated in a town centre setting with shops, services, and residential areas nearby, creating strong demand for both commercial and light industrial use.
Opportunity
Vangard Works provides occupiers with a rare opportunity to lease a large, flexible industrial building in a prime Greater Manchester location. Whether taken as a whole or split into smaller units, the property offers the versatility to meet a wide range of operational needs.
The space is well-suited to:
Manufacturers requiring workshop space with existing plant and machinery.
Distributors & storage operators seeking centrally located accommodation.
Creative industries looking for characterful workspace with vaulted ceilings.
Trade counter or mixed-use occupiers needing adaptable premises with strong road connectivity.
Summary
4,000 - 15,010 sq ft available to let
Flexible leasing options - whole or part
Royton, Oldham - strong transport connectivity
Industrial, warehouse, storage, or manufacturing use
Adaptable space with offices and storage
Rare availability in a prime commercial location
Schofield Street, Oldham, Greater Manchester, OL2
NEAREST STATIONS
Distances are straight line measurements from the centre of the postcode- Shaw & Crompton Tram Stop1.5 miles
- Derker Tram Stop1.7 miles
- Westwood Tram Stop1.9 miles
Notes
Disclaimer - Property reference ROYTONLET. The information displayed about this property comprises a property advertisement. Rightmove.co.uk makes no warranty as to the accuracy or completeness of the advertisement or any linked or associated information, and Rightmove has no control over the content. This property advertisement does not constitute property particulars. The information is provided and maintained by NQ Commercial Limited, Manchester. Please contact the selling agent or developer directly to obtain any information which may be available under the terms of The Energy Performance of Buildings (Certificates and Inspections) (England and Wales) Regulations 2007 or the Home Report if in relation to a residential property in Scotland.
Map data ©OpenStreetMap contributors.




