4 bedroom detached house for sale
Plot 5, Pelham Road, Braughing, SG11

- PROPERTY TYPE
Detached
- BEDROOMS
4
- BATHROOMS
2
- SIZE
Ask agent
- TENUREDescribes how you own a property. There are different types of tenure - freehold, leasehold, and commonhold.Read more about tenure in our glossary page.
Freehold
Description
Key Features
Detached four bedroom family home
Exclusive development of only five homes
Attractive countryside views
Contemporary kitchen with granite worktops and fully integrated appliances
Underfloor heating
Stylish bathrooms finished to a high standard
Private driveway and double garage
10-year NHBC warranty
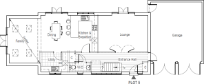
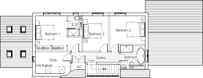
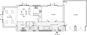
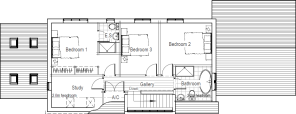
Accommodation
A welcoming entrance hall leads to well-proportioned living spaces designed for modern family life. The contemporary fitted kitchen features granite worktops and integrated appliances, with adjoining dining/family space ideal for entertaining. Additional ground floor accommodation includes a generous reception room, utility room and guest cloakroom. The first floor offers four bedrooms and beautifully appointed bath/shower rooms with quality fittings and tiling.
Outside
Set within a small, private development, the property benefits from countryside views, a private driveway providing ample off-street parking, and a double garage.
Location
Braughing is a desirable East Hertfordshire village renowned for its community and scenic setting. Local amenities include three popular pubs - The Axe & Compasses, The Brown Bear and The Golden Fleece - along with superb country walks. Pearce's Farm Shop & Café is close by for everyday produce and brunch, and East Herts Golf Club at Hamels Park is within easy reach. The larger towns of Bishop's Stortford, Ware and Hertford are a short drive away, each offering rail services to London from around 45 minutes (route and time dependent). Braughing was awarded Hertfordshire "Village of the Year" (2012).
Tenure: Freehold
Warranty: 10-year NHBC
Viewing: Strictly by appointment with Morgan Alexander Estate Agents.
- COUNCIL TAXA payment made to your local authority in order to pay for local services like schools, libraries, and refuse collection. The amount you pay depends on the value of the property.Read more about council Tax in our glossary page.
- Ask agent
- PARKINGDetails of how and where vehicles can be parked, and any associated costs.Read more about parking in our glossary page.
- Garage,Driveway,Private
- GARDENA property has access to an outdoor space, which could be private or shared.
- Private garden,Rear garden,Back garden
- ACCESSIBILITYHow a property has been adapted to meet the needs of vulnerable or disabled individuals.Read more about accessibility in our glossary page.
- Ask agent
Energy performance certificate - ask agent
Plot 5, Pelham Road, Braughing, SG11
Add an important place to see how long it'd take to get there from our property listings.
__mins driving to your place
Get an instant, personalised result:
- Show sellers you’re serious
- Secure viewings faster with agents
- No impact on your credit score
Your mortgage
Notes
Staying secure when looking for property
Ensure you're up to date with our latest advice on how to avoid fraud or scams when looking for property online.
Visit our security centre to find out moreDisclaimer - Property reference MAH00150021295531201915. The information displayed about this property comprises a property advertisement. Rightmove.co.uk makes no warranty as to the accuracy or completeness of the advertisement or any linked or associated information, and Rightmove has no control over the content. This property advertisement does not constitute property particulars. The information is provided and maintained by Morgan Alexander, Hertford. Please contact the selling agent or developer directly to obtain any information which may be available under the terms of The Energy Performance of Buildings (Certificates and Inspections) (England and Wales) Regulations 2007 or the Home Report if in relation to a residential property in Scotland.
*This is the average speed from the provider with the fastest broadband package available at this postcode. The average speed displayed is based on the download speeds of at least 50% of customers at peak time (8pm to 10pm). Fibre/cable services at the postcode are subject to availability and may differ between properties within a postcode. Speeds can be affected by a range of technical and environmental factors. The speed at the property may be lower than that listed above. You can check the estimated speed and confirm availability to a property prior to purchasing on the broadband provider's website. Providers may increase charges. The information is provided and maintained by Decision Technologies Limited. **This is indicative only and based on a 2-person household with multiple devices and simultaneous usage. Broadband performance is affected by multiple factors including number of occupants and devices, simultaneous usage, router range etc. For more information speak to your broadband provider.
Map data ©OpenStreetMap contributors.






