
Blackbird Row, Belper, Derbyshire

- PROPERTY TYPE
Cottage
- BEDROOMS
3
- BATHROOMS
1
- SIZE
1,424 sq ft
132 sq m
- TENUREDescribes how you own a property. There are different types of tenure - freehold, leasehold, and commonhold.Read more about tenure in our glossary page.
Freehold
Key features
- Impressive Extended Stone Cottage
- Superb Countryside Views
- UPVC Sash Windows, Gas Central Heating & Underfloor Heating
- Lounge & Superb Open Plan Kitchen/Dining with Built-in Appliances
- Tanked Basement Room - Study/Cinema Room
- Three Bedrooms - Family Bathroom - Downstairs Cloakroom/W.C.
- South Facing Garden & Easy Car Parking
- Boarded Roof Space - Loft Conversion (subject to planning permission)
- Located on Between Holbrook and Belper - Easy Access To Duffield, Derby, A38 & M1
- Character Features - No Chain Involved
Description
The Location - The property is located close to Holbrook which is convenient for other locations such as Duffield, Little Eaton and Belper. The historic village of Holbrook boasts two inns, reputable primary school, church and shop. The thriving market town of Belper is situated 2 miles to the North and provides an excellent range of amenities including shops, schools at all levels, railway station and recreational facilities. The City of Derby lies approximately 6 miles to the south and there is fast access onto the A38 which leads to the M1 motorway. Local recreational facilities close by include three noted Golf courses and country clubs at Breadsall Priory, Horsley Lodge and Morley Hayes. The nearby open countryside provides some delightful scenery and countryside walks.
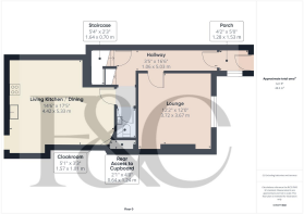
Accommodation -
Ground Floor -
Entrance Porch - 1.53 x 1.28 (5'0" x 4'2") - With entrance door with inset window with leaded finish, radiator, quarry tiled flooring, sealed unit double glazed window, dado rail and half glazed internal door with stained glass and leaded finish opening into hallway.
Hall - 5.03 x 1.06 (16'6" x 3'5" ) - With deep skirting boards and architraves, high ceiling, dado rail, tiled effect flooring, radiator, spotlights to ceiling, staircase leading to first floor and internal oak veneer door with chrome fittings opening onto staircase which leads to the lower level accommodation.
Cloakroom - 1.57 x 1.01 (5'1" x 3'3") - With partly half pedestal wash handbasin, low flush WC, tile flooring, partly tiled walls, spotlights to ceiling and extractor fan.
Lounge - 3.72 x 3.67 (12'2" x 12'0") - With fireplace with surrounds, living flame gas fire and raised tile hearth, solid wood flooring, deep skirting boards and architraves, high ceiling, column style radiator, double glazed sash style window with fitted blind with aspect to front, countryside views and internal oak veneer door with chrome fittings.
Living Kitchen/Dining Room - 5.33 x 4.42 (17'5" x 14'6") -
Dining Area - With tile flooring with underfloor heating, built-in storage cupboard, built-in display alcove with spotlight and open space into kitchen area.
Kitchen Area - With one and a half sink unit with chrome mixer tap, wall and base fitted units with attractive matching worktops, built-in four ring gas hob with concealed extractor hood over, built-in electric fan assisted oven, built-in combination microwave oven with warming plate drawer, integrated fridge/freezer, integrated washing machine/dryer, integrated dishwasher, tile flooring, exposed brick wall, feature double glazed illuminated lantern ceiling window, spotlights to ceiling, concealed worktop lights, matching fitted kitchen island again with matching worktops, fitted base cupboards underneath and wine cooler.
Lower Level Accommodation -
Study/Cinema Room - 3.31 x 2.87 (10'10" x 9'4") - Fully tanked with power and lighting, exposed vaulted brick ceiling, plastered, skirting boards and staircase.
First Floor Landing - 2.74 x 2.00 (8'11" x 6'6") - With radiator and access to roof space.
Bedroom One - 3.69 x 3.20 (12'1" x 10'5") - With exposed wood floors, deep skirting boards and architraves, high ceiling, column star radiator, countryside views, double glazed sash window to front and internal oak veneer door with chrome fittings.
Bedroom Two - 3.96 x 2.28 (12'11" x 7'5") - With built-in cupboard housing the Vaillant boiler, radiator, deep skirting boards and architraves, high ceiling, double glazed window to rear and internal oak veneer door with chrome fittings.
Bedroom Three - 2.65 x 1.79 (8'8" x 5'10") - With deep skirting boards and architraves, high ceiling, radiator, countryside views, double glazed sash style window to front and internal oak veneer door with chrome fittings.
Family Bathroom - 2.74 x 1.38 (8'11" x 4'6") - With bath with chrome shower over with shower screen door, fitted wash basin with fitted base cupboard underneath, Low level WC, tile splashbacks, heated chrome tower rail/radiator, spotlights to ceiling, extractor fan, double glazed window and internal oak veneer door with chrome fittings.
Roof Space - 7.42 x 5.17 (24'4" x 16'11") - Accessed via an aluminium loft ladder, with power, lighting, boarding, sealed unit double glazed window to rear and offering potential for a loft conversion (subject to planning permission)
Garden - To the front of the property is a pleasant, south facing, manageable garden enjoying views over open fields and countryside to front.
Rear Access - From the living kitchen/dining room door is rear access with hot and cold tap.
Car Parking - There is potential off-road car parking & On Street car parking.
Council Tax Band B -
Brochures
Blackbird Row, Belper, Derbyshire Brochure- COUNCIL TAXA payment made to your local authority in order to pay for local services like schools, libraries, and refuse collection. The amount you pay depends on the value of the property.Read more about council Tax in our glossary page.
- Band: B
- PARKINGDetails of how and where vehicles can be parked, and any associated costs.Read more about parking in our glossary page.
- Yes
- GARDENA property has access to an outdoor space, which could be private or shared.
- Yes
- ACCESSIBILITYHow a property has been adapted to meet the needs of vulnerable or disabled individuals.Read more about accessibility in our glossary page.
- Ask agent
Blackbird Row, Belper, Derbyshire
Add an important place to see how long it'd take to get there from our property listings.
__mins driving to your place
Get an instant, personalised result:
- Show sellers you’re serious
- Secure viewings faster with agents
- No impact on your credit score



Your mortgage
Notes
Staying secure when looking for property
Ensure you're up to date with our latest advice on how to avoid fraud or scams when looking for property online.
Visit our security centre to find out moreDisclaimer - Property reference 34199392. The information displayed about this property comprises a property advertisement. Rightmove.co.uk makes no warranty as to the accuracy or completeness of the advertisement or any linked or associated information, and Rightmove has no control over the content. This property advertisement does not constitute property particulars. The information is provided and maintained by Fletcher & Company, Duffield. Please contact the selling agent or developer directly to obtain any information which may be available under the terms of The Energy Performance of Buildings (Certificates and Inspections) (England and Wales) Regulations 2007 or the Home Report if in relation to a residential property in Scotland.
*This is the average speed from the provider with the fastest broadband package available at this postcode. The average speed displayed is based on the download speeds of at least 50% of customers at peak time (8pm to 10pm). Fibre/cable services at the postcode are subject to availability and may differ between properties within a postcode. Speeds can be affected by a range of technical and environmental factors. The speed at the property may be lower than that listed above. You can check the estimated speed and confirm availability to a property prior to purchasing on the broadband provider's website. Providers may increase charges. The information is provided and maintained by Decision Technologies Limited. **This is indicative only and based on a 2-person household with multiple devices and simultaneous usage. Broadband performance is affected by multiple factors including number of occupants and devices, simultaneous usage, router range etc. For more information speak to your broadband provider.
Map data ©OpenStreetMap contributors.






