
Sussex Road, Knaphill, Woking, Surrey, GU21

- PROPERTY TYPE
Maisonette
- BEDROOMS
2
- BATHROOMS
1
- SIZE
744 sq ft
69 sq m
Key features
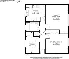
- First Floor Maisonette
- Two Bedrooms
- Large Living/Dining Room
- Modern Three Piece Bathroom
- Loft
- Garage
- Close to Local Amenities
Description
The property is well presented throughout and enjoys the use of two generously sized bedrooms, both benefitting from the use of built in wardrobes. A bright and spacious living room serves as the main reception area, boasting wood effect laminate flooring and ample space for a dining table.
The kitchen is impressively sized for a property of this type and is well equipped with a range of eye and base level units, a breakfast bar with seating for two, space for a range cooker and space for additional appliances.
A modern three piece bathroom completes the accommodation, featuring white sanitary ware, stylish wall tiling, and a large mirror.
Additional benefits include access to a loft providing useful storage space and a front garden laid to lawn with attractive flower borders.
Conveniently located for local amenities and excellent transport links, the property provides easy access to both Woking and Brookwood mainline stations.
Property Information
Lease Length: 944 years
Service Charge: NA
Ground Rent: £10.00pa
Location
Knaphill village has a vibrant range of shops, pubs, restaurants and a Post Office. For more comprehensive shopping Sainsbury's superstore is approximately quarter of a mile away. For commuting, nearby Brookwood station provides a regular service direct to Waterloo, Woking and Guildford. For those who enjoy the outdoors there is Stafford lake which is ideal for dog walking and nearby Brookwood Country Park ideal for a family stroll on a Sunday.
Brochures
Particulars- COUNCIL TAXA payment made to your local authority in order to pay for local services like schools, libraries, and refuse collection. The amount you pay depends on the value of the property.Read more about council Tax in our glossary page.
- Band: C
- PARKINGDetails of how and where vehicles can be parked, and any associated costs.Read more about parking in our glossary page.
- Garage,Off street
- GARDENA property has access to an outdoor space, which could be private or shared.
- Yes
- ACCESSIBILITYHow a property has been adapted to meet the needs of vulnerable or disabled individuals.Read more about accessibility in our glossary page.
- Ask agent
Sussex Road, Knaphill, Woking, Surrey, GU21
Add an important place to see how long it'd take to get there from our property listings.
__mins driving to your place
Get an instant, personalised result:
- Show sellers you’re serious
- Secure viewings faster with agents
- No impact on your credit score
Your mortgage
Notes
Staying secure when looking for property
Ensure you're up to date with our latest advice on how to avoid fraud or scams when looking for property online.
Visit our security centre to find out moreDisclaimer - Property reference KNA250384. The information displayed about this property comprises a property advertisement. Rightmove.co.uk makes no warranty as to the accuracy or completeness of the advertisement or any linked or associated information, and Rightmove has no control over the content. This property advertisement does not constitute property particulars. The information is provided and maintained by Seymours Estate Agents, Knaphill. Please contact the selling agent or developer directly to obtain any information which may be available under the terms of The Energy Performance of Buildings (Certificates and Inspections) (England and Wales) Regulations 2007 or the Home Report if in relation to a residential property in Scotland.
*This is the average speed from the provider with the fastest broadband package available at this postcode. The average speed displayed is based on the download speeds of at least 50% of customers at peak time (8pm to 10pm). Fibre/cable services at the postcode are subject to availability and may differ between properties within a postcode. Speeds can be affected by a range of technical and environmental factors. The speed at the property may be lower than that listed above. You can check the estimated speed and confirm availability to a property prior to purchasing on the broadband provider's website. Providers may increase charges. The information is provided and maintained by Decision Technologies Limited. **This is indicative only and based on a 2-person household with multiple devices and simultaneous usage. Broadband performance is affected by multiple factors including number of occupants and devices, simultaneous usage, router range etc. For more information speak to your broadband provider.
Map data ©OpenStreetMap contributors.





