Nithsdale Avenue, Market Harborough, LE16

- PROPERTY TYPE
End of Terrace
- BEDROOMS
4
- BATHROOMS
1
- SIZE
Ask agent
- TENUREDescribes how you own a property. There are different types of tenure - freehold, leasehold, and commonhold.Read more about tenure in our glossary page.
Freehold
Key features
- Edwardian Family Home
- Four Good Sized Bedrooms
- Superb 18'5'' Kitchen/Diner/Family Room
- Snug
- Retains Period Charm & Character
- Attractive Well Maintained Garden
- Stone's Throw from the Town Centre
- Ideal For Commuters into London
- Viewing Highly Recommended
Description
This distinguished period property exudes character and charm, providing an inviting atmosphere that appeals to discerning buyers.
Nithsdale Avenue enjoys a superb location within easy walking distance of the town centre and a range of amenities, including Sainsbury's, The Range, and Lidl. Market Harborough train station, offering frequent services to St. Pancras with travel times to London under one hour, is also conveniently nearby-making this an ideal location for commuters.
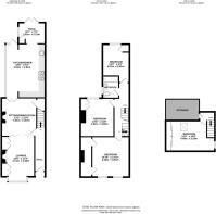
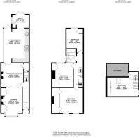
The well-presented home welcomes you via a bright entrance hallway featuring a wooden floor. The front reception room benefits from a bay window, cornicing, feature working fireplace, and connects seamlessly through double wooden doors to a second spacious reception area with high ceilings, wood flooring, and a decorative surround with tiled hearth. Beyond, further wooden doors open into the central kitchen space.
The kitchen/diner is truly impressive, equipped with a range of fitted cabinetry, an Iroko wood worksurface, and integrated fridge/freezer. Generously proportioned, the dining area accommodates an eight-seater table comfortably. Roof and side windows enhance natural light, creating a bright, enjoyable space.
An archway leads to a versatile snug area, (which the new owners could possibly change into a utility area) French doors opening onto the rear garden.
Upstairs, carpeted stairs ascend to the first floor, where three bedrooms and the family bathroom are located. Further stairs lead to the second-floor principal bedroom which comfortable accommodates the sellers super-king size bed, which is bright and elegant, featuring side window and an additional roof window.
Completing this family home is a well-maintained, thoughtfully designed garden with rear gate access to Stamford Close.
Residents benefit from the opportunity to purchase a parking permit from Harborough District Council for an annual fee of £40.00, with the ability to register two vehicles per permit.
EPC: E
Council Tax band: C
Important Information;
Whilst every attempt has been made to ensure the accuracy of the floor plan and details contained here, measurements of doors, windows and rooms are approximate and no responsibility is taken for any error omission or mis-statement. These plans are for representation purposes only and should be used as such by any prospective purchaser. The services, systems and appliances listed in this specification have not been tested and no guarantee as to their operating ability or their efficiency can be given. These property details do not constitute any part of the offer or contract and all measurements are approximate. It should not be assumed that this property has all the necessary Planning, Building Regulation or other consents.
ANTI MONEY LAUNDERING REGULATIONS: Intending purchasers will be asked to produce identification documentation at a later stage and we would ask for your co-operation in order that there will be no delay in agreeing the sale. Further details can be found on our website harboroughestates.com
- COUNCIL TAXA payment made to your local authority in order to pay for local services like schools, libraries, and refuse collection. The amount you pay depends on the value of the property.Read more about council Tax in our glossary page.
- Ask agent
- PARKINGDetails of how and where vehicles can be parked, and any associated costs.Read more about parking in our glossary page.
- Yes
- GARDENA property has access to an outdoor space, which could be private or shared.
- Yes
- ACCESSIBILITYHow a property has been adapted to meet the needs of vulnerable or disabled individuals.Read more about accessibility in our glossary page.
- Ask agent
Nithsdale Avenue, Market Harborough, LE16
Add an important place to see how long it'd take to get there from our property listings.
__mins driving to your place
Get an instant, personalised result:
- Show sellers you’re serious
- Secure viewings faster with agents
- No impact on your credit score
Your mortgage
Notes
Staying secure when looking for property
Ensure you're up to date with our latest advice on how to avoid fraud or scams when looking for property online.
Visit our security centre to find out moreDisclaimer - Property reference Nithsdale. The information displayed about this property comprises a property advertisement. Rightmove.co.uk makes no warranty as to the accuracy or completeness of the advertisement or any linked or associated information, and Rightmove has no control over the content. This property advertisement does not constitute property particulars. The information is provided and maintained by Harborough Estates, Market Harborough. Please contact the selling agent or developer directly to obtain any information which may be available under the terms of The Energy Performance of Buildings (Certificates and Inspections) (England and Wales) Regulations 2007 or the Home Report if in relation to a residential property in Scotland.
*This is the average speed from the provider with the fastest broadband package available at this postcode. The average speed displayed is based on the download speeds of at least 50% of customers at peak time (8pm to 10pm). Fibre/cable services at the postcode are subject to availability and may differ between properties within a postcode. Speeds can be affected by a range of technical and environmental factors. The speed at the property may be lower than that listed above. You can check the estimated speed and confirm availability to a property prior to purchasing on the broadband provider's website. Providers may increase charges. The information is provided and maintained by Decision Technologies Limited. **This is indicative only and based on a 2-person household with multiple devices and simultaneous usage. Broadband performance is affected by multiple factors including number of occupants and devices, simultaneous usage, router range etc. For more information speak to your broadband provider.
Map data ©OpenStreetMap contributors.





