Skip to content

Ollerton Road, Tuxford, Newark, NG22 0PQ

£28,131 pcm
£337,575 pa

£7.00 per sq ft

Business rates & charges may apply

Barnsdales Ltd - Commercial, Nottingham
SIZE AVAILABLE

48,225 sq ft

4,480 sq m

SECTOR

Light industrial facility to lease

Lease details

Lease available date:
Now
Lease type:
Long term

Key features

  • High Quality Office Investement
  • Sought After Location
  • Fringe of town location
  • Established business park

Description

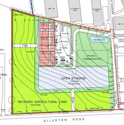
New development of 3 x industrial units of 16,075 sq ft each which can be combined to create one unit of 48,225 sq ft or possibly one unit of 32,150 sq ft on this well located industrial estate just of the A1 at Tuxford, Nottinghamshire.

Prominent road side location.

Ready to occupy early 2026.

The units are located off Ollerton Road in Tuxford Nottinghamshire just a short distance from the A1 which gives easy access to the M18, M1 and M180

Viewings strictly by prior appointment with the agents:

Jason Barnsdale MRICS
Barnsdales - Chartered Surveyors
Tel:

Ollerton Road, Tuxford, Newark, NG22 0PQ

NEAREST STATIONS

Distances are straight line measurements from the centre of the postcode
  • Retford Station5.8 miles

About Barnsdales Ltd - Commercial, Nottingham

6th Floor City Gate East Tollhouse Hill Nottingham NG1 5FS

Notes

These notes are private, only you can see them.

Disclaimer - Property reference 318477-2. The information displayed about this property comprises a property advertisement. Rightmove.co.uk makes no warranty as to the accuracy or completeness of the advertisement or any linked or associated information, and Rightmove has no control over the content. This property advertisement does not constitute property particulars. The information is provided and maintained by Barnsdales Ltd - Commercial, Nottingham. Please contact the selling agent or developer directly to obtain any information which may be available under the terms of The Energy Performance of Buildings (Certificates and Inspections) (England and Wales) Regulations 2007 or the Home Report if in relation to a residential property in Scotland.

Map data ©OpenStreetMap contributors.