Rolleston On Dove, Burton On Trent

- PROPERTY TYPE
Detached Bungalow
- BEDROOMS
3
- BATHROOMS
2
- SIZE
Ask agent
- TENUREDescribes how you own a property. There are different types of tenure - freehold, leasehold, and commonhold.Read more about tenure in our glossary page.
Freehold
Description
The BRAMBLE is a two storey detached dormer bungalow, offering well appointed and spacious living accommodation, on a generous garden plot; with a side driveway and GARAGE. The accommodation comprises: Entrance hallway, rear kitchen/diner with integrated appliances (AEG oven & hob, Zanussi fridge/freezer)) and a patio door opening onto the garden. Spacious front lounge with a bay window. Rear Master bedroom with fitted wardrobes and the main bathroom. On the first floor there are two further double bedrooms and a stylish second bathroom.
The property has an AIR SOURCE HEAT PUMP and UNDER FLOOR HEATING to the ground floor; along with double glazing.
If you would like to see this home for yourself, feel free to let us know when you are available. We are open 7 days a week.
Reservation fees apply.
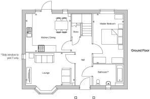
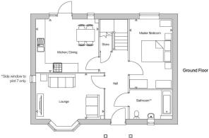
Entrance Hallway -
Kitchen/Diner - 4.11 x 3.51 (13'5" x 11'6") -
Lounge - 4.52 x 3.00 (+bay) (14'9" x 9'10" (+bay)) -
Master Bedroom - 4.62 x 2.85 (15'1" x 9'4") -
Bathroom - 2.85 x 1.90 (9'4" x 6'2") -
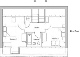
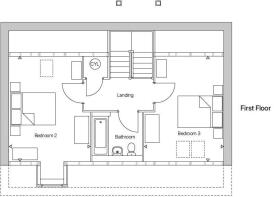
First Floor Landing -
Bedroom 2 - 4.45 x 3.44>3.06 (14'7" x 11'3">10'0") -
Bedroom 3 - 4.45 x 3.36>2.88 (14'7" x 11'0">9'5") -
Bathroom - 2.11 x 1.89 (6'11" x 6'2") -
Driveway & Garage -
Rear Garden -
Estate Management Fee - We understand that this property is subject to an annual estate management fee of £397.37. We always recommend buyers to get their legal adviser to verify these details prior to exchange of contracts.
Draft Sales Details - These sales details have been submitted to our clients and are awaiting approval by them - they are distributed on this basis and are subject to change.
Important Information - These sales details are produced in good faith with the approval of the vendors and are given as a guide only. If there is any point which is of specific importance to you, please check with us first, particularly if travelling some distance to view the property. Please note that we have not tested any of the appliances or systems at this property and cannot verify them to be in working order. Unless otherwise stated fitted items are excluded from the sale, such as carpets, curtains, light fittings and sheds. These sales details, the descriptions and the measurements therein do not form part of any contract and whilst every effort is made to ensure accuracy this cannot be guaranteed. Nothing in these details shall be deemed to be a statement that the property is in good structural condition or otherwise. Purchasers should satisfy themselves on such matters prior to purchase. Any areas, measurements or distances are given as a guide only. Photographs are taken with a wide angle digital camera. Nothing herein contained shall be a warranty or condition and neither the vendor or ourselves will be liable to the purchaser in respect of any mis-statement or misrepresentation made at or before the date hereof by the vendor, agents or otherwise. Any floor plan included is intended as a guide layout only. Dimensions are approximate. Do Not Scale.
Brochures
Rolleston On Dove, Burton On TrentBrochure- COUNCIL TAXA payment made to your local authority in order to pay for local services like schools, libraries, and refuse collection. The amount you pay depends on the value of the property.Read more about council Tax in our glossary page.
- Band: TBC
- PARKINGDetails of how and where vehicles can be parked, and any associated costs.Read more about parking in our glossary page.
- Garage
- GARDENA property has access to an outdoor space, which could be private or shared.
- Yes
- ACCESSIBILITYHow a property has been adapted to meet the needs of vulnerable or disabled individuals.Read more about accessibility in our glossary page.
- Ask agent
Energy performance certificate - ask agent
Rolleston On Dove, Burton On Trent
Add an important place to see how long it'd take to get there from our property listings.
__mins driving to your place
Get an instant, personalised result:
- Show sellers you’re serious
- Secure viewings faster with agents
- No impact on your credit score
Your mortgage
Notes
Staying secure when looking for property
Ensure you're up to date with our latest advice on how to avoid fraud or scams when looking for property online.
Visit our security centre to find out moreDisclaimer - Property reference 34095021. The information displayed about this property comprises a property advertisement. Rightmove.co.uk makes no warranty as to the accuracy or completeness of the advertisement or any linked or associated information, and Rightmove has no control over the content. This property advertisement does not constitute property particulars. The information is provided and maintained by Hopkins & Dainty, Ticknall. Please contact the selling agent or developer directly to obtain any information which may be available under the terms of The Energy Performance of Buildings (Certificates and Inspections) (England and Wales) Regulations 2007 or the Home Report if in relation to a residential property in Scotland.
*This is the average speed from the provider with the fastest broadband package available at this postcode. The average speed displayed is based on the download speeds of at least 50% of customers at peak time (8pm to 10pm). Fibre/cable services at the postcode are subject to availability and may differ between properties within a postcode. Speeds can be affected by a range of technical and environmental factors. The speed at the property may be lower than that listed above. You can check the estimated speed and confirm availability to a property prior to purchasing on the broadband provider's website. Providers may increase charges. The information is provided and maintained by Decision Technologies Limited. **This is indicative only and based on a 2-person household with multiple devices and simultaneous usage. Broadband performance is affected by multiple factors including number of occupants and devices, simultaneous usage, router range etc. For more information speak to your broadband provider.
Map data ©OpenStreetMap contributors.





