The Cart Hovel, Little Alne, Wootton Wawen, Henley-in-Arden, B95 6HW

- PROPERTY TYPE
 Barn Conversion
- BEDROOMS
 5
- BATHROOMS
 2
- SIZE
 Ask agent
- TENUREDescribes how you own a property. There are different types of tenure - freehold, leasehold, and commonhold.Read more about tenure in our glossary page.
 Ask agent
Key features
- A BEAUTIFUL BARN CONVERSION
 - FOUR/ FIVE BEDROOMS
 - THREE RECEPTION ROOMS
 - LARGE GARDEN ROOM/ ORANGERY
 - CONSERVATORY
 - LARGE REAR GARDEN & WOODLANDS
 - DOUBLE GARAGE
 - GATED DRIVEWAY
 - OOZING WITH CHARACTER
 - COUNCIL TAX E. EPC TBC.
 
Description
Little Alne is a charming hamlet nestled in the rolling Warwickshire countryside, conveniently positioned between Stratford-upon-Avon, Henley-in-Arden, and Alcester. These nearby towns provide excellent shopping, schooling, and recreational facilities, while the hamlet itself is home to a delightful craft centre. Just a short distance away, the village of Wootton Wawen offers a primary school, a welcoming village inn, a local shop, and a historic parish church.
The area is exceptionally well connected. The regional motorway network—including the M40, M42, M5, and M6—provides swift access across the Midlands and beyond. Birmingham International Airport and the NEC are also within easy reach. For commuters, there is a local rail service from Wootton Wawen station, with mainline connections from Warwick Parkway offering direct trains south to London Marylebone.
The Cart Hovel, originally a traditional barn, was sympathetically converted around 1990 to create spacious, well-proportioned living accommodation. Character features abound throughout, with exposed beams and timbers, oak-boarded floors, and a blend of flagstone and tiled flooring.
Set back from the lane behind secure electric gates (shared with just one neighbouring property), generous gravelled driveway with ample parking, external lighting, and access to the garage
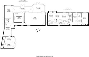
WELCOMING RECEPTION HALL
Flagstone floor, two radiators, double glazed windows to the front, stairs to first floor.
GUEST WC
Heated towel rail, wall mounted electric heater, WC, wash basin.
DINING ROOM
Oak flooring, double glazed window to rear and door to the orangery, radiator and exposed beams.
KITCHEN/ BREAKFAST ROOM
A wide range of fitted base, wall and drawer units, double bowl sink drainer, butchers block worktops, integrated dishwasher, fridge, built in NEFF oven, four ring gas hob, LPG feature Aga, ceramic tiled floor, glazed double doors to the
ORANGERY/ GARDEN ROOM
Ceramic tiled floor, air conditioning unit, cupboard with space and plumbing for washing machine, double glazed French doors into the gardens, double glazed windows and door to conservatory.
CONSERVATORY
Ceramic tiled floor, double glazed roof and windows, French doors to the garden.
LARGE LIVING ROOM
An impressive room with corner fireplace incorporating a wood-burning stove and brick surround, Bessemer beam with stone hearth. Double glazed window to front and rear, radiator.
FIRST FLOOR LANDING
Airing cupboard, separate linen cupboard and built-in wardrobes and store cupboards.
MASTER BEDROOM
Double glazed window to rear, radiator, fitted wardrobes, exposed beams and door to;
ENSUITE SHOWER ROOM
WC, pedestal wash basin, double shower cubicle and thermostatic shower, heated towel rail, exposed beams, double glazed velux window to rear,
BEDROOM TWO
Double glazed window to rear, radiator, exposed beams and opening to;
ENSUITE WC
With wash basin and WC, heated towel rail, extractor, wall light and shaver point.
BEDROOM THREE
Double glazed window to rear, radiator, fitted bookcase and wardrobes, vanity unit with wash basin, wall light and shaver point.
BEDROOM FOUR
Double glazed window to rear, radiator.
Four double bedrooms with Bedroom 1 with built-in wardrobes and Ensuite Shower Room off with w.c. bidet, wash hand basin.
FAMILY BATHROOM
Matching suite panelled bath with thermostatic shower over, WC and pedestal wash basin, double glazed velux window to rear, wall light and shaver point, heated towel rail.
BEDROOM FIVE/ STUDY
Exposed beams, radiator, double glazed velux window to rear.
DOUBLE GARAGE
Situated off the reception hall with light and power points, two pairs of side-hinged double doors, loft over, boiler cupboard with Worcester Bosch LPG gas-fired boiler and separate storeroom.
THE GARDEN
Large block paved terrace, cold water tap, wide gated side passage, log store, generous laid lawn, well-stocked flower and shrub borders including a number of ornamental trees, timber garden shed and raised Wendy House.
At the end of the garden is a post, rail and wire fence with a gateway leading to a futher lawned garden area with compost heap and vegetable patches then leading onto a pretty woodland with frontage to the River Alne. The gardens extend to about 1.30 acres.
- COUNCIL TAXA payment made to your local authority in order to pay for local services like schools, libraries, and refuse collection. The amount you pay depends on the value of the property.Read more about council Tax in our glossary page.
 - Band: E
 - PARKINGDetails of how and where vehicles can be parked, and any associated costs.Read more about parking in our glossary page.
 - Garage,Driveway,Off street
 - GARDENA property has access to an outdoor space, which could be private or shared.
 - Yes
 - ACCESSIBILITYHow a property has been adapted to meet the needs of vulnerable or disabled individuals.Read more about accessibility in our glossary page.
 - Ask agent
 
The Cart Hovel, Little Alne, Wootton Wawen, Henley-in-Arden, B95 6HW
Add an important place to see how long it'd take to get there from our property listings.
__mins driving to your place
Get an instant, personalised result:
- Show sellers you’re serious
 - Secure viewings faster with agents
 - No impact on your credit score
 

Your mortgage
Notes
Staying secure when looking for property
Ensure you're up to date with our latest advice on how to avoid fraud or scams when looking for property online.
Visit our security centre to find out moreDisclaimer - Property reference S1457416. The information displayed about this property comprises a property advertisement. Rightmove.co.uk makes no warranty as to the accuracy or completeness of the advertisement or any linked or associated information, and Rightmove has no control over the content. This property advertisement does not constitute property particulars. The information is provided and maintained by Hawkins & Patterson, Henley in Arden. Please contact the selling agent or developer directly to obtain any information which may be available under the terms of The Energy Performance of Buildings (Certificates and Inspections) (England and Wales) Regulations 2007 or the Home Report if in relation to a residential property in Scotland.
*This is the average speed from the provider with the fastest broadband package available at this postcode. The average speed displayed is based on the download speeds of at least 50% of customers at peak time (8pm to 10pm). Fibre/cable services at the postcode are subject to availability and may differ between properties within a postcode. Speeds can be affected by a range of technical and environmental factors. The speed at the property may be lower than that listed above. You can check the estimated speed and confirm availability to a property prior to purchasing on the broadband provider's website. Providers may increase charges. The information is provided and maintained by Decision Technologies Limited. **This is indicative only and based on a 2-person household with multiple devices and simultaneous usage. Broadband performance is affected by multiple factors including number of occupants and devices, simultaneous usage, router range etc. For more information speak to your broadband provider.
Map data ©OpenStreetMap contributors.




