
Plot for sale
Orchard Grove Development, Comeytrowe, Taunton, Somerset, TA4
- PROPERTY TYPE
Plot
- SIZE
Ask agent
Key features
- Two development opportunities, one former Mill building and one former Stable Block building, within the Orchard Grove Urban Extension.
- Both are Grade II listed by association to Comeytrowe Manor.
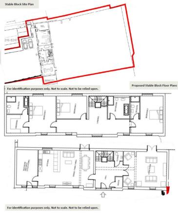
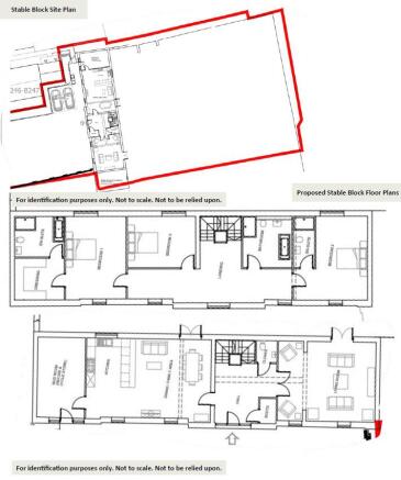
- The former Stable Block building benefits from detailed planning permission for conversion to one substantial detached 3-bed dwelling.
- The site extends, in total, to approximately 0.21-hectares (0.52-acres).
- Available as whole or as two separate lots.
- For sale by private treaty.
Description
Both are Grade II listed by association to Comeytrowe Manor.
The former Stable Block building benefits from detailed planning permission for conversion to one substantial detached 3-bed dwelling.
Available as whole or as two separate lots.
Lot 1 - The Stable Block - £100,000
Lot 2 - The Old Mill - £50,000
As a whole - £150,000
The site extends, in total, to approximately 0.21-hectares (0.52-acres).
For sale by private treaty.
Brochures
ParticularsOrchard Grove Development, Comeytrowe, Taunton, Somerset, TA4
NEAREST STATIONS
Distances are straight line measurements from the centre of the postcode- Taunton Station1.9 miles
Notes
Disclaimer - Property reference TAL250046. The information displayed about this property comprises a property advertisement. Rightmove.co.uk makes no warranty as to the accuracy or completeness of the advertisement or any linked or associated information, and Rightmove has no control over the content. This property advertisement does not constitute property particulars. The information is provided and maintained by Greenslade Taylor Hunt, Taunton Land. Please contact the selling agent or developer directly to obtain any information which may be available under the terms of The Energy Performance of Buildings (Certificates and Inspections) (England and Wales) Regulations 2007 or the Home Report if in relation to a residential property in Scotland.
Map data ©OpenStreetMap contributors.





