
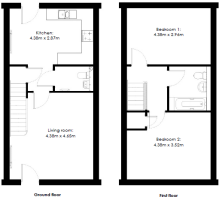
2 bedroom end of terrace house for sale
HOLLYWELL MEADOW, North Molton, South Molton, Devon, EX36

- PROPERTY TYPE
End of Terrace
- BEDROOMS
2
- BATHROOMS
1
- SIZE
Ask agent
Key features
- LOCAL OCCUPANCY RESTRICTION FOR NORTH DEVON
- ALLOCATED PARKING
- PRIVATE GARDEN
- FITTED KITCHEN
- DOUBLE GLAZING
- DOWNSTAIRS WC
- AIR SOURCE HEAT PUMP
- RESTRICTED TO 80% MAXIMUM OWNERSHIP
- POPULAR NORTH MOLTON VILLAGE LOCATION
Description
A rare opportunity to purchase a 25% share of this brand new home positioned on the edge of the popular village of North Molton. The property offers two bedrooms, garden, parking. Call Webbers Estate Agents to register your interest - More details to follow
Plot 3 - Two bed house
Costs:
Full market price: £265,000
Minimum share: 25%
Share value: £66,250
Monthly rent: £455.47
Estimated service charge: £56.56
Property Features:
Allocated parking
Private garden
Fitted kitchen
Double glazing
Downstairs WC
Air source heat pump
Restricted to 80% maximum ownership
NB: The images shown are computer-generated and are intended for illustrative purposes only. They do not depict the actual home. Estimated build completion date to be confirmed.
TENURE:
LEASEHOLD
SERVICES:
Mains water, electricty. Air Source Heat Pump
Estimated build completion
TBC
Viewing
Strictly by appointment only.
Council Tax:
TBC
AGENTS NOTE
We have been provided the following local occupancy restriction information from our clients, you would need to meet this criteria to be eligible to puchase the property: a. At least one adult in the household was resident continuously in the qualifying area for a min of 5 years immediately prior to occupation b. At least one adult in the household was resident in the qualifying area for 5 years within the previous ten years immediately prior to occupation c. At least one parent, guardian, child or sibling of at least 1 adult in the household, has been resident in the qualifying area for a min of 5 years prior to occupation d. At least one adult in the household has been in continuous employment for at least 16 hrs a week in the qualifying area for at least 5 years prior to occupation Qualifying Area: NORTH DEVON We are still awaiting confirmation as to any additional financial criteria interested parties may need to meet.
- COUNCIL TAXA payment made to your local authority in order to pay for local services like schools, libraries, and refuse collection. The amount you pay depends on the value of the property.Read more about council Tax in our glossary page.
- Band: TBC
- PARKINGDetails of how and where vehicles can be parked, and any associated costs.Read more about parking in our glossary page.
- Yes
- GARDENA property has access to an outdoor space, which could be private or shared.
- Yes
- ACCESSIBILITYHow a property has been adapted to meet the needs of vulnerable or disabled individuals.Read more about accessibility in our glossary page.
- Ask agent
Energy performance certificate - ask agent
HOLLYWELL MEADOW, North Molton, South Molton, Devon, EX36
Add an important place to see how long it'd take to get there from our property listings.
__mins driving to your place
Get an instant, personalised result:
- Show sellers you’re serious
- Secure viewings faster with agents
- No impact on your credit score



Your mortgage
Notes
Staying secure when looking for property
Ensure you're up to date with our latest advice on how to avoid fraud or scams when looking for property online.
Visit our security centre to find out moreDisclaimer - Property reference SOU250212. The information displayed about this property comprises a property advertisement. Rightmove.co.uk makes no warranty as to the accuracy or completeness of the advertisement or any linked or associated information, and Rightmove has no control over the content. This property advertisement does not constitute property particulars. The information is provided and maintained by Webbers Property Services, South Molton. Please contact the selling agent or developer directly to obtain any information which may be available under the terms of The Energy Performance of Buildings (Certificates and Inspections) (England and Wales) Regulations 2007 or the Home Report if in relation to a residential property in Scotland.
*This is the average speed from the provider with the fastest broadband package available at this postcode. The average speed displayed is based on the download speeds of at least 50% of customers at peak time (8pm to 10pm). Fibre/cable services at the postcode are subject to availability and may differ between properties within a postcode. Speeds can be affected by a range of technical and environmental factors. The speed at the property may be lower than that listed above. You can check the estimated speed and confirm availability to a property prior to purchasing on the broadband provider's website. Providers may increase charges. The information is provided and maintained by Decision Technologies Limited. **This is indicative only and based on a 2-person household with multiple devices and simultaneous usage. Broadband performance is affected by multiple factors including number of occupants and devices, simultaneous usage, router range etc. For more information speak to your broadband provider.
Map data ©OpenStreetMap contributors.



