Skip to content

3 Swarkestone Road, Chellaston, Derby, DE73 6UF

POA
OMEETO LTD, Derbyshire
SIZE AVAILABLE

2,781 sq ft

258 sq m

SECTOR

High street retail property to lease

Lease details

Lease available date:
Ask agent

Key features

  • Former Co-Op food store
  • Highly prominent corner pitch
  • Next to Birds and Domino's Pizza
  • Planning submitted to sub divide into 5 shops
  • Available as a whole or separate units STP
  • Suitable for a variety of high street uses

Description

Description

Former Co-Op convenience store. Prime position in neighbourhood centre next to Birds Bakery and Domino's.

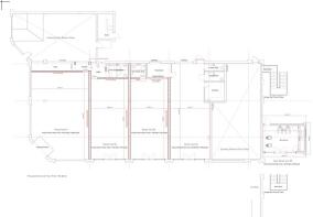
Prominent corner unit can be let as a whole or may split. Planning currently submitted to sub divide into 5 new retail units as follows:

Unit 01 - 114.8 sq m (1,237 sq ft)
Unit 02 - 71.64 sq m (771 sq ft)
Unit 03 - 71.8 sq m (773 sq ft)
Unit 04 - 85.6 sq m (921 sq ft) UNDER OFFER
Unit 05 - 45 sq m (484 sq ft) - over two floors. Stair lobby to be converted.

Expressions of interest for the units invited on a STP basis. To be constructed to a shell ready for occupier fit out.

Each unit shall be allocated 1x permit parking space to 400 sq ft with rear loading. Additional onsite pay and display or free street parking

Viewing

Please check our data room for a virtual tour. Physical viewings with proceedable parties can be arranged on request by contacting our commercial property agents. OMEETO do not take any responsibility for any loss or injury caused whilst carrying out a site visit.

VAT

All figures are quoted exclusive of VAT, we are advised the property is registered for VAT which is applicable at the prevailing rate.

EPC

The existing building is currently assessed as B(47). A new EPC shall be commissioned for completion on the proposed units.

3 Swarkestone Road, Chellaston, Derby, DE73 6UF

NEAREST STATIONS

Distances are straight line measurements from the centre of the postcode
  • Peartree Station2.5 miles
  • Spondon Station3.2 miles
  • Derby Station3.5 miles

About OMEETO LTD, Derbyshire

19 St Christopher's Way, Derby, DE24 8JY

Commercial Property Agents

OMEETO are a Derbyshire and Nottinghamshire based Commercial Property Agents who focus on work with our clients to sell or rent properties in the surrounding areas.

OMEETO are a technology led Commercial Property agency, who market commercial property using the latest technology. We aim to offer every listing with a virtual tour, property video, top quality images and documents to create clear, transparent, and accessible marketing. We aim to give our clients the best marketing coverage with comprehensive internet advertising on the leading property websites as well as social media sites.

At OMEETO we offer accurate and targeted advice, directly from our commercial property experts, on the process of the selling and letting of property and land. We regularly deal with a range of office, industrial, retail and investment properties as well as the healthcare and D1 / D2 sectors.

Notes

These notes are private, only you can see them.

Disclaimer - Property reference 798LH. The information displayed about this property comprises a property advertisement. Rightmove.co.uk makes no warranty as to the accuracy or completeness of the advertisement or any linked or associated information, and Rightmove has no control over the content. This property advertisement does not constitute property particulars. The information is provided and maintained by OMEETO LTD, Derbyshire. Please contact the selling agent or developer directly to obtain any information which may be available under the terms of The Energy Performance of Buildings (Certificates and Inspections) (England and Wales) Regulations 2007 or the Home Report if in relation to a residential property in Scotland.

Map data ©OpenStreetMap contributors.