
Ashcourt Drive, Hornsea

- PROPERTY TYPE
Detached
- BEDROOMS
4
- BATHROOMS
2
- SIZE
Ask agent
- TENUREDescribes how you own a property. There are different types of tenure - freehold, leasehold, and commonhold.Read more about tenure in our glossary page.
Freehold
Key features
- Immaculate Detached Home
- Well Presented Accommodation
- Open Plan Lounge & Kitchen Diner
- Four Bedrooms
- Master Plan with En-Suite
- Garden to the Rear
- Integral Garage and Parking
- Energy Rating: B
Description
Location - This property fronts onto Ashcourt Drive which leads from Eastgate.
Hornsea is a small East Yorkshire coastal town which has a resident population of a little over 8,000. The town offers a good range of local amenities including a range of shops, bistros and restaurants, schooling for all ages and a host of recreational facilities including sailing and fishing on Hornsea Mere, as well as the beach and seaside amenities, a leisure centre refurbished in 2020 and an 18 hole golf course. The town is also well known for the Hornsea Village, a large out of town retail shopping village and leisure park. The town lies within 18 miles drive of the city of Hull, 13 miles of the market town of Beverley and about 25 miles from the M62.
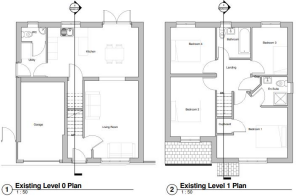
Accommodation - The accommodation has mains gas central heating via hot water radiators UPVC double glazing and is arranged on two floors as follows:
Entrance Hall - With stairs leading off, laminate flooring, one central heating radiator and doorway to:
Lounge - 3.61m x 4.95m (11'10" x 16'3") - With cladding to one wall, an open square arch leading to the kitchen diner, laminate flooring and one central heating radiator. The room allows for plenty of natural light, creating a calming ambience.
Kitchen Diner - 5.64m x 3.12m (18'6" x 10'3") - With a range of fitted base and wall units incorporating work surfaces with an inset 1 1/2 bowl sink unit with tiled splashbacks, gas hob with cooker hood over, integrated fridge, freezer and dishwasher, laminate flooring and one central heating radiator. There is also a walk in pantry.
Utility Room - 2.11m x 1.57m (6'11" x 5'2") - With fitted base and wall units incorporating work surfaces, door leading to the outside area and laminate flooring.
Cloaks/W.C. - With a pedestal wash hand basin and low level W.C.
First Floor -
Landing - With doorways to:
Bedroom 1 (Front) - 4.39m x 4.09m (14'5" x 13'5") - With a built in cupboard, one central heating radiator and doorway to:
En-Suite Shower Room - With a three suite suite comprising of a walk in shower, pedestal wash hand basin, low level W.C. and one central heating radiator.
Bedroom 2 (Front) - 2.84m x 3.73m (9'4" x 12'3") - With one central heating radiator.
Bedroom 3 (Rear) - 2.82m x 2.92m (9'3" x 9'7") - With laminate flooring and one central heating radiator.
Bedroom 4 (Rear) - 2.18m x 2.92m (7'2" x 9'7") - With one central heating radiator.
Bathroom/W.C. - 2.08m x 1.91m (6'10" x 6'3") - With a three piece white suite comprising of a panelled bath with shower over and screen above, pedestal wash hand basin, low level W.C., part tiling to the walls and laminate flooring.
Outside - The property fronts onto a tarmacadam driveway and a gravelled foregarden to the side which provides parking for two cars. There is also a built in garage (15'11" x 9'3") with an up and over main door, power and light laid on.
To the rear is an attractive garden with a central artificial lawn and easy to maintain paved patio areas. Beyond this is also a raised decked terrace.
Planning Consent - On 13th June 2025, planning was approved for conversion of existing integral garage into additional living accommodation. A copy of those plans are included in these sales details.
Tenure - The tenure of this property is understood to be freehold (confirmation to be provided by the vendors solicitors) and vacant possession will be given upon completion at a date to be agreed.
Council Tax Band - The council tax band for this property is band D.
Brochures
Ashcourt Drive, HornseaBrochure- COUNCIL TAXA payment made to your local authority in order to pay for local services like schools, libraries, and refuse collection. The amount you pay depends on the value of the property.Read more about council Tax in our glossary page.
- Band: D
- PARKINGDetails of how and where vehicles can be parked, and any associated costs.Read more about parking in our glossary page.
- Yes
- GARDENA property has access to an outdoor space, which could be private or shared.
- Yes
- ACCESSIBILITYHow a property has been adapted to meet the needs of vulnerable or disabled individuals.Read more about accessibility in our glossary page.
- Ask agent
Ashcourt Drive, Hornsea
Add an important place to see how long it'd take to get there from our property listings.
__mins driving to your place
Get an instant, personalised result:
- Show sellers you’re serious
- Secure viewings faster with agents
- No impact on your credit score
Your mortgage
Notes
Staying secure when looking for property
Ensure you're up to date with our latest advice on how to avoid fraud or scams when looking for property online.
Visit our security centre to find out moreDisclaimer - Property reference 34202116. The information displayed about this property comprises a property advertisement. Rightmove.co.uk makes no warranty as to the accuracy or completeness of the advertisement or any linked or associated information, and Rightmove has no control over the content. This property advertisement does not constitute property particulars. The information is provided and maintained by Quick & Clarke, Hornsea. Please contact the selling agent or developer directly to obtain any information which may be available under the terms of The Energy Performance of Buildings (Certificates and Inspections) (England and Wales) Regulations 2007 or the Home Report if in relation to a residential property in Scotland.
*This is the average speed from the provider with the fastest broadband package available at this postcode. The average speed displayed is based on the download speeds of at least 50% of customers at peak time (8pm to 10pm). Fibre/cable services at the postcode are subject to availability and may differ between properties within a postcode. Speeds can be affected by a range of technical and environmental factors. The speed at the property may be lower than that listed above. You can check the estimated speed and confirm availability to a property prior to purchasing on the broadband provider's website. Providers may increase charges. The information is provided and maintained by Decision Technologies Limited. **This is indicative only and based on a 2-person household with multiple devices and simultaneous usage. Broadband performance is affected by multiple factors including number of occupants and devices, simultaneous usage, router range etc. For more information speak to your broadband provider.
Map data ©OpenStreetMap contributors.





