St Aidans Avenue, Framwellgate Moor, Durham, DH1

- PROPERTY TYPE
Semi-Detached
- BEDROOMS
3
- BATHROOMS
1
- SIZE
Ask agent
- TENUREDescribes how you own a property. There are different types of tenure - freehold, leasehold, and commonhold.Read more about tenure in our glossary page.
Freehold
Key features
- Three Bedroom
- Semi Detached House
- South Facing Rear Garden
- No Upper Chain
- EPC Rating D
- Combi Boiler Installed 2024
- Ideal for a Range of Buyers
- Stylish Bathroom
- Open Plan Living/Dining Room
- Viewings Highly Recommended
Description
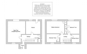
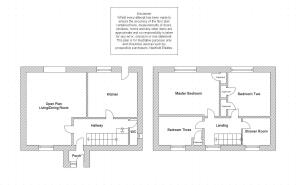
This three bedroom semi detached house is located on St Aidans Avenue in Framwellgate Moor, Durham. The property is well presented throughout and is being sold with vacant possession. The property comprises: an entrance porch, hallway, spacious open plan living/dining room, modern fitted kitchen and a downstairs WC. To the first floor there are three bedrooms and a stylish bathroom. Externally there is a wall enclosed garden to the front and a south facing garden mostly laid to lawn to the rear. Viewings are highly recommended.
Front External
To the front of the property is a wall enclosed low maintenance garden.
Entrance Porch
With carpet flooring and a double glazed window to the front.
Hallway
Including laminate flooring, a radiator an under stairs storage cupboard and a double glazed window to the front.
Open Plan Living/Dining Room
5.32m x 4.316m
Open plan living/dining room including laminate flooring, a radiator, a double glazed window to the front and French doors leading to the rear garden.
Kitchen
3.588m x 3.303m
Modern kitchen including fitted wall and base units with a contrasting work surface, stainless steel sink/drainer with a mixer tap, an integrated oven, four ring electric hob, extractor fan, tiled splash back, tiled flooring, a radiator, a double glazed window to the rear and a door leading to the rear garden.
Downstairs WC
Including a low level WC, wash hand basin, tiled walls, tiled flooring and a double glazed window to the side.
Stairs
With carpet flooring.
Landing
With loft access, carpet flooring and a double glazed window to the front.
Master Bedroom
3.619m x 3.129m
Master bedroom with extensive fitted wardrobes, a built in cupboard, laminate flooring, a radiator and a double glazed window to the rear.
Bedroom Two
3.242m x 3.096m
Bedroom including two built in cupboards, laminate flooring, a radiator and a double glazed window to the rear.
Bedroom Three
3.242m x 2.11m
Bedroom with a built in cupboard, laminate flooring, a radiator and a double glazed window to the front.
Bathroom
2.121m x 1.902m
Stylish bathroom including a bath with a mains shower above, low level WC, bidet, pedestal wash hand basin, chrome towel heater, tiled flooring, partially tiled walls and a double glazed window to the front.
Rear Garden
To the rear of the property is a South facing rear garden mostly laid to lawn with a patio, decking and two outside storage sheds.
Agent Notes
1. The property is in council tax band A. 2. The seller has advised us that the property is freehold. 3. Utilities - Mains water, sewerage, electricity and gas. 4. Ultrafast broadband available to this property (checker.ofcom.org.uk) 5. Flood Risk - Rivers and Sea - very low, Surface Water - very low (gov.uk)
Disclaimer
The preceding details have been sourced from the seller and the websites listed above. Verification and clarification of this information, along with any further details concerning Material Information parts A, B & C, should be sought from a legal representative or appropriate authorities. Newfield Estates cannot accept liability for any information provided.
- COUNCIL TAXA payment made to your local authority in order to pay for local services like schools, libraries, and refuse collection. The amount you pay depends on the value of the property.Read more about council Tax in our glossary page.
- Ask agent
- PARKINGDetails of how and where vehicles can be parked, and any associated costs.Read more about parking in our glossary page.
- Ask agent
- GARDENA property has access to an outdoor space, which could be private or shared.
- Yes
- ACCESSIBILITYHow a property has been adapted to meet the needs of vulnerable or disabled individuals.Read more about accessibility in our glossary page.
- Ask agent
St Aidans Avenue, Framwellgate Moor, Durham, DH1
Add an important place to see how long it'd take to get there from our property listings.
__mins driving to your place
Get an instant, personalised result:
- Show sellers you’re serious
- Secure viewings faster with agents
- No impact on your credit score
Your mortgage
Notes
Staying secure when looking for property
Ensure you're up to date with our latest advice on how to avoid fraud or scams when looking for property online.
Visit our security centre to find out moreDisclaimer - Property reference NES250134. The information displayed about this property comprises a property advertisement. Rightmove.co.uk makes no warranty as to the accuracy or completeness of the advertisement or any linked or associated information, and Rightmove has no control over the content. This property advertisement does not constitute property particulars. The information is provided and maintained by Newfield Estates, Durham. Please contact the selling agent or developer directly to obtain any information which may be available under the terms of The Energy Performance of Buildings (Certificates and Inspections) (England and Wales) Regulations 2007 or the Home Report if in relation to a residential property in Scotland.
*This is the average speed from the provider with the fastest broadband package available at this postcode. The average speed displayed is based on the download speeds of at least 50% of customers at peak time (8pm to 10pm). Fibre/cable services at the postcode are subject to availability and may differ between properties within a postcode. Speeds can be affected by a range of technical and environmental factors. The speed at the property may be lower than that listed above. You can check the estimated speed and confirm availability to a property prior to purchasing on the broadband provider's website. Providers may increase charges. The information is provided and maintained by Decision Technologies Limited. **This is indicative only and based on a 2-person household with multiple devices and simultaneous usage. Broadband performance is affected by multiple factors including number of occupants and devices, simultaneous usage, router range etc. For more information speak to your broadband provider.
Map data ©OpenStreetMap contributors.




