Rhian, Gruids, Lairg, Sutherland IV27 4EF

- PROPERTY TYPE
Detached
- BEDROOMS
3
- BATHROOMS
2
- SIZE
1,421 sq ft
132 sq m
- TENUREDescribes how you own a property. There are different types of tenure - freehold, leasehold, and commonhold.Read more about tenure in our glossary page.
Freehold
Key features
- HOME REPORT AVAILABLE UNDER EPC LINK
- 3 BEDROOM DETACHED COTTAGE
- RURAL LOCATION
- EV CHARGING POINT FOR ELECTRIC VEHICLES
- STUNNING PANORAMIC VIEWS
Description
An extended cottage with 3 double bedrooms, lounge, sun lounge, kitchen/diner, bathroom, shower room and utility. A beautiful location with stunning views of the Highlands close to village of Lairg in the heart of Sutherland within an hour of east, west and north coasts. Situated in a garden and driveway 0.3acre (approx)
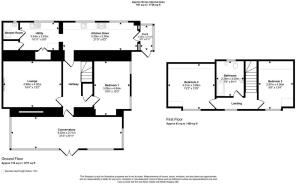
REAR PORCH
2.11m x 1.05m (6'11" x 3'5")
Entry to the property is through the rear porch and into the kitchen/diner. Tiled floor and roller blinds.
KITCHEN/DINER
6.39m x 2.50m (20'11" x 8'2")
A long room with two panoramic windows and free standing units along one side and a range cooker, with gas hob and space for a dining table & chairs. Door leads through to the central hallway.
UTILITY
3.34m x 2.43m (10'11" x 7'11")
A useful room with plumbing for washing machine, dish washer, tumble drier and under counter freezer, worktop and sink, pantry with shelving and a storage cupboard. Through to shower room.
SHOWER ROOM
A shower room with white pedestal wash basin, w/c and corner shower cubicle with mains supply shower. Fitted roller blind
LOUNGE
4.99m x 4.02m (16'4" x 13'2")
Lounge with window looking in to the sun lounge and views south. A log burner is sitting on a feature nook on a slate hearth. Fitted grey carpet.
CONSERVATORY
9.52m x 2.71m (31'2" x 8'10")
A large sun lounge with windows, (with fitted blinds) that is the length of the front of the house and has stunning views across the highland landscape. Tiled flooring and radiators. A door leads from the hallway and then French Doors out to the garden onto a block paved patio.
BEDROOM 1
A bright and airy double bedroom on the ground floor with 3 windows on dual aspect windows.
FIRST FLOOR
The central hallway has fitted cream carpet and understairs cupboard. Carpeted stairs lead to the first floor and access to bedroom 2 & 3 and the family bathroom. Stairs and landing have fitted carpet and a large window looking south from the landing.
BEDROOM 2
A double bedroom with coombed ceiling and dormer window, wardrobe and desk, includes fitted carpet and roman blind
BEDROOM 3
A double bedroom with coombed ceiling and dormer window, wardrobe and desk, includes grey fitted carpet and roman blind.
BATHROOM
3.02m x 2.36m (9'10" x 7'8")
A spacious bathroom comprising; white bath, bidet, w/c and wash basin sitting on top a vanity unit. Tiled floor and around the bath. Venetian blind included.
GARDEN
The property is situated in the centre of the garden with chippping driveway and parking to the side.
LOCATION
Rhian sits in a rural location with stunning panoramic views close to the village of Lairg, where you can find amenities such as restaurants, pub, take aways, primary school and Community Centre.
Please use What3words to locate the property due to its remoteness. what3words ///stockpile.snug.brink
Brochures
Brochure 1- COUNCIL TAXA payment made to your local authority in order to pay for local services like schools, libraries, and refuse collection. The amount you pay depends on the value of the property.Read more about council Tax in our glossary page.
- Band: D
- PARKINGDetails of how and where vehicles can be parked, and any associated costs.Read more about parking in our glossary page.
- Off street
- GARDENA property has access to an outdoor space, which could be private or shared.
- Private garden
- ACCESSIBILITYHow a property has been adapted to meet the needs of vulnerable or disabled individuals.Read more about accessibility in our glossary page.
- Ask agent
Rhian, Gruids, Lairg, Sutherland IV27 4EF
Add an important place to see how long it'd take to get there from our property listings.
__mins driving to your place
Get an instant, personalised result:
- Show sellers you’re serious
- Secure viewings faster with agents
- No impact on your credit score
Your mortgage
Notes
Staying secure when looking for property
Ensure you're up to date with our latest advice on how to avoid fraud or scams when looking for property online.
Visit our security centre to find out moreDisclaimer - Property reference S1458811. The information displayed about this property comprises a property advertisement. Rightmove.co.uk makes no warranty as to the accuracy or completeness of the advertisement or any linked or associated information, and Rightmove has no control over the content. This property advertisement does not constitute property particulars. The information is provided and maintained by Paul Coutts Estate Agency, Inverness. Please contact the selling agent or developer directly to obtain any information which may be available under the terms of The Energy Performance of Buildings (Certificates and Inspections) (England and Wales) Regulations 2007 or the Home Report if in relation to a residential property in Scotland.
*This is the average speed from the provider with the fastest broadband package available at this postcode. The average speed displayed is based on the download speeds of at least 50% of customers at peak time (8pm to 10pm). Fibre/cable services at the postcode are subject to availability and may differ between properties within a postcode. Speeds can be affected by a range of technical and environmental factors. The speed at the property may be lower than that listed above. You can check the estimated speed and confirm availability to a property prior to purchasing on the broadband provider's website. Providers may increase charges. The information is provided and maintained by Decision Technologies Limited. **This is indicative only and based on a 2-person household with multiple devices and simultaneous usage. Broadband performance is affected by multiple factors including number of occupants and devices, simultaneous usage, router range etc. For more information speak to your broadband provider.
Map data ©OpenStreetMap contributors.




